+ Lisa oma töö      

Otsid ehitajat "Üldehitus" valdkonnast?

Parima pakkumise ja teostaja leidmiseks lisa oma töö.

Korteri kapitaalremont

ID 131250

1021 vaatamist

Prindi

  • check Pakkumiste tegemine
    kuni 01.04.2026
  • check Võitja valik kuni
    11.04.2026
  • 3 Töö teostamine
    ja hinnang
Hanke lõpp: K, 1. aprill, 2026
Maakond: Harjumaa
Linn: Tallinn
Tööde lõpp: Kokkuleppel
Ehitusmaterjalid: Töö tegija poolt
Soovin pakkumisi: Tüki- või ühikuhinda

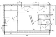
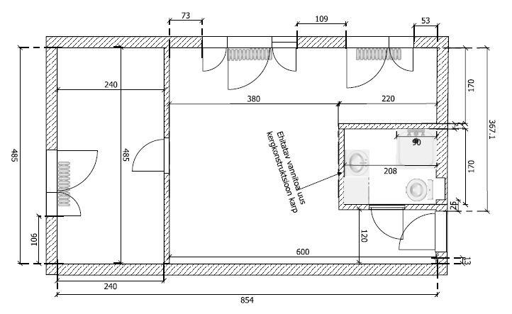
Töö sisu

Hanke sisuks on kahetoalise korteri renoveerimine.
Tegemist on Tallinnas Lasnamäel asuva tüüpprojekti 1- 317A - 15 järgse suurplokkidest (tuhaplokk) valmistatud korterelamuga. Korteri suurus on 39 m2, korter asub 3 korrusel.
Tööde kirjeldused, põhiliste sõlmede eskiislahendused ja muu taustainfo on lisatud. Nende põhjal tuleb koostada täpsem projektdokumentatsioon renoveermise kooskõlastuseks ja tööd teostamiseks.

Pildid, video ja failid

Hanke korraldaja: eraisik ID97007

Pakkumised

Pakkumisi kokku: 4

Ettevõte Summa Käibemaks Lisatud Vestlus
Kasutaja ikoon ID87168
Pakkuja profiil Väike nool paremale
19 800€ Ei ole KMKR Ei ole KMKR 18.03.2026 Vestlus (0)

Pakkumise kirjeldus:

Tööde maht:
1. Lammutustööd ja ettevalmistus
Olemasolevate konstruktsioonide ja vannitoa demonteerimine
Põranda avamine ja ettevalmistus
Seinte ja lagede puhastamine
Ehitusprahi utiliseerimine
2. Elektritööd
Uue elektrisüsteemi rajamine
Kaablite paigaldus, pistikud, lülitid
Valgustuse ettevalmistus ja paigaldus
Elektrikilbi paigaldus
3. V ... Rohkem

Kasutaja ikoon ID77501
Pakkuja profiil Väike nool paremale
11 700€ KM lisandub KM lisandub 01.04.2026 Vestlus (0)

Pakkumise kirjeldus:

Tere,

Meie ettevõttel on hea meel pakkuda abi teie tööde teostamisel ning esitame allpool oma hinnapakkumise töödele.

Hind sisaldab kõiki ülalnimetatud töid, transpordikulusid ning jäätmete äravedu.
Materjalide soetamine toimub meie poolt, vastavalt hanketingimustele. Neid saan arutada kui selgitame viimistlusmaterjale. Kõik materjalid tul ... Rohkem

Kasutaja ikoon ID97702
Pakkuja profiil Väike nool paremale
12 870€ Ei ole KMKR Ei ole KMKR 01.04.2026 Vestlus (0)

Pakkumise kirjeldus:

hind on ainult töö eest

Kasutaja ikoon ID70952
Pakkuja profiil Väike nool paremale
11 900€ KM lisandub KM lisandub 01.04.2026 Vestlus (0)

Pakkumise kirjeldus:

Tere,
Saame selle töö kiirelt ja kvaliteetselt ära teha.
Hetkel hind on indikatiivne kuna oleks vaja natuke täpsemat infot ning objekti ülevaatust.Väike muutus võib olla + - kui kõik ülevaadatud ja Teie soovid ära kuulatud.
Kõigile töödele anname garantii 2 aastat ja materjalid saame ka ise tuua väga hea hinnaga.Materjalid ei ole hinnas mate ... Rohkem

Küsimused hanke korraldajale

Hanke korraldajale ei ole veel küsimusi esitatud.

Lisa küsimus

Lisa küsimus

Minu pakkumine

Reeglid

Pakkumise kirjelduse väli on mõeldud pakkumise detailsemaks lahti kirjutamiseks. Pikema teksti mugavaks sisestamiseks klikkige kasti paremal ülaservas oleval ikoonil.
Pakkumist tehes on keelatud postitada enda kontaktandmeid (nimi, telefon, aadress jne). Me jälgime ja analüüsime pakkumisi, et vältida pettuseid ja reeglite rikkumisi.
Rikkumise puhul kasutajakonto blokeeritakse.

 

Teisi töid samas valdkonnas

Valdkonnas "Üldehitus" on 27 aktiivset tööd

Terassi õlitamine, 13,7 ruutu

Asukoht: Harjumaa, Saue
Aega jäänud: 5p 14h
Tehtud pakkumisi: 4

Eramaja ehitus

Asukoht: Harjumaa, Suurupi
Aega jäänud: 4p 14h
Tehtud pakkumisi: 4

Vanemad teated:

Vaata kõiki

Sellel veebilehel kasutatakse küpsiseid. Kasutamist jätkates nõustute küpsiste kasutamisega.

Sulge
 
Minu pakkumine

Reeglid

Pakkumise kirjelduse väli on mõeldud pakkumise detailsemaks lahti kirjutamiseks. Pikema teksti mugavaks sisestamiseks klikkige kasti paremal ülaservas oleval ikoonil.
Pakkumist tehes on keelatud postitada enda kontaktandmeid (nimi, telefon, aadress jne). Me jälgime ja analüüsime pakkumisi, et vältida pettuseid ja reeglite rikkumisi.
Rikkumise puhul kasutajakonto blokeeritakse.