+ Lisa oma töö      

Otsid ehitajat "Betoonitööd" valdkonnast?

Parima pakkumise ja teostaja leidmiseks lisa oma töö.

Betoonvundament

ID 131160

732 vaatamist

Prindi

  • check Pakkumiste tegemine
    kuni 19.03.2026
  • check Võitja valik kuni
    29.03.2026
  • 3 Töö teostamine
    ja hinnang
Hanke lõpp: N, 19. märts, 2026
Maakond: Ida-Virumaa
Linn: Narva-Jõesuu
Tööde lõpp: Kokkuleppel
Ehitusmaterjalid: Töö tellija poolt
Soovin pakkumisi: Summa kogu projektile

Töö sisu

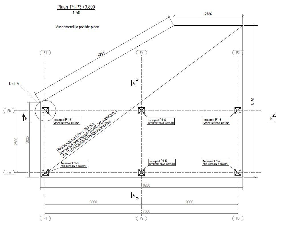
Plaatvundament valada betoonist C35/45. Plaat on vuugivaba.
Killustikalus on ettevalmistatud.
Armatuurvõrk Ø10/Ø10/200/200 kahes kihis, perimeetril kahte võrku siduv U-raud Ø10 s.200
Kokku 10.91m3. Plaadi pindala 42m2, paksus 260mm.

Raketise ehitus killustikalusele, armeering, betoonivalu.

Raketise puit, armatuur, betoon Tellija poolt.
Kruvid, sidumistraadid, armatuurikandurid jne tööde teostaja poolt ja kõik töövahendid k.a betoonivibra.

Pildid, video ja failid

Hanke korraldaja: ettevõte ID28408

Pakkumised

Pakkumisi kokku: 1

Ettevõte Summa Käibemaks Lisatud Vestlus
Kasutaja ikoon ID73125
Pakkuja profiil Väike nool paremale
7 350€ Sisaldab KM Sisaldab KM 17.03.2026 Vestlus (0)

Küsimused hanke korraldajale

Küsimus: private ID38464   16.03.2026 20:53
Tere. Mis betoonpinna viimistlus?

Teavita reeglite rikkumisest

Korraldaja vastus: 16.03.2026 21:59

Tere

Lihtsalt siledaks postitaldade ja puitkarkassi paigalduseks. Jääb lõpuks puitlaudise alla pind.

Teavita reeglite rikkumisest

Küsimus: private ID38464   17.03.2026 20:54
Kas teraspostid kinnitatakse ankrutega hiljem?

Teavita reeglite rikkumisest

Korraldaja vastus: 18.03.2026 07:21

Tere

Jah.

Teavita reeglite rikkumisest

Lisa küsimus

Lisa küsimus

Minu pakkumine

Reeglid

Pakkumise kirjelduse väli on mõeldud pakkumise detailsemaks lahti kirjutamiseks. Pikema teksti mugavaks sisestamiseks klikkige kasti paremal ülaservas oleval ikoonil.
Pakkumist tehes on keelatud postitada enda kontaktandmeid (nimi, telefon, aadress jne). Me jälgime ja analüüsime pakkumisi, et vältida pettuseid ja reeglite rikkumisi.
Rikkumise puhul kasutajakonto blokeeritakse.

 

Teisi töid samas valdkonnas

Valdkonnas "Betoonitööd" on 5 aktiivset tööd

Betoonist platsi valamine väljas.

Asukoht: Harjumaa, Luige
Aega jäänud: 22h 35 min
Tehtud pakkumisi: 4

Betoonpõranda valu

Asukoht: Harjumaa, Jõelähtme
Aega jäänud: 2p 22h
Tehtud pakkumisi: 3

Vanemad teated:

Vaata kõiki

Sellel veebilehel kasutatakse küpsiseid. Kasutamist jätkates nõustute küpsiste kasutamisega.

Sulge
 
Minu pakkumine

Reeglid

Pakkumise kirjelduse väli on mõeldud pakkumise detailsemaks lahti kirjutamiseks. Pikema teksti mugavaks sisestamiseks klikkige kasti paremal ülaservas oleval ikoonil.
Pakkumist tehes on keelatud postitada enda kontaktandmeid (nimi, telefon, aadress jne). Me jälgime ja analüüsime pakkumisi, et vältida pettuseid ja reeglite rikkumisi.
Rikkumise puhul kasutajakonto blokeeritakse.