+ Lisa oma töö      

Otsid ehitajat "Üldehitus" valdkonnast?

Parima pakkumise ja teostaja leidmiseks lisa oma töö.

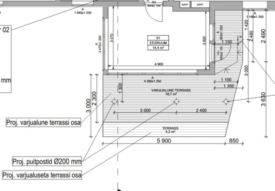
Terassi ehitus

ID 130964

1115 vaatamist

Prindi

  • check Pakkumiste tegemine
    kuni 28.03.2026
  • check Võitja valik kuni
    07.04.2026
  • 3 Töö teostamine
    ja hinnang
Hanke lõpp: L, 28. märts, 2026
Maakond: Tartumaa
Muu asula: Soeküla
Tööde lõpp: Kokkuleppel
Ehitusmaterjalid: Töö tegija poolt
Soovin pakkumisi: Summa kogu projektile

Töö sisu

vana terassi lõhume ise ära.
pakkumine tööle ja materjalile kokku
Praegused suured postid on postvundamendile rajatud, ühtegi muud toestus seal all ei ole
Uus terass ei tule ühe tasapinnaline. ukse ees olev osa jääb sama kõrgeks, suurema ala madalam

materjal tellija poolt.
Puit, sügavimmutatud, hea kui jääks hele lõppviimistlus
peidetud kinnitusvahenditega
ilma piiredeta

Pildid, video ja failid

Hanke korraldaja: eraisik ID86032

Pakkumised

Pakkumisi kokku: 9

Ettevõte Summa Käibemaks Lisatud Vestlus
Kasutaja ikoon ID77777
Pakkuja profiil Väike nool paremale
2 900€ KM lisandub KM lisandub 15.03.2026 Vestlus (0)

Pakkumise kirjeldus:

Töö koos materjalidega. Arvega lisandub km.

Kasutaja ikoon ID73089
Pakkuja profiil Väike nool paremale
2 700€ Ei ole KMKR Ei ole KMKR 15.03.2026 Vestlus (0)

Pakkumise kirjeldus:

Tere! Hinnapakkumine vastavalt hanke kirjeldusele

Kasutaja ikoon ID96003
Pakkuja profiil Väike nool paremale
2 570€ Sisaldab KM Sisaldab KM 16.03.2026 Vestlus (4)

Pakkumise kirjeldus:

Tere,
Terrassilaud immutatud pruun 28 x 120 mm, kinnitus varjatult terrassilaua küljelt.
Terrassile heledat viimistlust on võimalik teha mingi aja möödudes, kasutades heledat terrassiõli. Õlitamine ei sisaldu hinnapakkumises.

Kasutaja ikoon ID83324
Pakkuja profiil Väike nool paremale
2 000€ Ei ole KMKR Ei ole KMKR 16.03.2026 Vestlus (0)

Pakkumise kirjeldus:

valmis teostama ja arutama

Kasutaja ikoon ID95780
Pakkuja profiil Väike nool paremale
2 450€ Ikoon kell Ei ole KMKR Ei ole KMKR 16.03.2026 Vestlus (9)

Pakkumise kirjeldus:

Hinna sisse kuulub:
• uue terrassi ehitus vastavalt kirjeldusele
• kõik töödeldud materjalid
• paigaldus ja kõik tööd võtmed kätte

Töö saame teostada kokkulepitud ajal.

Kasutaja ikoon ID87640
Pakkuja profiil Väike nool paremale
1 800€ KM lisandub KM lisandub 16.03.2026 Vestlus (0)
Kasutaja ikoon ID65236
Pakkuja profiil Väike nool paremale
3 250€ KM lisandub KM lisandub 22.03.2026 Vestlus (0)

Pakkumise kirjeldus:

Tervist!
Teen pakkumise terrassi ehitusele.
Olenevalt kõrgustest teeks alumise karkassi 45x145 talale, teise kihi 45x95 talale. Peale arvestatud 28x120 terrassilaud, peitkruvidega.
Hind sisaldab nii materjali kui tööraha, ehk siis täispakkumine.
Kui soov terrassi heledamana saada, siis variant sügisel ära õlitada toonitud õliga vastavalt oma m ... Rohkem

Kasutaja ikoon ID38400
Pakkuja profiil Väike nool paremale
4 860€ Sisaldab KM Sisaldab KM 28.03.2026 Vestlus (0)

Pakkumise kirjeldus:

Koos materialiga.

Kasutaja ikoon ID39118
Pakkuja profiil Väike nool paremale
3 200€ KM lisandub KM lisandub 28.03.2026 Vestlus (0)

Pakkumise kirjeldus:

Pakkumine vastavalt hanke kirjeldusele
1 ) Karkassi kandepostid ca 28 tk
2 ) Karkass 50x150 (1500 sammuga) ja selle sisse 50x100 (400 sammuga), kuna suurema osa kõrgus fotodelt tundub praegu maapinnast juba ca 25 cm, seega kui on soov see osa saada madalam, siis peaks olema karkass max 150
3 ) sile pruunimmutatud laud 28x120 ca 120 jm
4 ) peitkruvid kà ... Rohkem

Küsimused hanke korraldajale

Küsimus: private ID65236   17.03.2026 21:14
Tervist!
Kas soovite olemasolevad puitposte alles jätta või ringi vahetada?
Parimat!

Teavita reeglite rikkumisest

Korraldaja vastus: 22.03.2026 09:19

soov alles järra

Teavita reeglite rikkumisest

Lisa küsimus

Lisa küsimus

Minu pakkumine

€

Reeglid

Pakkumise kirjelduse väli on mõeldud pakkumise detailsemaks lahti kirjutamiseks. Pikema teksti mugavaks sisestamiseks klikkige kasti paremal ülaservas oleval ikoonil.
Pakkumist tehes on keelatud postitada enda kontaktandmeid (nimi, telefon, aadress jne). Me jälgime ja analüüsime pakkumisi, et vältida pettuseid ja reeglite rikkumisi.
Rikkumise puhul kasutajakonto blokeeritakse.

 

Teisi töid samas valdkonnas

Valdkonnas "Üldehitus" on 27 aktiivset tööd

Terassi õlitamine, 13,7 ruutu

Asukoht: Harjumaa, Saue
Aega jäänud: 5p 17h
Tehtud pakkumisi: 4

Eramaja ehitus

Asukoht: Harjumaa, Suurupi
Aega jäänud: 4p 17h
Tehtud pakkumisi: 4

Vanemad teated:

Vaata kõiki

Sellel veebilehel kasutatakse küpsiseid. Kasutamist jätkates nõustute küpsiste kasutamisega.

Sulge
 
Minu pakkumine
€

Reeglid

Pakkumise kirjelduse väli on mõeldud pakkumise detailsemaks lahti kirjutamiseks. Pikema teksti mugavaks sisestamiseks klikkige kasti paremal ülaservas oleval ikoonil.
Pakkumist tehes on keelatud postitada enda kontaktandmeid (nimi, telefon, aadress jne). Me jälgime ja analüüsime pakkumisi, et vältida pettuseid ja reeglite rikkumisi.
Rikkumise puhul kasutajakonto blokeeritakse.