+ Lisa oma töö      

Otsid ehitajat "Siseviimistlustööd" valdkonnast?

Parima pakkumise ja teostaja leidmiseks lisa oma töö.

32m2 kalasabaparketi paigaldus betoonile

ID 130959

848 vaatamist

Prindi

  • check Pakkumiste tegemine
    kuni 21.03.2026
  • check Võitja valik kuni
    31.03.2026
  • 3 Töö teostamine
    ja hinnang
Hanke lõpp: L, 21. märts, 2026
Maakond: Viljandimaa
Linn: Viljandi
Tööde lõpp: Kokkuleppel
Ehitusmaterjalid: Töö tellija poolt
Soovin pakkumisi: Summa kogu projektile

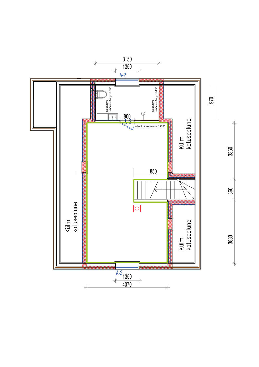
Töö sisu

• Pindala: 32 m²
• Aluspind: betoon
• Põrandas on vesipõrandaküte
• Aluspind vajab ettevalmistamist isetasanduva seguga
• Parkett: https://rmstuudio.ee/pood/jawor-tamm-rustic-timber/
• Paigaldus: liimitav
• paigaldusjärgselt katta parkett kaitsva õlivaha kihiga

Pildid, video ja failid

Hanke korraldaja: eraisik ID84127

Pakkumised

Pakkumisi kokku: 1

Ettevõte Summa Käibemaks Lisatud Vestlus
Kasutaja ikoon ID87555
Pakkuja profiil Väike nool paremale
1 400€ Sisaldab KM Sisaldab KM 15.03.2026 Vestlus (5)

Pakkumise kirjeldus:

Sisaldab paigaldust, tasandust koristust ja liimi.vajadusel transport.lisajüsimused oodatud. Aavo

Küsimused hanke korraldajale

Hanke korraldajale ei ole veel küsimusi esitatud.

Lisa küsimus

Lisa küsimus

Minu pakkumine

Reeglid

Pakkumise kirjelduse väli on mõeldud pakkumise detailsemaks lahti kirjutamiseks. Pikema teksti mugavaks sisestamiseks klikkige kasti paremal ülaservas oleval ikoonil.
Pakkumist tehes on keelatud postitada enda kontaktandmeid (nimi, telefon, aadress jne). Me jälgime ja analüüsime pakkumisi, et vältida pettuseid ja reeglite rikkumisi.
Rikkumise puhul kasutajakonto blokeeritakse.

 

Teisi töid samas valdkonnas

Valdkonnas "Siseviimistlustööd" on 24 aktiivset tööd

Korteri remont

Asukoht: Harjumaa, Muraste
Aega jäänud: 2p 5h
Tehtud pakkumisi: 15

Seinte pahteldus ja värvimine

Asukoht: Harjumaa, Türisalu
Aega jäänud: 3p 5h
Tehtud pakkumisi: 7

Vanemad teated:

Vaata kõiki

Sellel veebilehel kasutatakse küpsiseid. Kasutamist jätkates nõustute küpsiste kasutamisega.

Sulge
 
Minu pakkumine

Reeglid

Pakkumise kirjelduse väli on mõeldud pakkumise detailsemaks lahti kirjutamiseks. Pikema teksti mugavaks sisestamiseks klikkige kasti paremal ülaservas oleval ikoonil.
Pakkumist tehes on keelatud postitada enda kontaktandmeid (nimi, telefon, aadress jne). Me jälgime ja analüüsime pakkumisi, et vältida pettuseid ja reeglite rikkumisi.
Rikkumise puhul kasutajakonto blokeeritakse.