+ Lisa oma töö      

Otsid ehitajat "Siseviimistlustööd" valdkonnast?

Parima pakkumise ja teostaja leidmiseks lisa oma töö.

Hange on lõppenud!

Võitjaks osutus kasutaja ID 58471

Vannitoa plaatimine

ID 130933

883 vaatamist

Prindi

  • check Pakkumiste tegemine
    kuni 20.03.2026
  • check Võitja valik kuni
    30.03.2026
  • 3 Töö teostamine
    ja hinnang
Hanke lõpp: R, 20. märts, 2026
Maakond: Viljandimaa
Linn: Viljandi
Tööde lõpp: Kokkuleppel
Ehitusmaterjalid: Töö tellija poolt
Soovin pakkumisi: Summa kogu projektile

Töö sisu

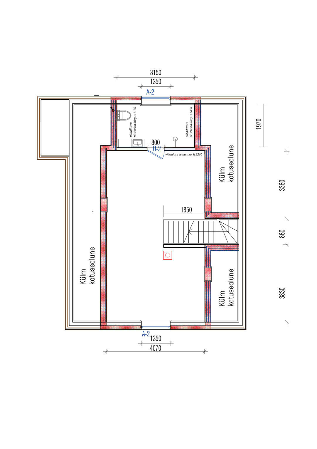
Vannitoa seinte osaline plaatimine ja vannitoa põranda täielik plaatimine. Eelnevalt on vaja vaja teha põranda tasandusvalu, vaadata üle kalded lisada hüdro.
Põrandaplaadi mõõt 450x450, seinaplaat 62x243 (püstformaadis)
Plaadid olemas, osaliselt ka muud vajalikud materjalid, lisanduvad materjalid vastavalt vajadusele arveldaks tšekkide alusel.
Lisatud fotod ruumist (plaaditavad seinad märgitud punasega) ja joonis mõõtudega.
Töö algus ASAP

Pildid, video ja failid

Hanke korraldaja: eraisik ID84127

Pakkumised

Pakkumisi kokku: 2

Ettevõte Summa Käibemaks Lisatud Vestlus
Kasutaja ikoon ID58471
Pakkuja profiil Väike nool paremale
1 860€ Sisaldab KM Sisaldab KM 13.03.2026 Vestlus (0)

Pakkumise kirjeldus:

Hinnapakkumine soovitud tööde teostamiseks.

Töö algusaeg kokkuleppel, kestus 5 päeva.


Meeldiva koostööni!

Kasutaja ikoon ID48307
Pakkuja profiil Väike nool paremale
2 200€ Ei ole KMKR Ei ole KMKR 15.03.2026 Vestlus (0)

Pakkumise kirjeldus:

Tere.
Pakkumine sisaldab kirjeldatud tööetappe.
Epo vuugi korral lisandub 10.-/m2.
Nii suureformaadilise põrandaplaadi puhul on vajalik kallete tarvis lõigata diagonaalis lisavuugid.
Heade soovidega

Küsimused hanke korraldajale

Hanke korraldajale ei ole veel küsimusi esitatud.

Lisa küsimus

Lisa küsimus

Minu pakkumine

Reeglid

Pakkumise kirjelduse väli on mõeldud pakkumise detailsemaks lahti kirjutamiseks. Pikema teksti mugavaks sisestamiseks klikkige kasti paremal ülaservas oleval ikoonil.
Pakkumist tehes on keelatud postitada enda kontaktandmeid (nimi, telefon, aadress jne). Me jälgime ja analüüsime pakkumisi, et vältida pettuseid ja reeglite rikkumisi.
Rikkumise puhul kasutajakonto blokeeritakse.

 

Teisi töid samas valdkonnas

Valdkonnas "Siseviimistlustööd" on 24 aktiivset tööd

Korteri remont

Asukoht: Harjumaa, Muraste
Aega jäänud: 2p 16h
Tehtud pakkumisi: 15

no-img Pilt puudub

Laminaatparketi paigaldus

Asukoht: Harjumaa, Tallinn
Aega jäänud: 4p 16h
Tehtud pakkumisi: 7

Vanemad teated:

Vaata kõiki

Sellel veebilehel kasutatakse küpsiseid. Kasutamist jätkates nõustute küpsiste kasutamisega.

Sulge
 
Minu pakkumine

Reeglid

Pakkumise kirjelduse väli on mõeldud pakkumise detailsemaks lahti kirjutamiseks. Pikema teksti mugavaks sisestamiseks klikkige kasti paremal ülaservas oleval ikoonil.
Pakkumist tehes on keelatud postitada enda kontaktandmeid (nimi, telefon, aadress jne). Me jälgime ja analüüsime pakkumisi, et vältida pettuseid ja reeglite rikkumisi.
Rikkumise puhul kasutajakonto blokeeritakse.