+ Lisa oma töö      

Otsid ehitajat "Üldehitus" valdkonnast?

Parima pakkumise ja teostaja leidmiseks lisa oma töö.

Üksikelamu ehitus (kinnine karp)

ID 130766

1004 vaatamist

Prindi

  • check Pakkumiste tegemine
    kuni 18.03.2026
  • check Võitja valik kuni
    28.03.2026
  • 3 Töö teostamine
    ja hinnang
Hanke lõpp: K, 18. märts, 2026
Maakond: Harjumaa
Tööde lõpp: Kokkuleppel
Ehitusmaterjalid: Töö tegija poolt
Soovin pakkumisi: Tüki- või ühikuhinda

Töö sisu

1. Vundament (Plaatvundament / L-plokk):
Geodeesia ja aluspinna ettevalmistus (kaevetööd, killustikalus ja tihendamine).
L-plokkide (või analoogse raketissüsteemi) paigaldus.
Põrandaalune ja perimeetri soojustus (EPS).
Radoonitõkke paigaldus (kui projektis nõutud).
Vundamendisiseste vee- ja kanalisatsioonitorude ning põrandakütte kontuuride paigaldus.
Põrandaplaadi armeerimine, betoonivalu ja pinnatöötlus.
2. Kandvad konstruktsioonid ja fassaad (Puitkarkass):
Välisseinte puitkarkassi püstitus ja soojustamine.
Tuuletõkke paigaldus ja teipimine (õhutiheduse tagamine).
Fassaadi roovitus ja lõplik fassaadikate (laudis / plaat, vastavalt projektile).
Kandvate siseseinte ja vahelae karkassi ehitus.
3. Katus:
Katusekandjate (fermid või sarikad) paigaldus.
Aluskate, roovitus ja katusekattematerjali paigaldus.
Tuulekastide ehitus ja vihmaveesüsteemide paigaldus.
Katuse/katuslae soojustamine (vastavalt projektile).
4. Avatäited:
Välisuste ja akende paigaldus koos tihendamise ja välisplekkidega.
3-kordsesd PVC aknad.
Transport ja platsikulud (kopp, tellingud, jäätmekäitlus jms).

PAKKUMISSE MITTE ARVESTADA (tehakse hilisemas etapis):
Mittekandvate kergvaheseinte ehitust.
Siseseinte ja lagede kipsitöid, pahteldamist ega siseviimistlust.
Siseuksi, sisetreppi ega põrandakatteid.
Sisemisi eriosasid (ventilatsioonisüsteemi väljaehitus, elekterikilp ja kaabeldus, II korruse torutööd).

Tööde algus 2026 Aprill

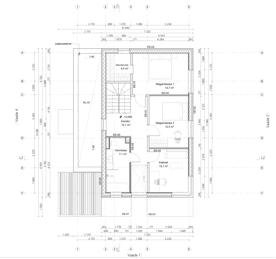
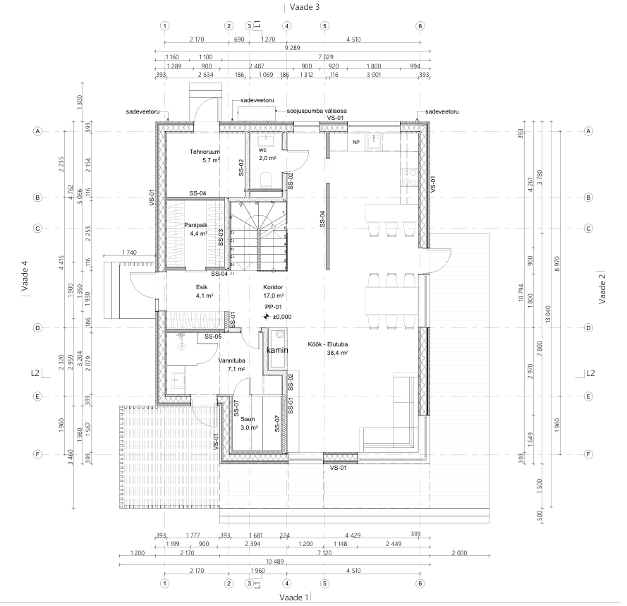
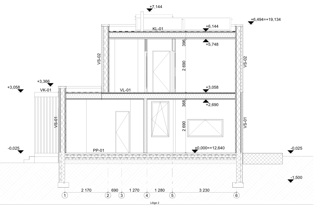
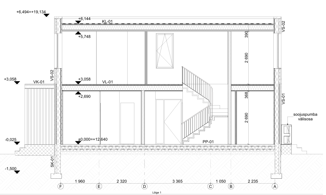
Pildid, video ja failid

Hanke korraldaja: eraisik ID92311

Pakkumised

Pakkumisi kokku: 4

Ettevõte Summa Käibemaks Lisatud Vestlus
Kasutaja ikoon ID95583
Pakkuja profiil Väike nool paremale
1 200€ KM lisandub KM lisandub 12.03.2026 Vestlus (0)
Kasutaja ikoon ID87168
Pakkuja profiil Väike nool paremale
1 100€ Ikoon kell KM lisandub KM lisandub 13.03.2026 Vestlus (0)

Pakkumise kirjeldus:

TÖÖDE MAHT
1. Vundament (plaatvundament / L-plokk)
Geodeetilised tööd ja aluspinna ettevalmistus
Kaevetööd
Killustikaluse paigaldus ja tihendamine
L-plokkide paigaldus
Vundamendi ja põrandaalune soojustus (EPS)
Radoonitõkke paigaldus
Vundamendi sisse jäävate vee- ja kanalisatsioonitorude paigaldus
Põrandakütte kontuuride paigaldus
Armat ... Rohkem

Kasutaja ikoon ID23896
Pakkuja profiil Väike nool paremale
900€ Ikoon kell Sisaldab KM Sisaldab KM 18.03.2026 Vestlus (0)

Pakkumise kirjeldus:

Täpse pakkumise saama teha kui on täpsustatud.
1.juurdepääs objektile
2.kaevatava mulla paigaldus objektil või äravedu objektilt
3.lint- ja plaatvundamentide erisused. Meie ID alt saate tutvuda meie tegemistega.

Kasutaja ikoon ID1058
Pakkuja profiil Väike nool paremale
240 000€ KM lisandub KM lisandub 18.03.2026 Vestlus (0)

Küsimused hanke korraldajale

Küsimus: private ID72026   12.03.2026 13:09
Tere!

Oleksime huvitatud tegema Teile hinnapakkumise, aga töödega saaksime alustada alles juuli kuus.
Kas see sobib ka Teile kui töödega alustatakse juulis?

Parimat!

Teavita reeglite rikkumisest

Korraldaja vastus: 12.03.2026 16:13

Tere!

Kahjuks see liiga hilja, ei saa.

Parimate soovidega

Teavita reeglite rikkumisest

Lisa küsimus

Lisa küsimus

Minu pakkumine

Reeglid

Pakkumise kirjelduse väli on mõeldud pakkumise detailsemaks lahti kirjutamiseks. Pikema teksti mugavaks sisestamiseks klikkige kasti paremal ülaservas oleval ikoonil.
Pakkumist tehes on keelatud postitada enda kontaktandmeid (nimi, telefon, aadress jne). Me jälgime ja analüüsime pakkumisi, et vältida pettuseid ja reeglite rikkumisi.
Rikkumise puhul kasutajakonto blokeeritakse.

 

Teisi töid samas valdkonnas

Valdkonnas "Üldehitus" on 28 aktiivset tööd

Maja värvimine

Asukoht: Harjumaa, Saue
Aega jäänud: 2p 10h
Tehtud pakkumisi: 5

Terassi õlitamine, 13,7 ruutu

Asukoht: Harjumaa, Saue
Aega jäänud: 5p 10h
Tehtud pakkumisi: 5

Vanemad teated:

Vaata kõiki

Sellel veebilehel kasutatakse küpsiseid. Kasutamist jätkates nõustute küpsiste kasutamisega.

Sulge
 
Minu pakkumine

Reeglid

Pakkumise kirjelduse väli on mõeldud pakkumise detailsemaks lahti kirjutamiseks. Pikema teksti mugavaks sisestamiseks klikkige kasti paremal ülaservas oleval ikoonil.
Pakkumist tehes on keelatud postitada enda kontaktandmeid (nimi, telefon, aadress jne). Me jälgime ja analüüsime pakkumisi, et vältida pettuseid ja reeglite rikkumisi.
Rikkumise puhul kasutajakonto blokeeritakse.