+ Lisa oma töö      

Otsid ehitajat "Põrandatööd" valdkonnast?

Parima pakkumise ja teostaja leidmiseks lisa oma töö.

Põranda tasandamine, kipsivalu

ID 130468

718 vaatamist

Prindi

  • check Pakkumiste tegemine
    kuni 08.03.2026
  • check Võitja valik kuni
    18.03.2026
  • 3 Töö teostamine
    ja hinnang
Hanke lõpp: P, 8. märts, 2026
Maakond: Harjumaa
Linn: Tallinn
Tööde lõpp: Kokkuleppel
Ehitusmaterjalid: Töö tegija poolt
Soovin pakkumisi: Summa kogu projektile

Töö sisu

Tere. Soovin teada korteris põranda tasandamise (kipsivalu) hinda, et otsustada töö otstarbekust. Seega kui see osutub liiga kalliks, siis esialgu ei tee või otsin alternatiivse lahenduse.
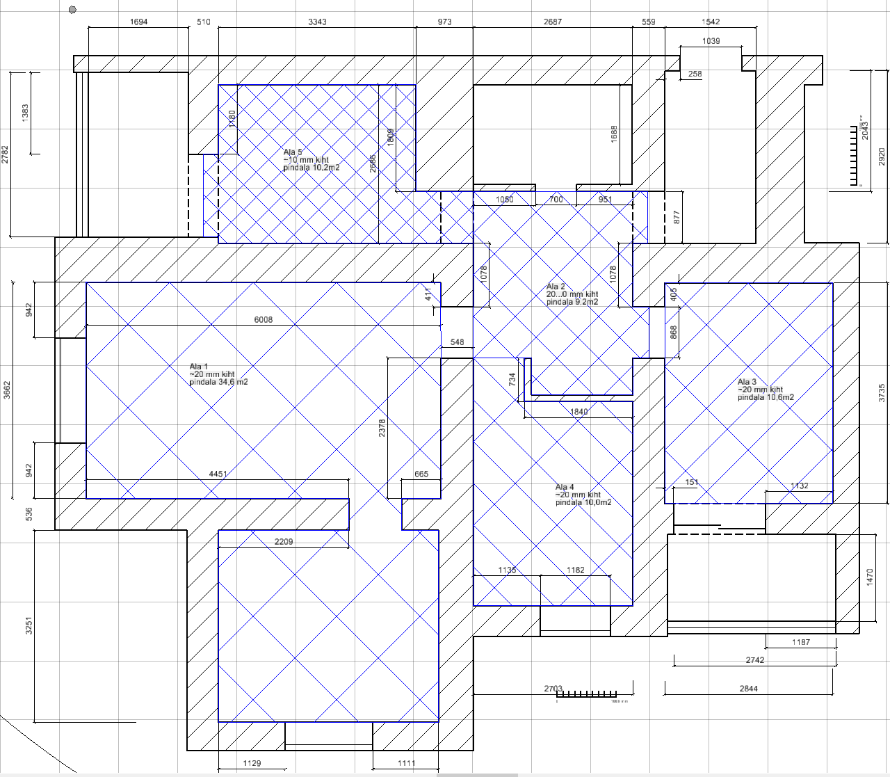
Lisatud on korteri plaan, kus kirjas ka pindala ja ligikaudne tasandussegu kiht, ehk töömaht.

Ala 1. Kokku 34,6 m2, kiht ~20mm, aluskiht Thermowhite (R) 50..60mm või analoogne
Ala 2. Kokku 9,2m2, kiht väheneb kl 7 kl 1 sunas 20...0 mm suht ühtlaselt, aluspind betoonpaneel
Ala 3. Kokku 10,0 m2, kiht ~20 mm suht ühtlaselt, aluspind betoonpaneel
Ala 4. Kokku 10,6 m2, kiht ~20 mm suht ühtlaselt, aluspind betoonpaneel
Ala 5. Kokku 10,2 m2, kiht ~10 mm suht ühtlaselt, aluspind mingi tasandussegu

Korter asub 3 korrusel, majas lift. Korteris on elektri ühendamiseks võimalus kuni 230V 32A, vesi kraanist. Teoreetiliselt on võimalik anda tasandussegu läbi akna, aga ei saa lubada.
Orienteeruv töö teostamise aeg võiks olla märtsi viimased kuupäevad.
Palun hinnastamisel arvestada nii materjali kui ka tööd ja see selgelt välja tuua.

PS, lisatöö: kui on huvi, siis eraldi reana palun märkida Thermowhite (R) või analoogse materjaliga põranda tõstmist Alal 1 (34,6 m2), kiht 50...60 mm, mis toimuks tasandustöödele eelneval nädalal. Pakkumine Thermowhite (R) kuivsegule nõutud koguses mul olemas.

Tänan ja jään pakkumisi ootama.

Pildid, video ja failid

Hanke korraldaja: eraisik ID86787

Pakkumised

Pakkumisi kokku: 1

Ettevõte Summa Käibemaks Lisatud Vestlus
Kasutaja ikoon ID88424
Pakkuja profiil Väike nool paremale
4 000€ KM lisandub KM lisandub 08.03.2026 Vestlus (0)

Küsimused hanke korraldajale

Hanke korraldajale ei ole veel küsimusi esitatud.

Lisa küsimus

Lisa küsimus

Minu pakkumine

Reeglid

Pakkumise kirjelduse väli on mõeldud pakkumise detailsemaks lahti kirjutamiseks. Pikema teksti mugavaks sisestamiseks klikkige kasti paremal ülaservas oleval ikoonil.
Pakkumist tehes on keelatud postitada enda kontaktandmeid (nimi, telefon, aadress jne). Me jälgime ja analüüsime pakkumisi, et vältida pettuseid ja reeglite rikkumisi.
Rikkumise puhul kasutajakonto blokeeritakse.

 

Vanemad teated:

Vaata kõiki

Sellel veebilehel kasutatakse küpsiseid. Kasutamist jätkates nõustute küpsiste kasutamisega.

Sulge
 
Minu pakkumine

Reeglid

Pakkumise kirjelduse väli on mõeldud pakkumise detailsemaks lahti kirjutamiseks. Pikema teksti mugavaks sisestamiseks klikkige kasti paremal ülaservas oleval ikoonil.
Pakkumist tehes on keelatud postitada enda kontaktandmeid (nimi, telefon, aadress jne). Me jälgime ja analüüsime pakkumisi, et vältida pettuseid ja reeglite rikkumisi.
Rikkumise puhul kasutajakonto blokeeritakse.