+ Lisa oma töö      

Otsid ehitajat "Siseviimistlustööd" valdkonnast?

Parima pakkumise ja teostaja leidmiseks lisa oma töö.

Eramu siseseinte krohvimine

ID 130428

1105 vaatamist

Prindi

  • check Pakkumiste tegemine
    kuni 19.03.2026
  • check Võitja valik kuni
    29.03.2026
  • 3 Töö teostamine
    ja hinnang
Hanke lõpp: N, 19. märts, 2026
Maakond: Harjumaa
Muu asula: Hüüru
Tööde lõpp: Kokkuleppel
Ehitusmaterjalid: Töö tellija poolt
Soovin pakkumisi: Summa kogu projektile

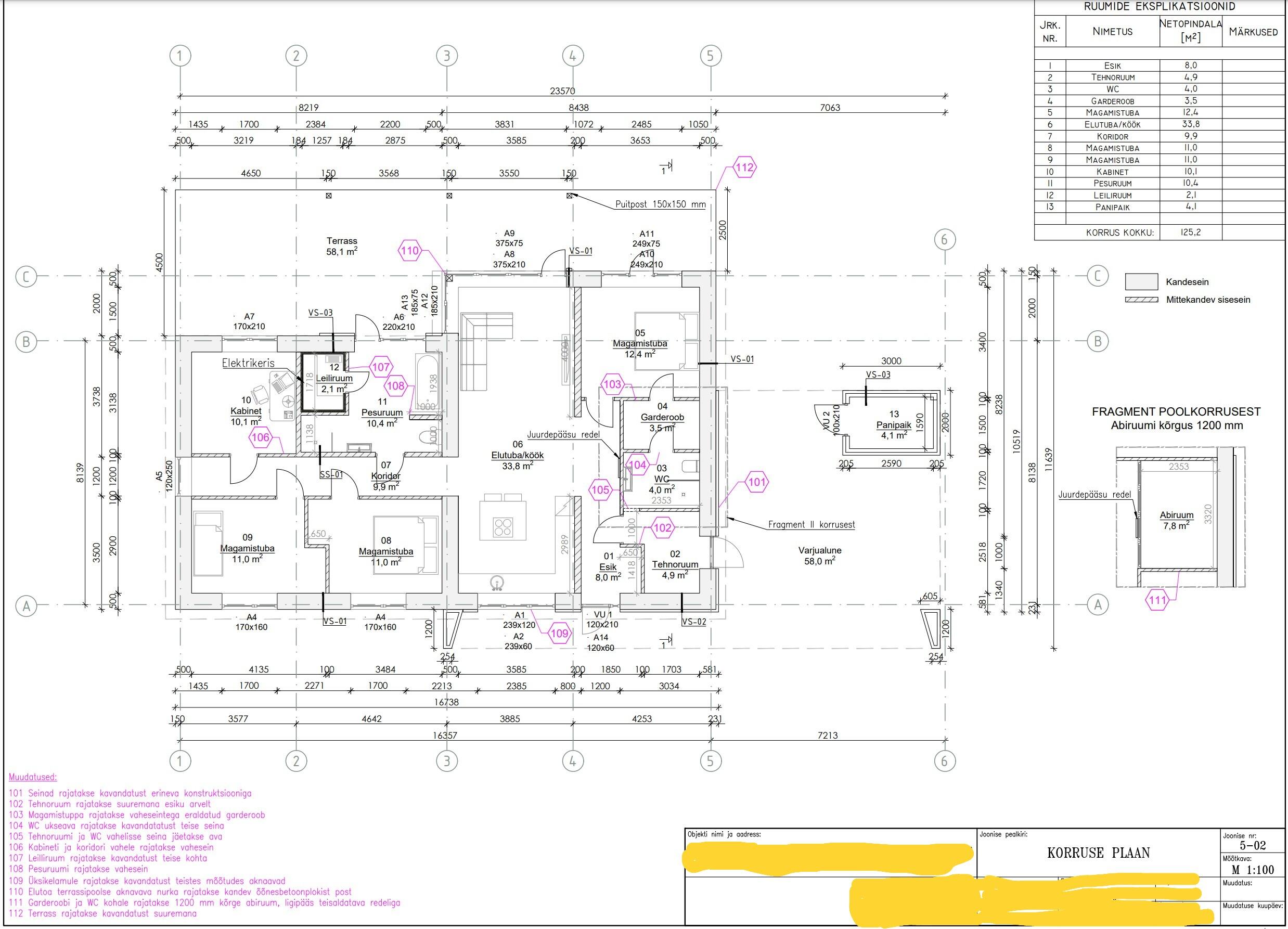
Töö sisu

1.korruselise eramu siseseinte krohvimine - ca 388m2
Seinad vaja valmistada ette maalritöödeks (bauroc ja fibo seinad)
Materjal tellija poolt.
Asub Harjumaa, Hüüru külas.
Töödega saab alustada ca 2-3 nädala pärast.
Kui koostöö sobib, siis saab hiljem teostada ka maalritöid, fassaadi krohvimist jms

Pildid, video ja failid

Hanke korraldaja: eraisik ID85626

Pakkumised

Pakkumisi kokku: 5

Ettevõte Summa Käibemaks Lisatud Vestlus
Kasutaja ikoon ID95754
Pakkuja profiil Väike nool paremale
5 432€ Sisaldab KM Sisaldab KM 05.03.2026 Vestlus (0)

Pakkumise kirjeldus:

Tere

Esitame hinnapakkumise vastavalt kuulutuses kirjeldatud töömahule ja teostatud töödele anname garantii.

Soovi korral saame edastada ka varasemate tööde näiteid.

Parimate soovidega
Rain

Kasutaja ikoon ID44954
Pakkuja profiil Väike nool paremale
7 150€ KM lisandub KM lisandub 07.03.2026 Vestlus (0)

Pakkumise kirjeldus:

Tere!
Pakkumine sisaldab:

1. Ettevalmistus- katmised jms.
2. Pindade krunt, Knauf stuckprimer
3. Krohvimine Knauf MP 75. 2x koos armeeringuga
4. Koristus, jäätmete utiliseerimine

Nagu meile antud tagasisidest selgub, kindel ning usaldusväärne teenus on garanteeritud. Olemas krohvi-/ pahtliprits, värviprits, rääkimata muust elementaarsest. NB ... Rohkem

Kasutaja ikoon ID78064
Pakkuja profiil Väike nool paremale
4 900€ Ei ole KMKR Ei ole KMKR 17.03.2026 Vestlus (0)

Pakkumise kirjeldus:

Tere! Töö sisaldab:krunt Knauf stuckprimer,armeerimisvõrk,krohv Knauf mp 75,akende katmine kilega,koristus

Kasutaja ikoon ID52737
Pakkuja profiil Väike nool paremale
5 000€ Ei ole KMKR Ei ole KMKR 18.03.2026 Vestlus (0)
Kasutaja ikoon ID96607
Pakkuja profiil Väike nool paremale
5 400€ Ei ole KMKR Ei ole KMKR 19.03.2026 Vestlus (0)

Küsimused hanke korraldajale

Küsimus: private ID52737   15.03.2026 18:26
Tere
Kas aknapaled tehakse enne krohvitöid valmis kipsi või tycrociga ?

Parimat

Teavita reeglite rikkumisest

Korraldaja vastus: 16.03.2026 10:27

Tere! Need tehakse hiljem, pole veel otsustatud millisest materjalist

Teavita reeglite rikkumisest

Lisa küsimus

Lisa küsimus

Minu pakkumine

Reeglid

Pakkumise kirjelduse väli on mõeldud pakkumise detailsemaks lahti kirjutamiseks. Pikema teksti mugavaks sisestamiseks klikkige kasti paremal ülaservas oleval ikoonil.
Pakkumist tehes on keelatud postitada enda kontaktandmeid (nimi, telefon, aadress jne). Me jälgime ja analüüsime pakkumisi, et vältida pettuseid ja reeglite rikkumisi.
Rikkumise puhul kasutajakonto blokeeritakse.

 

Teisi töid samas valdkonnas

Valdkonnas "Siseviimistlustööd" on 16 aktiivset tööd

no-img Pilt puudub

Seinte ja lagede värvimine

Asukoht: Harjumaa, Tallinn
Aega jäänud: 10h 33 min
Tehtud pakkumisi: 9

Kraanikausialuste torude ja sifooni tagasi kokkupanek

Asukoht: Harjumaa, Tallinn
Aega jäänud: 2p 10h
Tehtud pakkumisi: 7

Vanemad teated:

Vaata kõiki

Sellel veebilehel kasutatakse küpsiseid. Kasutamist jätkates nõustute küpsiste kasutamisega.

Sulge
 
Minu pakkumine

Reeglid

Pakkumise kirjelduse väli on mõeldud pakkumise detailsemaks lahti kirjutamiseks. Pikema teksti mugavaks sisestamiseks klikkige kasti paremal ülaservas oleval ikoonil.
Pakkumist tehes on keelatud postitada enda kontaktandmeid (nimi, telefon, aadress jne). Me jälgime ja analüüsime pakkumisi, et vältida pettuseid ja reeglite rikkumisi.
Rikkumise puhul kasutajakonto blokeeritakse.