+ Lisa oma töö      

Otsid ehitajat "Fassaaditööd" valdkonnast?

Parima pakkumise ja teostaja leidmiseks lisa oma töö.

Puitaknad müük ja paigaldus

ID 130418

900 vaatamist

Prindi

  • check Pakkumiste tegemine
    kuni 12.03.2026
  • check Võitja valik kuni
    22.03.2026
  • 3 Töö teostamine
    ja hinnang
Hanke lõpp: N, 12. märts, 2026
Maakond: Harjumaa
Linn: Tallinn
Tööde lõpp: Kokkuleppel
Ehitusmaterjalid: Töö tellija poolt
Soovin pakkumisi: Summa kogu projektile

Töö sisu

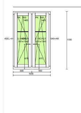
Hinnapakkumine akendele ja paigaldusele eraldi.
Puitaknad, 3-kordne pakett
Avatavad nii kahes suunas.
Mõõdud laius 1000mm, kõrgus 1550mm
Kogus 7 tk
Värv:valge seest/väljast
Veeninad
"Miljööväätuslik ala" vana puumaja

Pildid, video ja failid

Hanke korraldaja: eraisik ID61864

Pakkumised

Pakkumisi kokku: 3

Ettevõte Summa Käibemaks Lisatud Vestlus
Kasutaja ikoon ID71759
Pakkuja profiil Väike nool paremale
852€ KM lisandub KM lisandub 06.03.2026 Vestlus (0)

Pakkumise kirjeldus:

Pakkumises siis ühe akna hind. Paigaldus eraldi on ikka tunni hinnaga meil .Ja see oleneb paljudest asjaoludest.

Kasutaja ikoon ID89645
Pakkuja profiil Väike nool paremale
740€ Sisaldab KM Sisaldab KM 10.03.2026 Vestlus (0)

Pakkumise kirjeldus:

Pakkumises ühe akna hind kohaletooduna.
Aken pöördkald avatav.

Hind on arvestatud et aknad võetakse koos paigaldusega. Paigalduse hind algab 250€/tk. Paigalduse hind oleneb olemasolevatest tingimustest.

Paigalduse hind sisaldab : vana akna lammutus, augu puhastus, uue akna paigaldus koos vahuga.

NB! Pakkumise võitjaks kuulutamisel kuulub tel ... Rohkem

Kasutaja ikoon ID66935
Pakkuja profiil Väike nool paremale
715€ KM lisandub KM lisandub 12.03.2026 Vestlus (0)

Pakkumise kirjeldus:

Meiepoolne hinnapakkumine akendele sisaldab:

*Puitaken, 3-kordne pakett, 2 võrdset osa, üheraamsed
*Mõlemad avatavad kahes suunas.
*laius 1000mm, kõrgus 1550mm, keskel impost
*värv: valge RAL9010 seest/ väljast
*Veeninasid
*Kvaliteetseid materjale
*Paigalduse võimalus pikaajalise kogemusega ekspertide poolt
*Mõõdistustööd objektil
*Gar ... Rohkem

Küsimused hanke korraldajale

Küsimus: private ID71759   06.03.2026 07:26
Saan teha Kald-pöörd sulusega ZN Kui vaatate fiskostari tooodete lehelt neid hingesid , https://www.fiskostar.ee/tooted/sulgurid/kald-poord-sulgurid. Impost ka keskele? Kui mõõte vaadata siis vaate pinda jääb teil väga vähe. Klaasi pinda jääb 290 mm . Kui teha lihtsalt avanevad siis jääb 305 . Panen hinna siiski ära siia.Lengi sügavus pole teil siis oluline ?

Teavita reeglite rikkumisest

Korraldaja vastus:
Hanke korraldaja ei ole küsimusele veel vastanud

Küsimus: private ID89645   06.03.2026 08:23
Tere,
Kas oleks võimalik olemas olevast mõned pildid saada?

Tervitades
Jarek

Teavita reeglite rikkumisest

Korraldaja vastus:
Hanke korraldaja ei ole küsimusele veel vastanud

Küsimus: private ID89645   07.03.2026 08:27
Tere,
Paigalduse pakkumuse jaoks on vaja lisainfot, Nimelt pilte olemas olevast lahendusest, ning kas soovitakse paigaldust koos viimistlusega või lihtsalt vana aken lammutada, ja uus paigaldada?

parimat,
Jarek

Teavita reeglite rikkumisest

Korraldaja vastus:
Hanke korraldaja ei ole küsimusele veel vastanud

Lisa küsimus

Lisa küsimus

Minu pakkumine

Reeglid

Pakkumise kirjelduse väli on mõeldud pakkumise detailsemaks lahti kirjutamiseks. Pikema teksti mugavaks sisestamiseks klikkige kasti paremal ülaservas oleval ikoonil.
Pakkumist tehes on keelatud postitada enda kontaktandmeid (nimi, telefon, aadress jne). Me jälgime ja analüüsime pakkumisi, et vältida pettuseid ja reeglite rikkumisi.
Rikkumise puhul kasutajakonto blokeeritakse.

 

Teisi töid samas valdkonnas

Valdkonnas "Fassaaditööd" on 17 aktiivset tööd

Puitmaja värvimine

Asukoht: Harjumaa
Aega jäänud: 9p 10h
Tehtud pakkumisi: 17

Palkmaja värvimine + eeltööd

Asukoht: Harjumaa
Aega jäänud: 1p 10h
Tehtud pakkumisi: 5

Vanemad teated:

Vaata kõiki

Sellel veebilehel kasutatakse küpsiseid. Kasutamist jätkates nõustute küpsiste kasutamisega.

Sulge
 
Minu pakkumine

Reeglid

Pakkumise kirjelduse väli on mõeldud pakkumise detailsemaks lahti kirjutamiseks. Pikema teksti mugavaks sisestamiseks klikkige kasti paremal ülaservas oleval ikoonil.
Pakkumist tehes on keelatud postitada enda kontaktandmeid (nimi, telefon, aadress jne). Me jälgime ja analüüsime pakkumisi, et vältida pettuseid ja reeglite rikkumisi.
Rikkumise puhul kasutajakonto blokeeritakse.