+ Lisa oma töö      

Otsid ehitajat "Vundamenditööd" valdkonnast?

Parima pakkumise ja teostaja leidmiseks lisa oma töö.

Plaatvundamendi ehitamine/valamine

ID 130376

771 vaatamist

Prindi

  • check Pakkumiste tegemine
    kuni 07.03.2026
  • check Võitja valik kuni
    17.03.2026
  • 3 Töö teostamine
    ja hinnang
Hanke lõpp: L, 7. märts, 2026
Maakond: Pärnumaa
Linn: Pärnu
Tööde lõpp: Kokkuleppel
Ehitusmaterjalid: Töö tegija poolt
Soovin pakkumisi: Summa kogu projektile

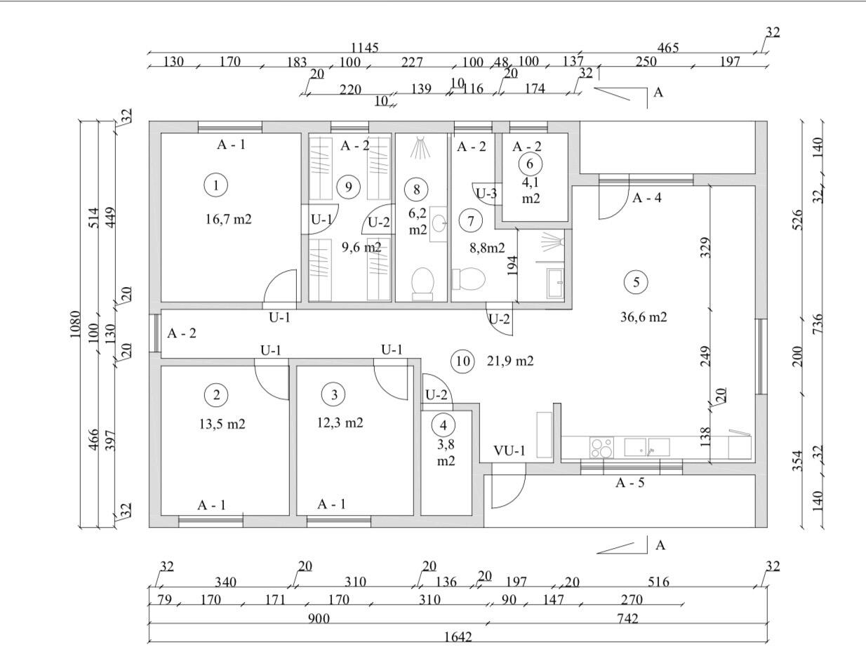
Pildid, video ja failid

Hanke korraldaja: eraisik ID96900

Pakkumised

Pakkumisi kokku: 1

Ettevõte Summa Käibemaks Lisatud Vestlus
Kasutaja ikoon ID59528
Pakkuja profiil Väike nool paremale
39 650€ KM lisandub KM lisandub 07.03.2026 Vestlus (0)

Pakkumise kirjeldus:

Tere,

Pakkumine on koostatud vastavalt hankes kirjeldatud töödele. Täpsema hinnakalkulatsiooni saame edastada teile personaalselt vestluses.

Meie varasemate tööde ja klientide tagasisidega saate tutvuda meie profiilil:

https://www.hange.ee/ettevote/59528/

Ettevõttel on olemas kehtiv kindlustus ja MTR registreering, mis tagab tööde vastavu ... Rohkem

Küsimused hanke korraldajale

Küsimus: private ID96769   04.03.2026 15:47
Joonised?

Teavita reeglite rikkumisest

Korraldaja vastus: 04.03.2026 15:52

Lisatud

Teavita reeglite rikkumisest

Lisa küsimus

Lisa küsimus

Minu pakkumine

Reeglid

Pakkumise kirjelduse väli on mõeldud pakkumise detailsemaks lahti kirjutamiseks. Pikema teksti mugavaks sisestamiseks klikkige kasti paremal ülaservas oleval ikoonil.
Pakkumist tehes on keelatud postitada enda kontaktandmeid (nimi, telefon, aadress jne). Me jälgime ja analüüsime pakkumisi, et vältida pettuseid ja reeglite rikkumisi.
Rikkumise puhul kasutajakonto blokeeritakse.

 

Teisi töid samas valdkonnas

Valdkonnas "Vundamenditööd" on 3 aktiivset tööd

Plaatvundamendi valamine

Asukoht: Tartumaa, Tartu
Aega jäänud: 10h 32 min
Tehtud pakkumisi: 3

no-img Pilt puudub

Vundamendi projekt

Asukoht: Harjumaa, Tallinn
Aega jäänud: 10h 32 min
Tehtud pakkumisi: 2

Vanemad teated:

Vaata kõiki

Sellel veebilehel kasutatakse küpsiseid. Kasutamist jätkates nõustute küpsiste kasutamisega.

Sulge
 
Minu pakkumine

Reeglid

Pakkumise kirjelduse väli on mõeldud pakkumise detailsemaks lahti kirjutamiseks. Pikema teksti mugavaks sisestamiseks klikkige kasti paremal ülaservas oleval ikoonil.
Pakkumist tehes on keelatud postitada enda kontaktandmeid (nimi, telefon, aadress jne). Me jälgime ja analüüsime pakkumisi, et vältida pettuseid ja reeglite rikkumisi.
Rikkumise puhul kasutajakonto blokeeritakse.