+ Lisa oma töö      

Otsid ehitajat "Siseviimistlustööd" valdkonnast?

Parima pakkumise ja teostaja leidmiseks lisa oma töö.

Hange on lõppenud!

Võitjaks osutus kasutaja ID 94113

Toa väljaehitus 7.1m2

ID 130292

816 vaatamist

Prindi

  • check Pakkumiste tegemine
    kuni 05.03.2026
  • check Võitja valik kuni
    05.03.2026
  • 3 Töö teostamine
    ja hinnang
Hanke lõpp: N, 5. märts, 2026
Maakond: Harjumaa
Linn: Tallinn
Tööde lõpp: Kokkuleppel
Ehitusmaterjalid: Töö tegija poolt
Soovin pakkumisi: Summa kogu projektile

Töö sisu

7,1m2 tuba ootab siseviimistlust
- paekiviseina soojustamine + kipsplaat + viimistlus
- aknaga seina soojustamine (?) + kipsplaat + viimistlus
- lae soojustamine (?) + viimistlemine
- põrandakate
- vaheseina ehitamine

Pildid, video ja failid

Hanke korraldaja: eraisik ID96872

Pakkumised

Pakkumisi kokku: 2

Ettevõte Summa Käibemaks Lisatud Vestlus
Kasutaja ikoon ID72055
Pakkuja profiil Väike nool paremale
4 250€ KM lisandub KM lisandub 03.03.2026 Vestlus (1)

Pakkumise kirjeldus:

Tere!
Pakkumine vastavalt hanke kirjeldusele ja lisaselgitustele. Ehitusmaterjalid hinnas, arvega lisandub km. Kui on küsimusi, vastan meeleldi.
Lugupidamisega
A.

Kasutaja ikoon ID94113
Pakkuja profiil Väike nool paremale
4 000€ Ikoon kell Sisaldab KM Sisaldab KM 04.03.2026 Vestlus (4)

Pakkumise kirjeldus:

Tere
Minu pakkumine hankes olevale tööle.
Parimat.

Küsimused hanke korraldajale

Küsimus: private ID72055   03.03.2026 08:15
Tere!
Milline põrandakate (ja mis on praegu aluspõrandaks)?
Kui suur vahesein tuleb ehitada?

Teavita reeglite rikkumisest

Korraldaja vastus: 03.03.2026 09:14

Tere!
Põrandakattes ei ole veel 100% kindel. Kui võimalik paneksin ukse ette neli suurt keraamilist plaati. Sealt edasi vaataks mida kaubanduses pakutakse. Päris puitparkett ei tule.

Teavita reeglite rikkumisest

Küsimus: private ID72269   03.03.2026 08:31
Tere,

Palun täpsustada kus linnaosas korter asub ning millal soovite tööde teostust?

Parimat,

Olev

Teavita reeglite rikkumisest

Korraldaja vastus: 03.03.2026 09:15

Korter asub Põhja Tallinnas. Ajaliselt otsest piirangut ei ole. Ehk võiks miskit valmis olla märtsi lõpuks.

Teavita reeglite rikkumisest

Küsimus: private ID72269   03.03.2026 09:39
Tere,

Tänan täiendava info eest.
Palun veel täpsustada mis mahus tuleb vaheseina ehitus?

Parimat,

Olev

Teavita reeglite rikkumisest

Korraldaja vastus: 03.03.2026 09:45

Tere!

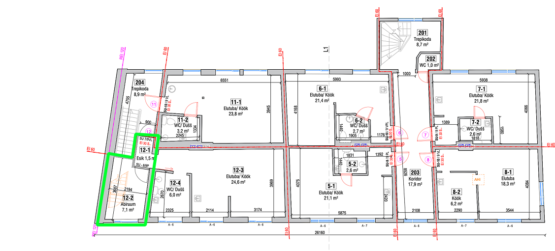
Lisan kohe ka pilte juurde. Jooniselt on näha, et ruumis on tegelt esik 1,5m2 ja seal on väike vahesein uksega. Esikus jätkaksin olemasolevate keraamiliste plaatidega. Tuba ise on siis 7,1m2 – sinna valin põrandakatte (tasun ise). Kogu ruumil on nn must põrand olemas.

Teavita reeglite rikkumisest

Küsimus: private ID72269   03.03.2026 09:47
Tere,
Tänan täiendava info eest.
Hankes on märgitud, et materjalid teenuse pakkuja poolt, palun täpsustada mis materjalidega peab arvestama pakkumist koostades?

Parimat,

Olev

Teavita reeglite rikkumisest

Korraldaja vastus: 03.03.2026 10:31

Hei!
Eelistaksin kui kõik üldehitus materjalid tuleks ehitaja poolt (kips, kruvid, segud, konstruksioonid, valge värv jne). Tasuksin ise nn erilahendused kus materjali hinnaklass kõigub vastavalt tootele (nt põrandakate, liistud, siseuks).

Teavita reeglite rikkumisest

Küsimus: private ID72269   03.03.2026 10:48
Tere,
Arusaadav, tänan täiendava info eest.

Parimat,

Olev

Teavita reeglite rikkumisest

Korraldaja vastus: 03.03.2026 11:04

Vabandust, unustasin esmalt täiesti, et tuppa oleks tarvis ka elektrit :)

Teavita reeglite rikkumisest

Küsimus: private ID72269   03.03.2026 11:05
Arusaadav,
Kas elektrikilp on olemas?

Parimat,

Olev

Teavita reeglite rikkumisest

Korraldaja vastus: 03.03.2026 11:19

Kohe teiselpool seina on korteri elektrikilp aga sinna tuleks siis vist üks lüliti lisada... Või siis ühendada olemasoleva esikuga?

Teavita reeglite rikkumisest

Küsimus: private ID72269   03.03.2026 11:20
Palun võimalusel lisada pilt ka elektrikilbist.

Parimat,

Olev

Teavita reeglite rikkumisest

Korraldaja vastus: 03.03.2026 16:41

Pilt on lisatud! Seal on isegi tühi koht vist olemas :)

Teavita reeglite rikkumisest

Lisa küsimus

Lisa küsimus

Minu pakkumine

Reeglid

Pakkumise kirjelduse väli on mõeldud pakkumise detailsemaks lahti kirjutamiseks. Pikema teksti mugavaks sisestamiseks klikkige kasti paremal ülaservas oleval ikoonil.
Pakkumist tehes on keelatud postitada enda kontaktandmeid (nimi, telefon, aadress jne). Me jälgime ja analüüsime pakkumisi, et vältida pettuseid ja reeglite rikkumisi.
Rikkumise puhul kasutajakonto blokeeritakse.

 

Teisi töid samas valdkonnas

Valdkonnas "Siseviimistlustööd" on 16 aktiivset tööd

no-img Pilt puudub

Seinte ja lagede värvimine

Asukoht: Harjumaa, Tallinn
Aega jäänud: 10h 35 min
Tehtud pakkumisi: 9

Kraanikausialuste torude ja sifooni tagasi kokkupanek

Asukoht: Harjumaa, Tallinn
Aega jäänud: 2p 10h
Tehtud pakkumisi: 7

Vanemad teated:

Vaata kõiki

Sellel veebilehel kasutatakse küpsiseid. Kasutamist jätkates nõustute küpsiste kasutamisega.

Sulge
 
Minu pakkumine

Reeglid

Pakkumise kirjelduse väli on mõeldud pakkumise detailsemaks lahti kirjutamiseks. Pikema teksti mugavaks sisestamiseks klikkige kasti paremal ülaservas oleval ikoonil.
Pakkumist tehes on keelatud postitada enda kontaktandmeid (nimi, telefon, aadress jne). Me jälgime ja analüüsime pakkumisi, et vältida pettuseid ja reeglite rikkumisi.
Rikkumise puhul kasutajakonto blokeeritakse.