+ Lisa oma töö      

Otsid ehitajat "Siseviimistlustööd" valdkonnast?

Parima pakkumise ja teostaja leidmiseks lisa oma töö.

Ikea köögikappide paigaldamiseks siinid (vajalik eelnevalt seina sirgendamine)

ID 130198

862 vaatamist

Prindi

  • check Pakkumiste tegemine
    kuni 09.03.2026
  • check Võitja valik kuni
    19.03.2026
  • 3 Töö teostamine
    ja hinnang
Hanke lõpp: E, 9. märts, 2026
Maakond: Valgamaa
Linn: Tõrva
Tööde lõpp: Kokkuleppel
Ehitusmaterjalid: Töö tegija poolt
Soovin pakkumisi: Summa kogu projektile

Töö sisu

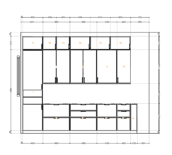
Vajalik paigaldada ikea köögikappide paigaldamiseks siinid.
Aga tegemist on vana majaga, mille sein ja ka põrand on kõverad. Sein lainetab. Sein on krohvitud (tapeet peal), kohati on krohvi alla puit ja kohati on tellis. Ei oska öelda, mis mahus. Ei oska öelda, mis kvaliteediga on vanasti krohvitud. Aga ei soovi ka seda, et vana krohv maha võetakse.
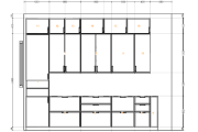
Sein on 2,92m (tegelikult on 2,98, aga üleval ääres jooksevad elektrijuhtmed) kõrge ja 3,53m lai.
Seina sisse on juba veetud uued elektrijuhtmed ja toosid, vajadusel tuleks need tuua välja poole (tööpinna taga).
Tuleb ka tagaseina kate (kus on elektripistikud), seda ei saa ka lainetavale seinale panna.
• Vajalik on leida lahendus (ja teostada see), kuidas siinid saavad sein nii, et võimalikult vähe ruumist läheb kaotsi. Ruum on mööblipaiglamiseks arvel. Kas see on krohvimine või mingi muu lahendus?
• Siinid peavad olema loodis, muidu ei ole võimalik mööblit paigaldada (siinid ei tohi seinas lainetada).
• Siinid peavad olema paigaldatud õigele kõrgusele (ikea standardkõrgusest peab saama paigaldada madalamale (kuna on olemas 2cm madalamad jalad, siis kappidele lähevad alla need). Siis teoreetiliselt kõik tuleks 2 cm madalamale paigaldada.
• Siinid peavad olema seinas selliselt, et see kannaks köögimööblit.
Lisan joonise (mõõdud) ja pildi, millisite kappide taga on siinid ja olemasolev olukord.
Palun tööteostamise meetod ja maksumus.

Pildid, video ja failid

Hanke korraldaja: eraisik ID96821

Pakkumised

Pakkumisi kokku: 0

Küsimused hanke korraldajale

Hanke korraldajale ei ole veel küsimusi esitatud.

Lisa küsimus

Lisa küsimus

Minu pakkumine

Reeglid

Pakkumise kirjelduse väli on mõeldud pakkumise detailsemaks lahti kirjutamiseks. Pikema teksti mugavaks sisestamiseks klikkige kasti paremal ülaservas oleval ikoonil.
Pakkumist tehes on keelatud postitada enda kontaktandmeid (nimi, telefon, aadress jne). Me jälgime ja analüüsime pakkumisi, et vältida pettuseid ja reeglite rikkumisi.
Rikkumise puhul kasutajakonto blokeeritakse.

 

Teisi töid samas valdkonnas

Valdkonnas "Siseviimistlustööd" on 16 aktiivset tööd

no-img Pilt puudub

Seinte ja lagede värvimine

Asukoht: Harjumaa, Tallinn
Aega jäänud: 10h 29 min
Tehtud pakkumisi: 9

Kraanikausialuste torude ja sifooni tagasi kokkupanek

Asukoht: Harjumaa, Tallinn
Aega jäänud: 2p 10h
Tehtud pakkumisi: 7

Vanemad teated:

Vaata kõiki

Sellel veebilehel kasutatakse küpsiseid. Kasutamist jätkates nõustute küpsiste kasutamisega.

Sulge
 
Minu pakkumine

Reeglid

Pakkumise kirjelduse väli on mõeldud pakkumise detailsemaks lahti kirjutamiseks. Pikema teksti mugavaks sisestamiseks klikkige kasti paremal ülaservas oleval ikoonil.
Pakkumist tehes on keelatud postitada enda kontaktandmeid (nimi, telefon, aadress jne). Me jälgime ja analüüsime pakkumisi, et vältida pettuseid ja reeglite rikkumisi.
Rikkumise puhul kasutajakonto blokeeritakse.