+ Lisa oma töö      

Otsid ehitajat "Puusepatööd" valdkonnast?

Parima pakkumise ja teostaja leidmiseks lisa oma töö.

Kortermaja postkastid

ID 130084

1543 vaatamist

Prindi

  • check Pakkumiste tegemine
    kuni 28.03.2026
  • check Võitja valik kuni
    07.04.2026
  • 3 Töö teostamine
    ja hinnang
Hanke lõpp: L, 28. märts, 2026
Maakond: Harjumaa
Linn: Tallinn
Tööde lõpp: Kokkuleppel
Ehitusmaterjalid: Töö tegija poolt
Soovin pakkumisi: Summa kogu projektile

Töö sisu

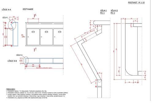
Soovime vanalinnas asuvale kortermajale puidust või vineerist stilistiliselt sobivaid postkaste (8tk, ühes reas). Täpne lahendus ei ole ette kirjutatud, lisatud fotodel on mõned näited)

Pildid, video ja failid

Hanke korraldaja: korteriühistu ID96768

Pakkumised

Pakkumisi kokku: 4

Ettevõte Summa Käibemaks Lisatud Vestlus
Kasutaja ikoon ID93971
Pakkuja profiil Väike nool paremale
1 850€ Ei ole KMKR Ei ole KMKR 27.02.2026 Vestlus (0)

Pakkumise kirjeldus:

Tere

Pakun lahendust 8 postkasti valmistamiseks ja paigaldamiseks vastavalt objektile sobivas stiilis.

Valmistan postkastid kvaliteetsest vineerist või puidust (vastavalt kokkuleppele), arvestades vanalinna kortermaja miljööd ja visuaalset sobivust. Lahendus tehakse mõõtude järgi ning disain kooskõlastatakse enne tootmise alustamist.

Pakkumin ... Rohkem

Kasutaja ikoon ID38890
Pakkuja profiil Väike nool paremale
880€ Ei ole KMKR Ei ole KMKR 27.02.2026 Vestlus (3)

Pakkumise kirjeldus:

Tere,
Pakkumises postkastid koos paigalduse,transpordi ja hanke teenustasuga.
Naturaalsed ja peitsimine vastavalt tellija soovidele.

Küsimused oodatud,

Edu!

Kasutaja ikoon ID93802
Pakkuja profiil Väike nool paremale
2 870€ Sisaldab KM Sisaldab KM 01.03.2026 Vestlus (0)

Pakkumise kirjeldus:

Pakkumine on paigaldusele, vineerist ja spoonitud plaadist postkasti moodulitele.

Kasutaja ikoon ID92291
Pakkuja profiil Väike nool paremale
1 120€ Sisaldab KM Sisaldab KM 28.03.2026 Vestlus (0)

Pakkumise kirjeldus:

Vineerist postkastide valmistamine lähtudes antud ideedest, 8 lukustatavat postkasti ühes reas.

Küsimused hanke korraldajale

Hanke korraldajale ei ole veel küsimusi esitatud.

Lisa küsimus

Lisa küsimus

Minu pakkumine

Reeglid

Pakkumise kirjelduse väli on mõeldud pakkumise detailsemaks lahti kirjutamiseks. Pikema teksti mugavaks sisestamiseks klikkige kasti paremal ülaservas oleval ikoonil.
Pakkumist tehes on keelatud postitada enda kontaktandmeid (nimi, telefon, aadress jne). Me jälgime ja analüüsime pakkumisi, et vältida pettuseid ja reeglite rikkumisi.
Rikkumise puhul kasutajakonto blokeeritakse.

 

Vanemad teated:

Vaata kõiki

Sellel veebilehel kasutatakse küpsiseid. Kasutamist jätkates nõustute küpsiste kasutamisega.

Sulge
 
Minu pakkumine

Reeglid

Pakkumise kirjelduse väli on mõeldud pakkumise detailsemaks lahti kirjutamiseks. Pikema teksti mugavaks sisestamiseks klikkige kasti paremal ülaservas oleval ikoonil.
Pakkumist tehes on keelatud postitada enda kontaktandmeid (nimi, telefon, aadress jne). Me jälgime ja analüüsime pakkumisi, et vältida pettuseid ja reeglite rikkumisi.
Rikkumise puhul kasutajakonto blokeeritakse.