+ Lisa oma töö      

Otsid ehitajat "Ehituse peatöövõtt" valdkonnast?

Parima pakkumise ja teostaja leidmiseks lisa oma töö.

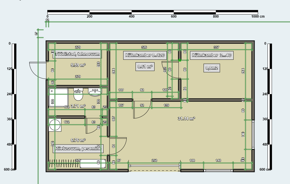
60-80m2 PIR paneelidest tööstushoone, Kanepi vald

ID 129977

1304 vaatamist

Prindi

  • check Pakkumiste tegemine
    kuni 10.03.2026
  • check Võitja valik kuni
    20.03.2026
  • 3 Töö teostamine
    ja hinnang
Hanke lõpp: T, 10. märts, 2026
Maakond: Põlvamaa
Muu asula: Prangli
Tööde lõpp: Kokkuleppel
Ehitusmaterjalid: Töö tegija poolt
Soovin pakkumisi: Summa kogu projektile

Töö sisu

Projekteerimine + ehitus (peatöövõtt), sh KVJ (küte+vent) ja vesi/kanal lahendust.
Asukoht: Prangli küla, Kanepi vald, Põlva maakond.


PIR-paneelidest väike tööstusliku stiiliga abihoone projekteerimine ja ehitus (terviklahendus).
Otstarve: Mustikafarmi abihoone. Ruumi funktsioonid: külmkamber(eraldi tellitud), riietusruum, WC, dušš, väike köök.

Hoone lähteandmed:

Suurus: ca 60–80 m² (orientiir 10 x 6 m), 1-korruseline Kõrgus: ca 4 m

Ehitussüsteem: Sandwich/PIR paneelid – sein 120 mm, katus 150 mm (või teie standardlahendus samas klassis)
Viimistlus: avakülgede viimistlusplekid (ääre-, nurga-, otsa-, liite- jm katteliistud/plekid) + vihmaveerennid.
Sisemised vaheseinad PIR paneelid.

Avatäited: 1 tõstuks ~2,0 x 2,1 m (võite pakkuda standardmõõtu), 2 akent ~1,0 x 1,4 m, 1 välisuks ca 80–90 cm
Põrand: betoonpõrand.


Tehnosüsteemid (indikatsioon):

Küte: õhk-õhk (pakkuda vajadusel muu sobiv lahendus) 2 siseosa ja külmakaitse režiimiga.
Ventilatsioon: soojustagastusega, köögi osas eraldi väljatõmbe valmidus(kubu jaoks)
Vesi: Salvkaev on tellitud eraldi (paigaldus 2026 suvel) soe vesi: elektriboiler ca 100L tühjendamisvõimalusega.
Kanalisatsioon: palun pakkuda septiku lahendus (või alternatiivne sobiv lahendus).
Põrandakütte valmiduse torustik (köök, riietusruum, wc, tehnoruumi osas ehk ca 45m2 osas)

Soovin, et pakkumises oleks eristatult näidatud:
1. Projekteerimine (sh ehitusprojekt/projekteerimise ulatus) kooskõlastused,
2. Hoone karkass + PIR-paneelid + plekid + rennid + avatäited,
3. Vundament/betoonplaat (koos põrandakütte valmidusega),
4. Tehnosüsteemid (küte, ventilatsioon, vee/kanali ettevalmistus),

Lisada ajakava ja garantii info.
Palun andke teada ka orienteeruv teostusaeg.

Pildid, video ja failid

Hanke korraldaja: eraisik ID96712

Pakkumised

Pakkumisi kokku: 3

Ettevõte Summa Käibemaks Lisatud Vestlus
Kasutaja ikoon ID62281
Pakkuja profiil Väike nool paremale
3 300€ KM lisandub KM lisandub 25.02.2026 Vestlus (0)

Pakkumise kirjeldus:

Tere,
Eelprojekt ehitusloa taotlemise mahus maksab 3200EUR+ KM. Lisanduvad riigilõiv ja geoaluse maksumus, kui seda veel ei ole. See hind sisaldab ka ehitusloa taotlemist. Projekteerimisega alustada saame kohe peale ettemaksu tasumist. Peale ehitusprojekti valmimist saab teha täpsema hinnapakkumise. Suurusjärk sellise hoone puhul on 30 000EUR+ KM- 60 00 ... Rohkem

Kasutaja ikoon ID96730
Pakkuja profiil Väike nool paremale
9 800€ Sisaldab KM Sisaldab KM 25.02.2026 Vestlus (0)

Pakkumise kirjeldus:

Elektritööd sisaldavad järgmist: Majutus (lühiajaline üür)
Transport, töö+ material, Magistraalkaablid ja peakaabel, Maanduse ehitus
Lülitid ja pistikupesad (standardseeria Schneider Sedna – valge), Elektriprojekt, Teostusdokumentatsioon ja mõõdistused, Nõuetekohasuse tunnistuse vormistamine (hoone kasutuselevõtuks), Pakkumine ei sisalda: Va ... Rohkem

Kasutaja ikoon ID96302
Pakkuja profiil Väike nool paremale
84 300€ KM lisandub KM lisandub 03.03.2026 Vestlus (0)

Pakkumise kirjeldus:

Pakkumine vastavalt päringule. Võtmed kätte lahendus. Sisaldab ka kööki.

Küsimused hanke korraldajale

Küsimus: private ID87262   25.02.2026 10:26
Tere!

Sooviksin täpsustada, kas olete huvitatud komplekssest pakkumisest, kus nii projekteerimine kui ka ehitustööd teostab üks ettevõte,
või
me saame teha Teile hinnapakkumise üksnes hoone ehitusprojekti koostamiseks ja selle kooskõlastamiseks kohaliku omavalitsusega?

Teavita reeglite rikkumisest

Korraldaja vastus: 25.02.2026 21:13

Tervist, sooviks kompleksile pakkumist pigem.

Teavita reeglite rikkumisest

Küsimus: private ID96736   26.02.2026 08:32
Tere
Kas siseseinad on laotud või võivad ollla sw-paneelist?

Teavita reeglite rikkumisest

Korraldaja vastus: 26.02.2026 08:35

Siseseinad sobivad sw/PIR paneelist. Arvestada, et külmkambri seinad on eraldi tellitud.

Teavita reeglite rikkumisest

Küsimus: private ID96736   26.02.2026 08:38
Siis sees võiks olla 100mm paneel?

Teavita reeglite rikkumisest

Korraldaja vastus: 26.02.2026 09:19

Jah, sisesein sobib õhem.

Teavita reeglite rikkumisest

Lisa küsimus

Lisa küsimus

Minu pakkumine

Reeglid

Pakkumise kirjelduse väli on mõeldud pakkumise detailsemaks lahti kirjutamiseks. Pikema teksti mugavaks sisestamiseks klikkige kasti paremal ülaservas oleval ikoonil.
Pakkumist tehes on keelatud postitada enda kontaktandmeid (nimi, telefon, aadress jne). Me jälgime ja analüüsime pakkumisi, et vältida pettuseid ja reeglite rikkumisi.
Rikkumise puhul kasutajakonto blokeeritakse.

 

Vanemad teated:

Vaata kõiki

Sellel veebilehel kasutatakse küpsiseid. Kasutamist jätkates nõustute küpsiste kasutamisega.

Sulge
 
Minu pakkumine

Reeglid

Pakkumise kirjelduse väli on mõeldud pakkumise detailsemaks lahti kirjutamiseks. Pikema teksti mugavaks sisestamiseks klikkige kasti paremal ülaservas oleval ikoonil.
Pakkumist tehes on keelatud postitada enda kontaktandmeid (nimi, telefon, aadress jne). Me jälgime ja analüüsime pakkumisi, et vältida pettuseid ja reeglite rikkumisi.
Rikkumise puhul kasutajakonto blokeeritakse.