+ Lisa oma töö      

Otsid ehitajat "Siseviimistlustööd" valdkonnast?

Parima pakkumise ja teostaja leidmiseks lisa oma töö.

Puitpõranda lihvimine ja viimistlemine

ID 129847

900 vaatamist

Prindi

  • check Pakkumiste tegemine
    kuni 24.02.2026
  • check Võitja valik kuni
    06.03.2026
  • 3 Töö teostamine
    ja hinnang
Hanke lõpp: T, 24. veebruar, 2026
Maakond: Harjumaa
Tööde lõpp: Kokkuleppel
Ehitusmaterjalid: Töö tellija poolt
Soovin pakkumisi: Summa kogu projektile

Töö sisu

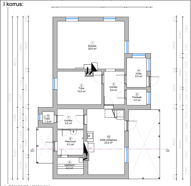
Soovin pakkumist u 29 m² põrandapinna lihvimiseks ja viimistlemiseks (lakk, õli, vaha vms ). Asub I korrusel (joonisel märgitud "Elutuba") ja mööbli viime ise välja enne tööde teostamist.

Pildid, video ja failid

Hanke korraldaja: eraisik ID92032

Pakkumised

Pakkumisi kokku: 5

Ettevõte Summa Käibemaks Lisatud Vestlus
Kasutaja ikoon ID83094
Pakkuja profiil Väike nool paremale
850€ Ei ole KMKR Ei ole KMKR 22.02.2026 Vestlus (0)

Pakkumise kirjeldus:

Lihvime ja viimistleme toonimata viimistlusega. Hinna sees ka poolmatt toonimata lakk või õlivaha. Vajalik ettemaks 30% kogusummast.

Kasutaja ikoon ID84914
Pakkuja profiil Väike nool paremale
1 240€ Ei ole KMKR Ei ole KMKR 24.02.2026 Vestlus (0)

Pakkumise kirjeldus:

Tere
Pakkumine sisaldab:
1. Külaskäiku enne tööga alustamist ja olukorra hindamist
2. Võimalusel põrandaliistuse eemaldamist ja ruumi isoleerimst teistest ruumidest
3. Praeguse viimistluse täielikku lihvimist
4. Viimistlemist Rubio Monocoat Oil +2C põrandaõliga.
5. Põrandaliistude tagasi paigaldamist.

Tööde ajaks 4 - 5 päeva.
Ettemaks ... Rohkem

Kasutaja ikoon ID94113
Pakkuja profiil Väike nool paremale
700€ Ei ole KMKR Ei ole KMKR 24.02.2026 Vestlus (0)

Pakkumise kirjeldus:

Tere
Minu pakkumine hankes olevale tööle.
Parimat

Kasutaja ikoon ID70952
Pakkuja profiil Väike nool paremale
900€ KM lisandub KM lisandub 24.02.2026 Vestlus (0)

Pakkumise kirjeldus:

Tere,
Saame selle töö kiirelt ja kvaliteetselt ära teha.
Hetkel hind on indikatiivne kuna oleks vaja natuke täpsemat infot ning objekti ülevaatust.Väike muutus võib olla + - kui kõik ülevaadatud ja Teie soovid ära kuulatud.
Kõigile töödele anname garantii 2 aastat ja materjalid saame ka ise tuua väga hea hinnaga.

Lugupidamisega

Kasutaja ikoon ID42599
Pakkuja profiil Väike nool paremale
750€ Sisaldab KM Sisaldab KM 24.02.2026 Vestlus (0)

Pakkumise kirjeldus:

Tere

Puitpõranda lihvimine ja pinnatöötlus vastavalt teie poolt antud andmetele

Küsimused hanke korraldajale

Küsimus: private ID84914   24.02.2026 09:58
Tere
Kus kandis Harjumaal asute?

Teavita reeglite rikkumisest

Korraldaja vastus: 24.02.2026 10:44

Saue vallas, Turba kandis.

Teavita reeglite rikkumisest

Lisa küsimus

Lisa küsimus

Minu pakkumine

Reeglid

Pakkumise kirjelduse väli on mõeldud pakkumise detailsemaks lahti kirjutamiseks. Pikema teksti mugavaks sisestamiseks klikkige kasti paremal ülaservas oleval ikoonil.
Pakkumist tehes on keelatud postitada enda kontaktandmeid (nimi, telefon, aadress jne). Me jälgime ja analüüsime pakkumisi, et vältida pettuseid ja reeglite rikkumisi.
Rikkumise puhul kasutajakonto blokeeritakse.

 

Teisi töid samas valdkonnas

Valdkonnas "Siseviimistlustööd" on 18 aktiivset tööd

no-img Pilt puudub

Seinte ja lagede värvimine

Asukoht: Harjumaa, Tallinn
Aega jäänud: 7h 23 min
Tehtud pakkumisi: 10

Kraanikausialuste torude ja sifooni tagasi kokkupanek

Asukoht: Harjumaa, Tallinn
Aega jäänud: 2p 7h
Tehtud pakkumisi: 7

Vanemad teated:

Vaata kõiki

Sellel veebilehel kasutatakse küpsiseid. Kasutamist jätkates nõustute küpsiste kasutamisega.

Sulge
 
Minu pakkumine

Reeglid

Pakkumise kirjelduse väli on mõeldud pakkumise detailsemaks lahti kirjutamiseks. Pikema teksti mugavaks sisestamiseks klikkige kasti paremal ülaservas oleval ikoonil.
Pakkumist tehes on keelatud postitada enda kontaktandmeid (nimi, telefon, aadress jne). Me jälgime ja analüüsime pakkumisi, et vältida pettuseid ja reeglite rikkumisi.
Rikkumise puhul kasutajakonto blokeeritakse.