+ Lisa oma töö      

Otsid ehitajat "Üldehitus" valdkonnast?

Parima pakkumise ja teostaja leidmiseks lisa oma töö.

Plokide ladumine

ID 129294

1530 vaatamist

Prindi

  • check Pakkumiste tegemine
    kuni 25.02.2026
  • check Võitja valik kuni
    07.03.2026
  • 3 Töö teostamine
    ja hinnang
Hanke lõpp: K, 25. veebruar, 2026
Maakond: Lääne-Virumaa
Muu asula: Väike-Maarja
Tööde lõpp: E, 08. juuni, 2026
Ehitusmaterjalid: Töö tegija poolt
Soovin pakkumisi: Summa kogu projektile

Töö sisu

Gaaraasi seinte ladumine vandest plokkidest . oletatav plokkide määr 400... plokid olemas hinnas eraldi välja tuua vajamineva materjali maksumus ja hind tööle.

Pildid, video ja failid

Hanke korraldaja: eraisik ID95462

Pakkumised

Pakkumisi kokku: 4

Ettevõte Summa Käibemaks Lisatud Vestlus
Kasutaja ikoon ID67410
Pakkuja profiil Väike nool paremale
1 660€ Ei ole KMKR Ei ole KMKR 09.02.2026 Vestlus (5)

Pakkumise kirjeldus:

Ladumine 1230
Segu 300
Armatuur 100
hange.ee tasu

Kasutaja ikoon ID44469
Pakkuja profiil Väike nool paremale
1 200€ KM lisandub KM lisandub 10.02.2026 Vestlus (4)
Kasutaja ikoon ID95593
Pakkuja profiil Väike nool paremale
1 400€ KM lisandub KM lisandub 11.02.2026 Vestlus (3)

Pakkumise kirjeldus:

tere materjal 400+ tööraha,

Kasutaja ikoon ID85629
Pakkuja profiil Väike nool paremale
2 000€ KM lisandub KM lisandub 24.02.2026 Vestlus (0)

Pakkumise kirjeldus:

Töö on jämedalt 1500€. Kuid konkreetne ruudu hind on 30€. Eeldatavalt laheb 500€ jagu segu. KM on labiraagitav, kuna on ka firma ilma km kohustuseta.

Küsimused hanke korraldajale

Küsimus: private ID75094   09.02.2026 07:51
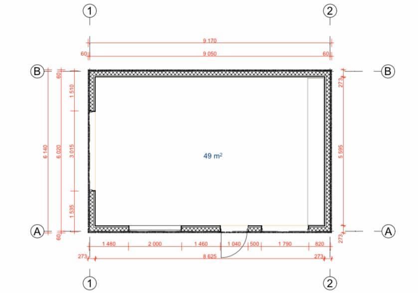
Tere, palun lisage ploki mõōdud ja garaaži mõõtmed
(pikkus x laius x kõrgus)

Teavita reeglite rikkumisest

Korraldaja vastus: 11.02.2026 18:39

9 korda 5 millest alumine osa tuleb kivist. ja yks sein kivist kuna plaan sisse ahi ehitada. teisele poole tuleb garaazi uks . Yritan joonise yles leida .

Teavita reeglite rikkumisest

Küsimus: private ID67410   09.02.2026 08:31
Tere.
Kas ruum on soe?

Teavita reeglite rikkumisest

Korraldaja vastus: 11.02.2026 18:39

Garaazi pörand valatud. Vundamendile välis seinte ehitus . Märge ,et tööd juunis .Kevad meile natuke sooja pakkunud siis soov oleks töödega alustada .Almatuur teras olemas . täpsemalt oskan öelda ,kui lumi sulanud .

Teavita reeglite rikkumisest

Küsimus: private ID44469   09.02.2026 09:42
Tere,
Mis plokkidega tegu?

Teavita reeglite rikkumisest

Korraldaja vastus: 19.02.2026 12:34

Pilt lisatud

Teavita reeglite rikkumisest

Küsimus: private ID67410   13.02.2026 08:30
Kui kõrged seinad tulevad?
Kas ka sillused uste akendele?

Teavita reeglite rikkumisest

Korraldaja vastus: 19.02.2026 12:23

Sooviks alumise ringi .joonisel näha ,et yhte otsa tuleb suur uks .teises seinas uks ja akna koht. Kivi rida peaks siis jooksma oletava akna alaraamist 2 kihti körgemale. akna ylemine ja pool akent jääks puidust karkassi sisse.
seega ei vaja silluseid ustele ja akendele.

Teavita reeglite rikkumisest

Lisa küsimus

Lisa küsimus

Minu pakkumine

Reeglid

Pakkumise kirjelduse väli on mõeldud pakkumise detailsemaks lahti kirjutamiseks. Pikema teksti mugavaks sisestamiseks klikkige kasti paremal ülaservas oleval ikoonil.
Pakkumist tehes on keelatud postitada enda kontaktandmeid (nimi, telefon, aadress jne). Me jälgime ja analüüsime pakkumisi, et vältida pettuseid ja reeglite rikkumisi.
Rikkumise puhul kasutajakonto blokeeritakse.

 

Teisi töid samas valdkonnas

Valdkonnas "Üldehitus" on 42 aktiivset tööd

no-img Pilt puudub

Majal terrassi vahetus

Asukoht: Harjumaa, Tallinn
Aega jäänud: 8h 56 min
Tehtud pakkumisi: 5

Valamu paigaldus

Asukoht: Harjumaa, Tallinn
Aega jäänud: 8h 56 min
Tehtud pakkumisi: 4

Vanemad teated:

Vaata kõiki

Sellel veebilehel kasutatakse küpsiseid. Kasutamist jätkates nõustute küpsiste kasutamisega.

Sulge
 
Minu pakkumine

Reeglid

Pakkumise kirjelduse väli on mõeldud pakkumise detailsemaks lahti kirjutamiseks. Pikema teksti mugavaks sisestamiseks klikkige kasti paremal ülaservas oleval ikoonil.
Pakkumist tehes on keelatud postitada enda kontaktandmeid (nimi, telefon, aadress jne). Me jälgime ja analüüsime pakkumisi, et vältida pettuseid ja reeglite rikkumisi.
Rikkumise puhul kasutajakonto blokeeritakse.