+ Lisa oma töö      

Otsid ehitajat "Üldehitus" valdkonnast?

Parima pakkumise ja teostaja leidmiseks lisa oma töö.

Seina ava ehitamine + toestamine

ID 129173

1109 vaatamist

Prindi

  • check Pakkumiste tegemine
    kuni 13.02.2026
  • check Võitja valik kuni
    23.02.2026
  • 3 Töö teostamine
    ja hinnang
Hanke lõpp: R, 13. veebruar, 2026
Maakond: Viljandimaa
Muu asula: Viiratsi
Tööde lõpp: R, 27. veebruar, 2026
Ehitusmaterjalid: Töö tegija poolt
Soovin pakkumisi: Summa kogu projektile

Töö sisu

Tere

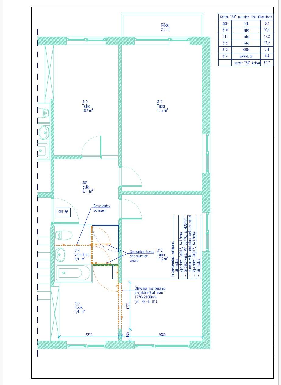
Soovin hinnapakkumist seina ava ehitamiseks elutoa ja köögi vahele. Eelprojekt selleks on olemas.
Tööd tuleb teostada vastavalt projektile ja lisaks elutoa ning esiku vahelisele seina ava samale kõrgusele lõikamine ning toestamine (praegu ukse ava).

Materjali utiliseerimine töövõtja poolt, töövahendid töövõtja poolt. Pädevus töövõtja poolt.

Pildid, video ja failid

Hanke korraldaja: ettevõte ID48563

Pakkumised

Pakkumisi kokku: 3

Ettevõte Summa Käibemaks Lisatud Vestlus
Kasutaja ikoon ID95354
Pakkuja profiil Väike nool paremale
3 330€ KM lisandub KM lisandub 07.02.2026 Vestlus (0)

Pakkumise kirjeldus:

Pakkumine sisaldab kõiki töid ja materjale vastavalt projektile, ajutist toestamist, terastalade paigaldust ning ehitusjäätmete utiliseerimist.Võimalusel saab arveldada ilm km-ta

Kasutaja ikoon ID50985
Pakkuja profiil Väike nool paremale
2 000€ Ei ole KMKR Ei ole KMKR 12.02.2026 Vestlus (0)
Kasutaja ikoon ID93842
Pakkuja profiil Väike nool paremale
9 400€ Sisaldab KM Sisaldab KM 13.02.2026 Vestlus (0)

Pakkumise kirjeldus:

Meil on üle 20 aasta kogemust nii väiksemate kui ka suuremahuliste projektide elluviimisel üle kogu Eesti.
Meie meeskonda kuuluvad vajaliku pädevusega arhitektid ja ehitusinsenerid, et tagades tööde kvaliteet ja vastavus kehtivatele nõuetele.

Küsimused hanke korraldajale

Hanke korraldajale ei ole veel küsimusi esitatud.

Lisa küsimus

Lisa küsimus

Minu pakkumine

Reeglid

Pakkumise kirjelduse väli on mõeldud pakkumise detailsemaks lahti kirjutamiseks. Pikema teksti mugavaks sisestamiseks klikkige kasti paremal ülaservas oleval ikoonil.
Pakkumist tehes on keelatud postitada enda kontaktandmeid (nimi, telefon, aadress jne). Me jälgime ja analüüsime pakkumisi, et vältida pettuseid ja reeglite rikkumisi.
Rikkumise puhul kasutajakonto blokeeritakse.

 

Teisi töid samas valdkonnas

Valdkonnas "Üldehitus" on 42 aktiivset tööd

no-img Pilt puudub

Majal terrassi vahetus

Asukoht: Harjumaa, Tallinn
Aega jäänud: 7h 17 min
Tehtud pakkumisi: 5

Valamu paigaldus

Asukoht: Harjumaa, Tallinn
Aega jäänud: 7h 17 min
Tehtud pakkumisi: 4

Vanemad teated:

Vaata kõiki

Sellel veebilehel kasutatakse küpsiseid. Kasutamist jätkates nõustute küpsiste kasutamisega.

Sulge
 
Minu pakkumine

Reeglid

Pakkumise kirjelduse väli on mõeldud pakkumise detailsemaks lahti kirjutamiseks. Pikema teksti mugavaks sisestamiseks klikkige kasti paremal ülaservas oleval ikoonil.
Pakkumist tehes on keelatud postitada enda kontaktandmeid (nimi, telefon, aadress jne). Me jälgime ja analüüsime pakkumisi, et vältida pettuseid ja reeglite rikkumisi.
Rikkumise puhul kasutajakonto blokeeritakse.