+ Lisa oma töö      

Otsid ehitajat "Üldehitus" valdkonnast?

Parima pakkumise ja teostaja leidmiseks lisa oma töö.

Hange on lõppenud!

Võitjaks osutus kasutaja ID 95354

Korteri remont

ID 129074

1247 vaatamist

Prindi

  • check Pakkumiste tegemine
    kuni 10.02.2026
  • check Võitja valik kuni
    20.02.2026
  • 3 Töö teostamine
    ja hinnang
Hanke lõpp: T, 10. veebruar, 2026
Maakond: Viljandimaa
Muu asula: Viiratsi
Tööde lõpp: P, 05. aprill, 2026
Ehitusmaterjalid: Töö tellija poolt
Soovin pakkumisi: Tüki- või ühikuhinda

Töö sisu

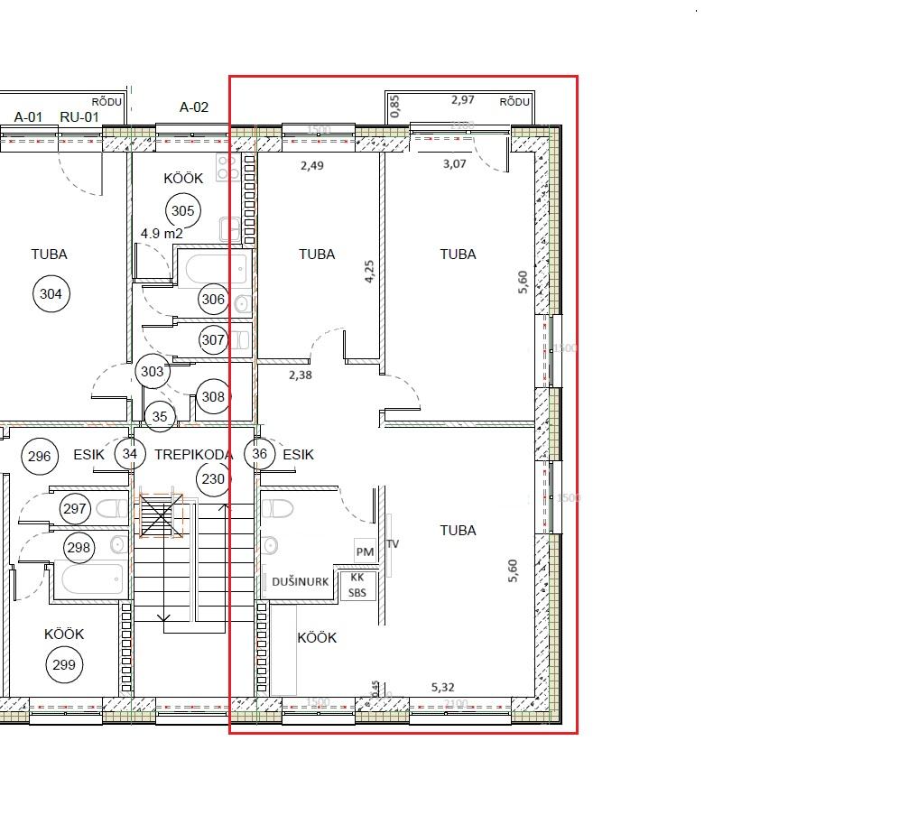
3-toaline, III korrus, 60,7 m2 korteri renoveerimine.

Pakkuda nii tükitöö kui ka tunnitöö hinda.

Elektritöödeks on kokkulepe olemas.

Duširuumi ja wc väljaehitamiseks võib pakkuda ka eraldi tüki hinda (plaanis, seinad siledaks, suurem plaat märjale alale, värv wc alale, lakke karkass+veekindel paneel või kips+värv, põrandale plaat wc alal, torutööd hinnas (torutööd ka köögi osas). Vannitoa sanitaartehnika paigaldus hinna sees. Mööbli ja peegli, duši seinte jms paigaldus hinna sees. Ainult elektri teeb elektrik.

Pildid, video ja failid

Hanke korraldaja: ettevõte ID48563

Pakkumised

Pakkumisi kokku: 6

Ettevõte Summa Käibemaks Lisatud Vestlus
Kasutaja ikoon ID95354
Pakkuja profiil Väike nool paremale
5 000€ Sisaldab KM Sisaldab KM 04.02.2026 Vestlus (0)

Pakkumise kirjeldus:

Pakkumine sisaldab 3-toalise, 60,7 m² korteri üldremondi tööde teostamist III korrusel vastavalt hanke kirjeldusele. Materjalid tagab tellija ning pakkumine sisaldab ainult tööjõukulu. Elektritööd ei kuulu pakkumise hulka.
Kogu korteri üldremont (v.a vannituba ja WC) teostatakse tunnitööna. Tööde hulka kuuluvad lammutus- ja ettevalmistustööd ... Rohkem

Kasutaja ikoon ID84067
Pakkuja profiil Väike nool paremale
15€ Sisaldab KM Sisaldab KM 04.02.2026 Vestlus (0)

Pakkumise kirjeldus:

Tere , tunnitööga saaks kõik vaikselt ja ilusti tehtud need tööd.

Kõike head

Kasutaja ikoon ID93971
Pakkuja profiil Väike nool paremale
20€ Ei ole KMKR Ei ole KMKR 04.02.2026 Vestlus (0)

Pakkumise kirjeldus:

Tere

Pakkumine on tehtud tunnihinna alusel 20eurot/ h uhe toomehe kohta .

Materjal tellija poolt.

Kasutaja ikoon ID91360
Pakkuja profiil Väike nool paremale
2 000€ Ei ole KMKR Ei ole KMKR 09.02.2026 Vestlus (0)

Pakkumise kirjeldus:

Töö hind

Kasutaja ikoon ID96393
Pakkuja profiil Väike nool paremale
26 700€ Ei ole KMKR Ei ole KMKR 10.02.2026 Vestlus (0)

Pakkumise kirjeldus:

Tere, pakkumises on tunni hind eelnimetatud tööde teostus kahe tööriistadega mehe poolt
Arvestatud on, et materjalid on olemas, samuti tarvikud ja seadmed. Töö valmib etappides ja tasu ootame etappide valmimisel.
Tööde etapid lepitakse Tellijaga kokku häid tavasid järgides
Koike head!

Kasutaja ikoon ID90311
Pakkuja profiil Väike nool paremale
30€ Ei ole KMKR Ei ole KMKR 10.02.2026 Vestlus (0)

Pakkumise kirjeldus:

Pakume korteri remonditöid vastavalt hanke kirjeldusele ja tellija soovidele. Hinnad on koostatud tööraha põhiselt ning lähtuvad hetkel teadaolevast töömahust. Täpne hind täpsustub pärast tööde sisu ja viimistluslahenduste (nt tapeet/värv) lõplikku kokkulepet.


Duširuumi ja WC väljaehitus (eraldi pakkumine):

Hind: 6 000 € (tööraha) ... Rohkem

Küsimused hanke korraldajale

Hanke korraldajale ei ole veel küsimusi esitatud.

Lisa küsimus

Lisa küsimus

Minu pakkumine

Reeglid

Pakkumise kirjelduse väli on mõeldud pakkumise detailsemaks lahti kirjutamiseks. Pikema teksti mugavaks sisestamiseks klikkige kasti paremal ülaservas oleval ikoonil.
Pakkumist tehes on keelatud postitada enda kontaktandmeid (nimi, telefon, aadress jne). Me jälgime ja analüüsime pakkumisi, et vältida pettuseid ja reeglite rikkumisi.
Rikkumise puhul kasutajakonto blokeeritakse.

 

Teisi töid samas valdkonnas

Valdkonnas "Üldehitus" on 42 aktiivset tööd

no-img Pilt puudub

Majal terrassi vahetus

Asukoht: Harjumaa, Tallinn
Aega jäänud: 8h 56 min
Tehtud pakkumisi: 5

Valamu paigaldus

Asukoht: Harjumaa, Tallinn
Aega jäänud: 8h 56 min
Tehtud pakkumisi: 4

Vanemad teated:

Vaata kõiki

Sellel veebilehel kasutatakse küpsiseid. Kasutamist jätkates nõustute küpsiste kasutamisega.

Sulge
 
Minu pakkumine

Reeglid

Pakkumise kirjelduse väli on mõeldud pakkumise detailsemaks lahti kirjutamiseks. Pikema teksti mugavaks sisestamiseks klikkige kasti paremal ülaservas oleval ikoonil.
Pakkumist tehes on keelatud postitada enda kontaktandmeid (nimi, telefon, aadress jne). Me jälgime ja analüüsime pakkumisi, et vältida pettuseid ja reeglite rikkumisi.
Rikkumise puhul kasutajakonto blokeeritakse.