+ Lisa oma töö      

Otsid ehitajat "Siseviimistlustööd" valdkonnast?

Parima pakkumise ja teostaja leidmiseks lisa oma töö.

Laepaneelide paigaldus korteris (u 60+ m²)

ID 129046

1063 vaatamist

Prindi

  • check Pakkumiste tegemine
    kuni 06.02.2026
  • check Võitja valik kuni
    16.02.2026
  • 3 Töö teostamine
    ja hinnang
Hanke lõpp: R, 6. veebruar, 2026
Maakond: Harjumaa
Muu asula: Kiiu
Tööde lõpp: Kokkuleppel
Ehitusmaterjalid: Töö tellija poolt
Soovin pakkumisi: Summa kogu projektile

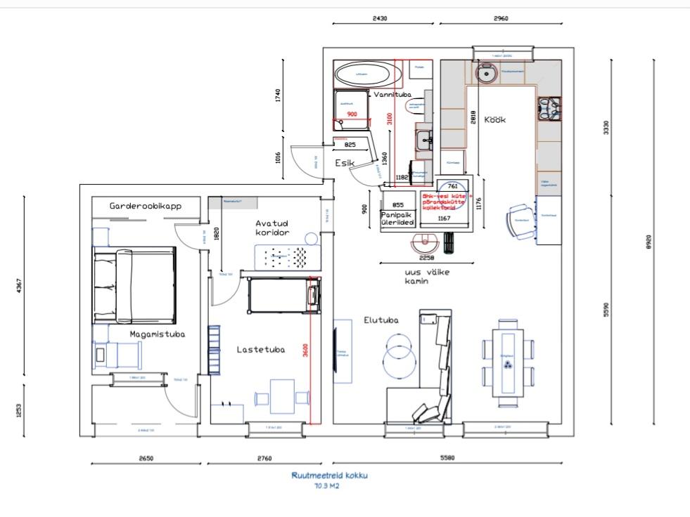
Töö sisu

Soovin leida töömehe/d korteri lagede katmiseks laepaneelidega Kiiu alevikus.

Töö sisu:
Lagede katmine laudise/laepaneelidega kokku ca 60+ m² (elutuba/köök, magamistuba 1, magamistuba 2, vahetuba/koridor).
Laepaneelid on olemas ja asuvad juba korteris. Paneelid: MDF viimistluspaneel Premium 2480×198×5,5 mm
Paneelide alla on vaja teha alus:
kas metallkarkass või puitroovitus / lisalaudis (palun hinnake kohapeal, kumb mõistlikum).
Elutoas on osaliselt metallkarkass juba olemas (kuid vale pidi, sest paneeldie suund peaks olema samamoodi nagu on põrandal oleval laminaadil). Metallkarkassi on olemas ka keldris varus.
Lae all on olemas elektrijuhtmestik, mis peab jääma paneelide taha.

Vajalikud tööd valgustitele:
avad juhtmetele
avad süvistatavatele LED-valgustitele (täpne kohtade arv/paigutus kokkuleppel või minu märgistuse järgi).

Ootan pakkujalt:
Pakkumine “võtmed kätte”: karkassi/roovituse ehitus + paneelide paigaldus + vajalikud lõiked/avad.
Kirjelda, mida hinnas sisaldub (karkassi materjalid, kinnitusvahendid, liistud/viimistlus, transport, koristus jne).
Töö teostamise ajaraam + eeldatav kestus.
Varasem kogemus sarnase tööga (soovi korral pildid).
Garantii tehtud tööle.

Täpsustuseks (oluline):
Elektri ühendamise (valgustite ühendus) osas: palun märgi pakkumises, kas teed ainult avad ja paigalduse või saad teha ka osade valgustite ühendamise, juhtmed lagede all juba veetud.

Pildid, video ja failid

Hanke korraldaja: eraisik ID96284

Pakkumised

Pakkumisi kokku: 11

Ettevõte Summa Käibemaks Lisatud Vestlus
Kasutaja ikoon ID4030
Pakkuja profiil Väike nool paremale
3 800€ KM lisandub KM lisandub 03.02.2026 Vestlus (0)

Pakkumise kirjeldus:

Hind sisaldab kõik vaja minevaid materjale ja tööd mis on vajalikud korrektse lõpp tulemuse saavutamiseks, ka neid mis teil kirjeldatud pole. Välja arvatud siis lae paneelid. Karkassi paigaldust koos materjaliga, kinnitusvahendid, ääreliistud. Valgustite paigaldust. Koristus. Töö kestvus max 5 päeva. Nagu ikka 2 aastat garantiid, Varasem kogemus ol ... Rohkem

Kasutaja ikoon ID87168
Pakkuja profiil Väike nool paremale
2 500€ Ei ole KMKR Ei ole KMKR 03.02.2026 Vestlus (0)

Pakkumise kirjeldus:

Töö sisu:
Korteri lagede katmine MDF viimistluspaneelidega (Premium 2480×198×5,5 mm).
Tööde maht: ca 60–65 m².
Paneelid on tellija poolt.
Sisaldub hinnas (“võtmed kätte”):
Aluskarkassi ehitus (metall või puit – vastavalt olukorrale kohapeal)
Olemasoleva karkassi osaline ümbertegemine elutoas
Laepaneelide paigaldus
Avade tegemine ju ... Rohkem

Kasutaja ikoon ID73146
Pakkuja profiil Väike nool paremale
3 550€ KM lisandub KM lisandub 04.02.2026 Vestlus (0)

Pakkumise kirjeldus:

Tere! Pakkumine tööle ja materjalidele.
Hind sisaldab kõike mis hankes kirjeldatud oli, võtmed kätte lahendus.

Kasutaja ikoon ID77777
Pakkuja profiil Väike nool paremale
2 700€ KM lisandub KM lisandub 04.02.2026 Vestlus (0)

Pakkumise kirjeldus:

Täislahendus, paneelid teie poolt, muu meie poolt. Arveta km ei lisandu.

Kasutaja ikoon ID36489
Pakkuja profiil Väike nool paremale
1 950€ Ei ole KMKR Ei ole KMKR 04.02.2026 Vestlus (0)

Pakkumise kirjeldus:

Hinnas karkassi ja paneelide paigaldus. Alustada saan 2 märtsil.

Kasutaja ikoon ID47901
Pakkuja profiil Väike nool paremale
3 000€ Ei ole KMKR Ei ole KMKR 04.02.2026 Vestlus (0)
Kasutaja ikoon ID95780
Pakkuja profiil Väike nool paremale
1 950€ Sisaldab KM Sisaldab KM 06.02.2026 Vestlus (0)

Pakkumise kirjeldus:

Tere!

Pakume teha täieliku võtmed kätte töö MDF-paneelide paigaldamiseks laele (~60 m²) hinnaga 1950 € (töö hind):
• karkassi / roovituse ehitus (metall või puit)
• paneelide paigaldus
• lõiked ja avad LED-ide ning elektrijuhtmete jaoks
• kinnitused, liistud, koristus
• tehtud tööle garantii

Saame teha ka kõik elektri ... Rohkem

Kasutaja ikoon ID93701
Pakkuja profiil Väike nool paremale
1 980€ Sisaldab KM Sisaldab KM 06.02.2026 Vestlus (0)

Pakkumise kirjeldus:

Tere päevast!
MDF-paneelide paigaldustööd teostab ettevõte lepingu alusel, võtmed kätte. Teostatud töödele kehtib garantii.

1,) Tööde maksumus – 1500 eurot.

2.) K.M. 24% – 360 eurot.

3.) Hanke (tenderi) maksumus – 120 eurot.
Materjalid tagab tellija

Kasutaja ikoon ID88424
Pakkuja profiil Väike nool paremale
1 900€ Sisaldab KM Sisaldab KM 06.02.2026 Vestlus (0)

Pakkumise kirjeldus:

Pakkumine kirjeldatud tööle

Kasutaja ikoon ID50594
Pakkuja profiil Väike nool paremale
5 680€ KM lisandub KM lisandub 06.02.2026 Vestlus (0)

Pakkumise kirjeldus:

Tere,

Pakkumine vastavalt hanke kirjeldusele.

Lgp. Taivo

Kasutaja ikoon ID36890
Pakkuja profiil Väike nool paremale
1 700€ Ei ole KMKR Ei ole KMKR 06.02.2026 Vestlus (0)

Pakkumise kirjeldus:

Tere! Hind sisaldab: puitkarkassi, kinnitusvahendid, liistud, transporti, koristust ja valgustite ühendust,
Töö teostaksime 7 tööpäevaga.
Garantii: 3 aastat.

Küsimused hanke korraldajale

Küsimus: private ID36489   04.02.2026 13:42
Tere, millal soovite tööd teostatada?

Teavita reeglite rikkumisest

Korraldaja vastus: 04.02.2026 13:44

Hea pakkumise saamisel esimesel võimalusel aga oleks aega ka oodata veel selle tööga.

Teavita reeglite rikkumisest

Lisa küsimus

Lisa küsimus

Minu pakkumine

Reeglid

Pakkumise kirjelduse väli on mõeldud pakkumise detailsemaks lahti kirjutamiseks. Pikema teksti mugavaks sisestamiseks klikkige kasti paremal ülaservas oleval ikoonil.
Pakkumist tehes on keelatud postitada enda kontaktandmeid (nimi, telefon, aadress jne). Me jälgime ja analüüsime pakkumisi, et vältida pettuseid ja reeglite rikkumisi.
Rikkumise puhul kasutajakonto blokeeritakse.

 

Teisi töid samas valdkonnas

Valdkonnas "Siseviimistlustööd" on 18 aktiivset tööd

no-img Pilt puudub

Seinte ja lagede värvimine

Asukoht: Harjumaa, Tallinn
Aega jäänud: 5h 48 min
Tehtud pakkumisi: 10

Kraanikausialuste torude ja sifooni tagasi kokkupanek

Asukoht: Harjumaa, Tallinn
Aega jäänud: 2p 5h
Tehtud pakkumisi: 8

Vanemad teated:

Vaata kõiki

Sellel veebilehel kasutatakse küpsiseid. Kasutamist jätkates nõustute küpsiste kasutamisega.

Sulge
 
Minu pakkumine

Reeglid

Pakkumise kirjelduse väli on mõeldud pakkumise detailsemaks lahti kirjutamiseks. Pikema teksti mugavaks sisestamiseks klikkige kasti paremal ülaservas oleval ikoonil.
Pakkumist tehes on keelatud postitada enda kontaktandmeid (nimi, telefon, aadress jne). Me jälgime ja analüüsime pakkumisi, et vältida pettuseid ja reeglite rikkumisi.
Rikkumise puhul kasutajakonto blokeeritakse.