+ Lisa oma töö      

Otsid ehitajat "Üldehitus" valdkonnast?

Parima pakkumise ja teostaja leidmiseks lisa oma töö.

Vesi põrandakütte paigaldamine

ID 129000

1116 vaatamist

Prindi

  • check Pakkumiste tegemine
    kuni 09.02.2026
  • check Võitja valik kuni
    19.02.2026
  • 3 Töö teostamine
    ja hinnang
Hanke lõpp: E, 9. veebruar, 2026
Maakond: Harjumaa
Muu asula: Saku
Tööde lõpp: Kokkuleppel
Ehitusmaterjalid: Töö tegija poolt
Soovin pakkumisi: Summa kogu projektile

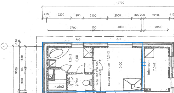
Töö sisu

Töö eeldab vana plaadi/materjali lahti võtmist, põrandakütte paigaldamist ja uue plaadi/viimistluse tegemist põrandale. Ühendustöid tehnoruumi vaja ei ole.

Pildid, video ja failid

Hanke korraldaja: eraisik ID86354

Pakkumised

Pakkumisi kokku: 3

Ettevõte Summa Käibemaks Lisatud Vestlus
Kasutaja ikoon ID87168
Pakkuja profiil Väike nool paremale
2 500€ Sisaldab KM Sisaldab KM 02.02.2026 Vestlus (0)

Pakkumise kirjeldus:

Tööde sisu:
• Olemasoleva põrandaplaadi demontaaž
• Soonestus põrandasse torustiku/trappide jaoks
• Uute trappide ühendamine olemasoleva kanalisatsiooniga
• Põranda tasandusvalu koos kallete kujundamisega (2 trapile)
• Hüdroisolatsiooni teostamine (põrand + vajalikud tõusud seinale)
• Uue põrandaplaadi paigaldus (plaadid tellija ... Rohkem

Kasutaja ikoon ID64032
Pakkuja profiil Väike nool paremale
11 500€ KM lisandub KM lisandub 05.02.2026 Vestlus (0)

Pakkumise kirjeldus:

Tere,

Hinnapakkumine vastavalt hanke kirjeldusele ning vastavalt ehitusnormidele, kogu pesuruumi remont. Tööde kestvus ca. 4 nädalat.
Küsimustele vastan meeleldi.

Parimate soovidega,
Kristjan

Kasutaja ikoon ID36489
Pakkuja profiil Väike nool paremale
2 800€ KM lisandub KM lisandub 06.02.2026 Vestlus (0)

Küsimused hanke korraldajale

Küsimus: private ID38464   02.02.2026 16:27
Tere.
Plaat eemaldada.
Sooned põrandasse.
Tasandus valu
Hüdro
Ja uus plaat?

Teavita reeglite rikkumisest

Korraldaja vastus: 02.02.2026 16:43

Tere
Uued plaadid toon ise, kuid vajalik oleks Teie poolt nende paigaldamine. Ülejäänud osas vajalik jah, terviklahendus.

Teavita reeglite rikkumisest

Küsimus: private ID54457   02.02.2026 17:45
Tere, kas kaldeid vaja ka või see on nö sos trapp?

Teavita reeglite rikkumisest

Korraldaja vastus: 02.02.2026 18:11

Tere

Kaldeid on ka vaja. Arvestada tuleb kahe trapiga, üks pesuruumis ja üks saunas.

Teavita reeglite rikkumisest

Küsimus: private ID64032   02.02.2026 18:41
Tere,

Kas olete kursis, et põranda ja seina hüdroisolatsioon tuleb teha koos?
Tehe tuleks saunas põrand koos tõstetega ja pesuruumis põrand ning seinad.
Juhin tähelepanu.
Hüdroisolatsiooni jätkata ei tohi. Veeaur ja vesi lähevad vuugist ning plaadist ka läbi. Kui niiskus hüdroisolatsiooni alla pääseb, siis see ei kuiva seal kunagi ära.
Ja kui teha ainult põrandale hüdroisolatsioon, siis ei järgita enam head ehitustava. Kui peaks midagi juhtuma, siis ka kindlustus ei kata, kuna tegemist on ehitusveaga.

Parimate soovidega,
Kristjan

Teavita reeglite rikkumisest

Korraldaja vastus: 03.02.2026 07:53

Tere

Arusaadav. Kas on siiski võimalus ainult avada n.ö alumine rida seinaplaatidel, et hüdroisolaotsioon ära teha?
Kui ei siis, palun teie poolt pakkumist ka seinaplaatide vahetamisele. Plaadid on liimitud kipsplaadile, seinakõrgust maast 260cm

Teavita reeglite rikkumisest

Lisa küsimus

Lisa küsimus

Minu pakkumine

Reeglid

Pakkumise kirjelduse väli on mõeldud pakkumise detailsemaks lahti kirjutamiseks. Pikema teksti mugavaks sisestamiseks klikkige kasti paremal ülaservas oleval ikoonil.
Pakkumist tehes on keelatud postitada enda kontaktandmeid (nimi, telefon, aadress jne). Me jälgime ja analüüsime pakkumisi, et vältida pettuseid ja reeglite rikkumisi.
Rikkumise puhul kasutajakonto blokeeritakse.

 

Teisi töid samas valdkonnas

Valdkonnas "Üldehitus" on 42 aktiivset tööd

no-img Pilt puudub

Majal terrassi vahetus

Asukoht: Harjumaa, Tallinn
Aega jäänud: 8h 50 min
Tehtud pakkumisi: 5

Valamu paigaldus

Asukoht: Harjumaa, Tallinn
Aega jäänud: 8h 50 min
Tehtud pakkumisi: 4

Vanemad teated:

Vaata kõiki

Sellel veebilehel kasutatakse küpsiseid. Kasutamist jätkates nõustute küpsiste kasutamisega.

Sulge
 
Minu pakkumine

Reeglid

Pakkumise kirjelduse väli on mõeldud pakkumise detailsemaks lahti kirjutamiseks. Pikema teksti mugavaks sisestamiseks klikkige kasti paremal ülaservas oleval ikoonil.
Pakkumist tehes on keelatud postitada enda kontaktandmeid (nimi, telefon, aadress jne). Me jälgime ja analüüsime pakkumisi, et vältida pettuseid ja reeglite rikkumisi.
Rikkumise puhul kasutajakonto blokeeritakse.