+ Lisa oma töö      

Otsid ehitajat "Elektritööd" valdkonnast?

Parima pakkumise ja teostaja leidmiseks lisa oma töö.

Hange on lõppenud!

Võitjaks osutus kasutaja ID 76190

Korraldaja hinnang tehtud tööle

5.0
03.05.2026
Töökiirus: 12345
Kvaliteet: 12345
Hind: 12345

Köögi elektritööd

ID 128898

1148 vaatamist

Prindi

  • check Pakkumiste tegemine
    kuni 02.02.2026
  • check Võitja valik kuni
    12.02.2026
  • 3 Töö teostamine
    ja hinnang
Hanke lõpp: E, 2. veebruar, 2026
Maakond: Harjumaa
Linn: Tallinn
Tööde lõpp: Kokkuleppel
Ehitusmaterjalid: Töö tegija poolt
Soovin pakkumisi: Summa kogu projektile

Töö sisu

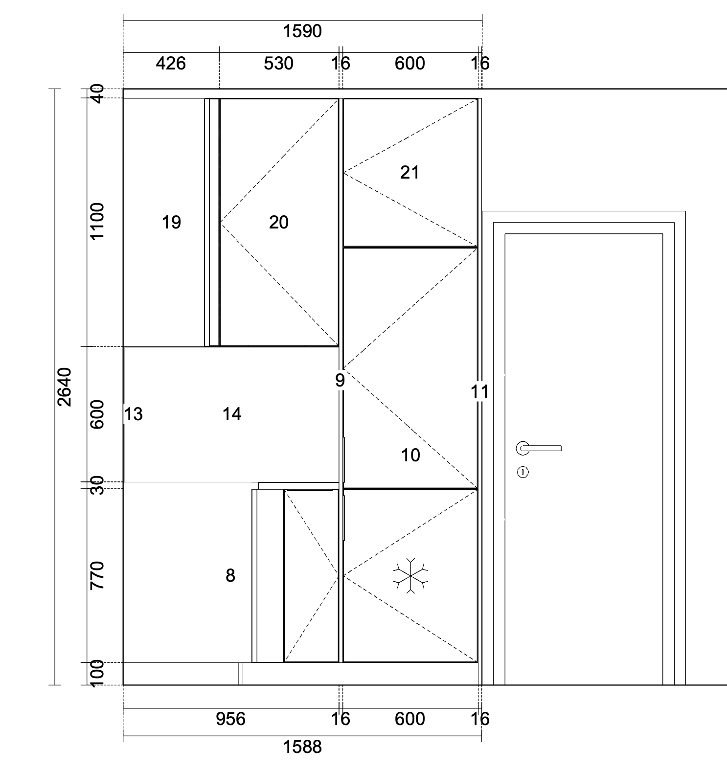
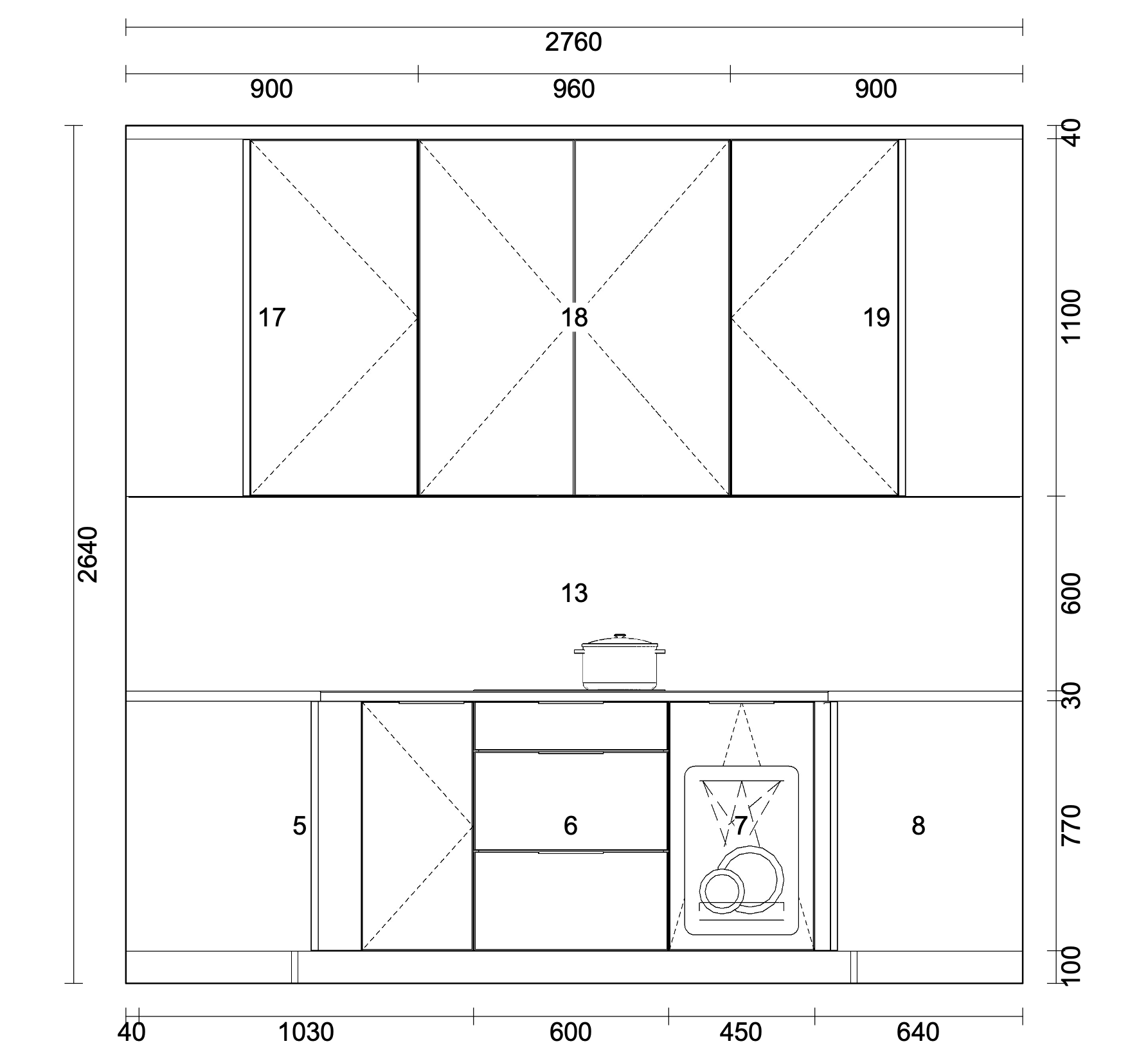
Korteri köögis on vaja teha elektritööd seoses elektripistikute ümberpaigutamise ja lisamisega. Tööde paiknemine köögis on kajastatud pildil “vana köök”. Tööd sisaldavad:

Töö 1: Pistiku (kaks pesa) ligutamine vannitoa seinas paremale (kõrgus jääb samaks, 1m maast), kõrvalseinast ca 20cm.
Töö 2: Elektri vedamine õhupuhastaja jaoks pliidi kohal. Kõrgus saab olema ca 170cm.
Töö 3: Seinapistikute (2 pesa) liigutamine paremale (kõrgus jääb samaks, 1m maast), kõrvalseinast ca 20cm.
Töö 4: Elektri vedamine ja pistiku paigaldamine külmiku jaoks. Samale kõrgusele kui senised “madalad pesad”.
Töö 5: Lüliti seinast eemaldamine ja juhtme paigaldamine, et see oleks hiljem võimalik paigaldada köögikapi seina sisse.

Köögi vasak- ja parem sein on fibost, otsaseina materjalis ei ole kindel. Manuses on vana plaan, kus on märgitud ka senised pistikud ja uue köögi plaanid.

Pildid, video ja failid

Hanke korraldaja: ettevõte ID96222

Pakkumised

Pakkumisi kokku: 7

Ettevõte Summa Käibemaks Lisatud Vestlus
Kasutaja ikoon ID91360
Pakkuja profiil Väike nool paremale
1 000€ Ei ole KMKR Ei ole KMKR 30.01.2026 Vestlus (0)

Pakkumise kirjeldus:

Töö hind koos materjal

Kasutaja ikoon ID85048
Pakkuja profiil Väike nool paremale
370€ Ei ole KMKR Ei ole KMKR 31.01.2026 Vestlus (0)
Kasutaja ikoon ID76190
Pakkuja profiil Väike nool paremale
900€ Ikoon kell KM lisandub KM lisandub 31.01.2026 Vestlus (9)

Pakkumise kirjeldus:

Omame kogemust 20 aastat ehitus sektoris .Töö teostus kiire ja puhas.
Antud hind sisaldab kõiki eelnimetatud töid.
.Arvega tasumisel lisanduks KM, võimalik ilma.




Lugupidamisega,

Kasutaja ikoon ID94385
Pakkuja profiil Väike nool paremale
1 600€ Ei ole KMKR Ei ole KMKR 31.01.2026 Vestlus (0)
Kasutaja ikoon ID46969
Pakkuja profiil Väike nool paremale
420€ KM lisandub KM lisandub 31.01.2026 Vestlus (0)

Pakkumise kirjeldus:

Tere
Firma. Sertiitseeritud elektrik.
Töö on 2 päeva. ( kui kõik klappib).
Tänan

Kasutaja ikoon ID88424
Pakkuja profiil Väike nool paremale
400€ Sisaldab KM Sisaldab KM 02.02.2026 Vestlus (0)
Kasutaja ikoon ID96264
Pakkuja profiil Väike nool paremale
1 100€ KM lisandub KM lisandub 02.02.2026 Vestlus (0)

Pakkumise kirjeldus:

teeme nii nagu peal

Küsimused hanke korraldajale

Küsimus: private ID94385   30.01.2026 21:06
Tere freesida vaja siis ?

Teavita reeglite rikkumisest

Korraldaja vastus: 30.01.2026 21:58

Tere,

Jah, kaablid peaksid olema seina sees.

Teavita reeglite rikkumisest

Küsimus: private ID54728   31.01.2026 16:18
Kas lõppviimistlus on selle hanke osa?

Teavita reeglite rikkumisest

Korraldaja vastus:
Hanke korraldaja ei ole küsimusele veel vastanud

Lisa küsimus

Lisa küsimus

Minu pakkumine

Reeglid

Pakkumise kirjelduse väli on mõeldud pakkumise detailsemaks lahti kirjutamiseks. Pikema teksti mugavaks sisestamiseks klikkige kasti paremal ülaservas oleval ikoonil.
Pakkumist tehes on keelatud postitada enda kontaktandmeid (nimi, telefon, aadress jne). Me jälgime ja analüüsime pakkumisi, et vältida pettuseid ja reeglite rikkumisi.
Rikkumise puhul kasutajakonto blokeeritakse.

 

Teisi töid samas valdkonnas

Valdkonnas "Elektritööd" on 5 aktiivset tööd

Vana talu elektrisüsteemi uuendamine (kilp, pistikud, välivalgustus, EV valmidus)

Asukoht: Raplamaa, Suurekivi
Aega jäänud: 1p 22h
Tehtud pakkumisi: 5

Korteri remont

Asukoht: Tartumaa
Aega jäänud: 22h 35 min
Tehtud pakkumisi: 2

Vanemad teated:

Vaata kõiki

Sellel veebilehel kasutatakse küpsiseid. Kasutamist jätkates nõustute küpsiste kasutamisega.

Sulge
 
Minu pakkumine

Reeglid

Pakkumise kirjelduse väli on mõeldud pakkumise detailsemaks lahti kirjutamiseks. Pikema teksti mugavaks sisestamiseks klikkige kasti paremal ülaservas oleval ikoonil.
Pakkumist tehes on keelatud postitada enda kontaktandmeid (nimi, telefon, aadress jne). Me jälgime ja analüüsime pakkumisi, et vältida pettuseid ja reeglite rikkumisi.
Rikkumise puhul kasutajakonto blokeeritakse.