+ Lisa oma töö      

Otsid ehitajat "Lammutustööd" valdkonnast?

Parima pakkumise ja teostaja leidmiseks lisa oma töö.

Hange on lõppenud!

Võitjaks osutus kasutaja ID 76190

Korraldaja hinnang tehtud tööle

 
5.0
31.01.2026
Töökiirus: 12345
Kvaliteet: 12345
Hind: 12345

Töö ja suhtlus väga kiire, asjalik ja korralik -soovitan! - Mariin S.

Lammutustööd korteris

ID 128704

1267 vaatamist

Prindi

  • check Pakkumiste tegemine
    kuni 28.01.2026
  • check Võitja valik kuni
    28.01.2026
  • 3 Töö teostamine
    ja hinnang
Hanke lõpp: K, 28. jaanuar, 2026
Maakond: Harjumaa
Linn: Tallinn
Tööde lõpp: Kokkuleppel
Ehitusmaterjalid: Töö tegija poolt
Soovin pakkumisi: Summa kogu projektile

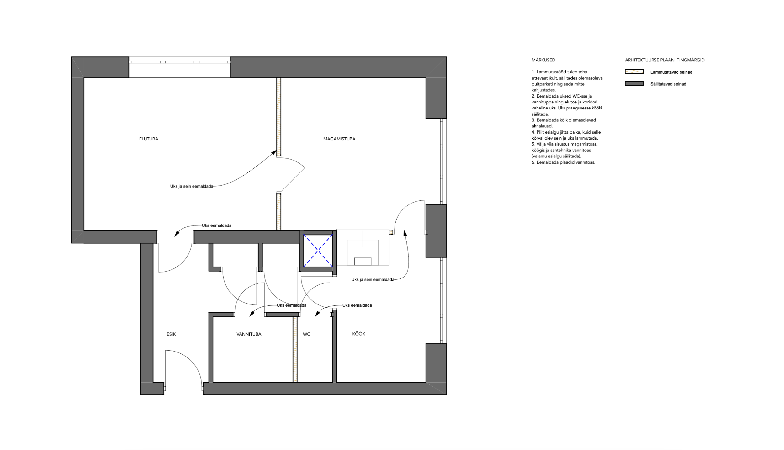
Töö sisu

50m2, teisel korrusel asuvas korteris on tarvis teha järgnevad tööd:
Välja lõhkuda ja utiliseerida sisseehitatud kapp, köögimööbel, santehnika
Eemaldada kahest toast seintelt tapeet
Eemaldada kaks ust
Eemaldada põrandaliistud
Välja lõhkuda vannitoa keraamilised plaadid
Eemaldada esiku/koridori parkett
Lammutada vannitoa ja WC vaheline sein
Lammutada kahe toa vaheline sein

Pakkumine peab sisaldama ka jäätmete utiliseerimist.

Pildid, video ja failid

Hanke korraldaja: eraisik ID96147

Pakkumised

Pakkumisi kokku: 21

Ettevõte Summa Käibemaks Lisatud Vestlus
Kasutaja ikoon ID49809
Pakkuja profiil Väike nool paremale
5 300€ KM lisandub KM lisandub 26.01.2026 Vestlus (0)
Kasutaja ikoon ID95754
Pakkuja profiil Väike nool paremale
3 000€ Sisaldab KM Sisaldab KM 26.01.2026 Vestlus (0)

Pakkumise kirjeldus:

Tere

Esitame hinnapakkumise korteri lammutustöödele vastavalt hanke kirjeldusele ja lisatud plaanile. Pakkumine on kõik hinnas ning sisaldab tööde teostamist, ehitusprahi kokku kogumist, konteineri paigaldust maja kõrvale ning jäätmete äravedu ja utiliseerimist.

Lugupidamisega,
Rain

Kasutaja ikoon ID95354
Pakkuja profiil Väike nool paremale
3 500€ KM lisandub KM lisandub 26.01.2026 Vestlus (0)

Pakkumise kirjeldus:

Pakume korteri lammutustööde teostamist vastavalt hanke kirjeldusele ja lisatud materjalidele. Tööde hulka kuuluvad sisseehitatud kapi, köögimööbli ja santehnika demontaaž, seinte ja põrandakatete eemaldamine, vaheseinte lammutamine ning kõikide tekkinud ehitusjäätmete kogumine, ära vedu ja nõuetekohane utiliseerimine.
Tööd teostatakse kokk ... Rohkem

Kasutaja ikoon ID83059
Pakkuja profiil Väike nool paremale
2 800€ Ikoon kell KM lisandub KM lisandub 26.01.2026 Vestlus (0)

Pakkumise kirjeldus:

Tere
Hind sisaldab:

Sisseehitatud kapi, köögimööbli, santehnika lammutus ja utiliseerimine
Kahest toast seintelt tapeedi eemaldus
Kahe ukse eemaldus
Põrandaliistude eemaldamine
Vannitoa keraamiliste plaatide eemaldus
Esiku/koridori parketi eemaldus
Vannitoa ja WC vahelise seina lammutus
Kahe toa vahelise seina lammutus
Utiliseerimine

Tö ... Rohkem

Kasutaja ikoon ID83845
Pakkuja profiil Väike nool paremale
2 744€ Ikoon kell Ei ole KMKR Ei ole KMKR 26.01.2026 Vestlus (0)

Pakkumise kirjeldus:

Tere
Hind sisaldab
Lammutustööd korteris
Jäätmete väljavedu ja utiliseerimist

Lammutuskogemus 9 a

Klikates minu ID-le näete ka minu tehtud töid ja klientide tagasisidet


Lugupidamisega

Kasutaja ikoon ID86055
Pakkuja profiil Väike nool paremale
3 850€ Ikoon kell Ei ole KMKR Ei ole KMKR 26.01.2026 Vestlus (0)

Pakkumise kirjeldus:

Tere,

Hind: 3850€.

Pakkumises sisaldub:
1. Lammutustööd korteris.
2. .Jäätmete väljavedu, äravedu ja nõuetekohane utiliseerimine.
3. Töömaa koristus.

☆Klikates minu ID-le näete ka minu tehtud töid ja klientide tagasisidet.

Lisaks:
Ettemaksu ma ei soovi.

Tööde algus :Kokkuleppel.
Tööde lõpp: Kokkuleppel.

Kõike parem ... Rohkem

Kasutaja ikoon ID44127
Pakkuja profiil Väike nool paremale
2 200€ KM lisandub KM lisandub 26.01.2026 Vestlus (0)

Pakkumise kirjeldus:

Tere,

Oleme just lammutustöödele spetsialiseerunud ettevõte ja meie hinnapakkumine küsitud töödele on järgmine.

Hind: 2200€.

Hinnapakkumises sisaldub:
1. Säilitatava parketi kinnikatmine koos materjaliga.
2. Kõik küsitud lammutustööd.
3. Jäätmete väljavedu, äravedu ja nõuetekohane utiliseerimine.
4. Töömaa sh trepikoja koris ... Rohkem

Kasutaja ikoon ID85910
Pakkuja profiil Väike nool paremale
1 550€ Ei ole KMKR Ei ole KMKR 26.01.2026 Vestlus (0)

Pakkumise kirjeldus:

Tere, pakkumine vastavalt hanke sisule. Kindel kvaliteet garanteeritud

Kasutaja ikoon ID87168
Pakkuja profiil Väike nool paremale
2 500€ Ei ole KMKR Ei ole KMKR 26.01.2026 Vestlus (0)

Pakkumise kirjeldus:

Tööde kirjeldus:
Sisseehitatud kapi, köögimööbli ja santehnika demontaaž ja utiliseerimine
Tapeedi eemaldamine kahe toa seintelt
Kahe ukse demontaaž
Põrandaliistude eemaldamine
Vannitoa keraamiliste plaatide demontaaž
Esiku/koridori parketi eemaldamine
Vannitoa ja WC vahelise seina lammutamine
Kahe toa vahelise seina lammutamine
Ehitusjäà ... Rohkem

Kasutaja ikoon ID52707
Pakkuja profiil Väike nool paremale
1 900€ KM lisandub KM lisandub 27.01.2026 Vestlus (2)
Kasutaja ikoon ID93971
Pakkuja profiil Väike nool paremale
2 400€ Ei ole KMKR Ei ole KMKR 27.01.2026 Vestlus (0)

Pakkumise kirjeldus:

Tere!
Pakume täielikku lammutusteenust vastavalt töö kirjelduses toodud mahule.

Tööde sisu:
-Köögimööbli, sisseehitatud kappide ja santehnika eemaldus
-Tapeedi eemaldus kahest toast
-2 ukse ja põrandaliistude eemaldus
-Esiku/koridori parketi eemaldus
-Vannitoa keraamiliste plaatide lammutus
-Vannitoa ja WC vahelise seina lammutus
-Kahe t ... Rohkem

Kasutaja ikoon ID93738
Pakkuja profiil Väike nool paremale
2 600€ Sisaldab KM Sisaldab KM 27.01.2026 Vestlus (0)
Kasutaja ikoon ID58844
Pakkuja profiil Väike nool paremale
680€ Ei ole KMKR Ei ole KMKR 27.01.2026 Vestlus (0)
Kasutaja ikoon ID92279
Pakkuja profiil Väike nool paremale
2 124€ KM lisandub KM lisandub 27.01.2026 Vestlus (0)

Pakkumise kirjeldus:

Tere!
Töö,äravedu ja utiliseerimine
Lugupidamisega!

Kasutaja ikoon ID65407
Pakkuja profiil Väike nool paremale
2 950€ KM lisandub KM lisandub 27.01.2026 Vestlus (0)

Pakkumise kirjeldus:

Tere,

Meie pakkumine sisaldab kirjeldatud tööde teostamist + jäätmete utiliseerimist.

Lisaks:
- kalasaba põrandate kattmine tööde ajaks.
- Põhjalik korteri ja trepikoja puhastus tolmust pärast tööde teostamist.

Kui tööde teostamisel peaks tekkima soov lisatöödeks, siis teostame neid hinnaga 25€/h

Kasutaja ikoon ID60423
Pakkuja profiil Väike nool paremale
2 000€ Ei ole KMKR Ei ole KMKR 27.01.2026 Vestlus (0)

Pakkumise kirjeldus:

Tere saame alustada koheselt koristame peale tööd käidavad kohad ära minu tehtud tööd ja klendi rahulolu on nähtav teile hinnas kõikide jäätmete tasu
Kui arve lisandub käive

Kasutaja ikoon ID49626
Pakkuja profiil Väike nool paremale
1 900€ KM lisandub KM lisandub 27.01.2026 Vestlus (0)

Pakkumise kirjeldus:

Pakkumine vastavalt sellele mida sai loetud plaani pealt ( hanke kirjelduses kõike ei olnud ). Töö võtab aega kaks päeva ja teostada saaks alates 2.02. objekti ülevaatuse võiks teostada 30.01. Lugupidamisega

Kasutaja ikoon ID79981
Pakkuja profiil Väike nool paremale
2 500€ KM lisandub KM lisandub 27.01.2026 Vestlus (0)
Kasutaja ikoon ID71384
Pakkuja profiil Väike nool paremale
3 600€ Ei ole KMKR Ei ole KMKR 27.01.2026 Vestlus (0)

Pakkumise kirjeldus:

Kõik hinnas

Kasutaja ikoon ID78760
Pakkuja profiil Väike nool paremale
2 200€ Ei ole KMKR Ei ole KMKR 27.01.2026 Vestlus (0)
Kasutaja ikoon ID76190
Pakkuja profiil Väike nool paremale
1 850€ Ikoon kell KM lisandub KM lisandub 28.01.2026 Vestlus (2)

Pakkumise kirjeldus:

Omame kogemust 20 aastat ehitus sektoris .Töö teostus kiire ja puhas.
Antud hind sisaldab kõiki eelnimetatud töid.
Arvega tasumisel lisanduks KM, võimalik ilma.




Lugupidamisega,

Küsimused hanke korraldajale

Küsimus: private ID86055   26.01.2026 12:59
Tere kas on ka võimalik konteinerit maja ette panna prügi utiliseerimise jauks.

Teavita reeglite rikkumisest

Korraldaja vastus: 26.01.2026 13:05

Tere! Konteiner on võimalik panna maja küljele, välisukse lähedusse ja korteri akna alla.

Teavita reeglite rikkumisest

Küsimus: private ID49626   26.01.2026 18:50
Tere. Mõned küsimused:
* Kus linnajaos objekt asub?
* Seinte materjal, pikkus/laius ?
* Vannitoa plaadid on kahe cm paksuse seguga pandud. Te soovite ju ka seda kihti seintelt?
* Millal soovite töö teostust?
Aitäh.

Teavita reeglite rikkumisest

Korraldaja vastus: 27.01.2026 13:52

Objekt asub Kristiines ning alustada võiks esimesel võimalusel.
Seinte materjali osas pole kindel ja eemaldada võiks vannitoas koos plaatidega ka seinas oleva segu.

Teavita reeglite rikkumisest

Lisa küsimus

Lisa küsimus

Minu pakkumine

€

Reeglid

Pakkumise kirjelduse väli on mõeldud pakkumise detailsemaks lahti kirjutamiseks. Pikema teksti mugavaks sisestamiseks klikkige kasti paremal ülaservas oleval ikoonil.
Pakkumist tehes on keelatud postitada enda kontaktandmeid (nimi, telefon, aadress jne). Me jälgime ja analüüsime pakkumisi, et vältida pettuseid ja reeglite rikkumisi.
Rikkumise puhul kasutajakonto blokeeritakse.

 

Teisi töid samas valdkonnas

Valdkonnas "Lammutustööd" on 2 aktiivset tööd

Lammutustöö enne remonti

Asukoht: Tartumaa
Aega jäänud: 12h 41 min
Tehtud pakkumisi: 29

Hoone lammutustööd

Asukoht: Harjumaa, Suurupi
Aega jäänud: 2p 12h
Tehtud pakkumisi: 12

Vanemad teated:

Vaata kõiki

Sellel veebilehel kasutatakse küpsiseid. Kasutamist jätkates nõustute küpsiste kasutamisega.

Sulge
 
Minu pakkumine
€

Reeglid

Pakkumise kirjelduse väli on mõeldud pakkumise detailsemaks lahti kirjutamiseks. Pikema teksti mugavaks sisestamiseks klikkige kasti paremal ülaservas oleval ikoonil.
Pakkumist tehes on keelatud postitada enda kontaktandmeid (nimi, telefon, aadress jne). Me jälgime ja analüüsime pakkumisi, et vältida pettuseid ja reeglite rikkumisi.
Rikkumise puhul kasutajakonto blokeeritakse.