+ Lisa oma töö      

Otsid ehitajat "Lammutustööd" valdkonnast?

Parima pakkumise ja teostaja leidmiseks lisa oma töö.

Korteri seinte lammutus

ID 128592

1223 vaatamist

Prindi

  • check Pakkumiste tegemine
    kuni 29.01.2026
  • check Võitja valik kuni
    08.02.2026
  • 3 Töö teostamine
    ja hinnang
Hanke lõpp: N, 29. jaanuar, 2026
Maakond: Harjumaa
Linn: Tallinn
Tööde lõpp: Kokkuleppel
Ehitusmaterjalid: Töö tegija poolt
Soovin pakkumisi: Summa kogu projektile

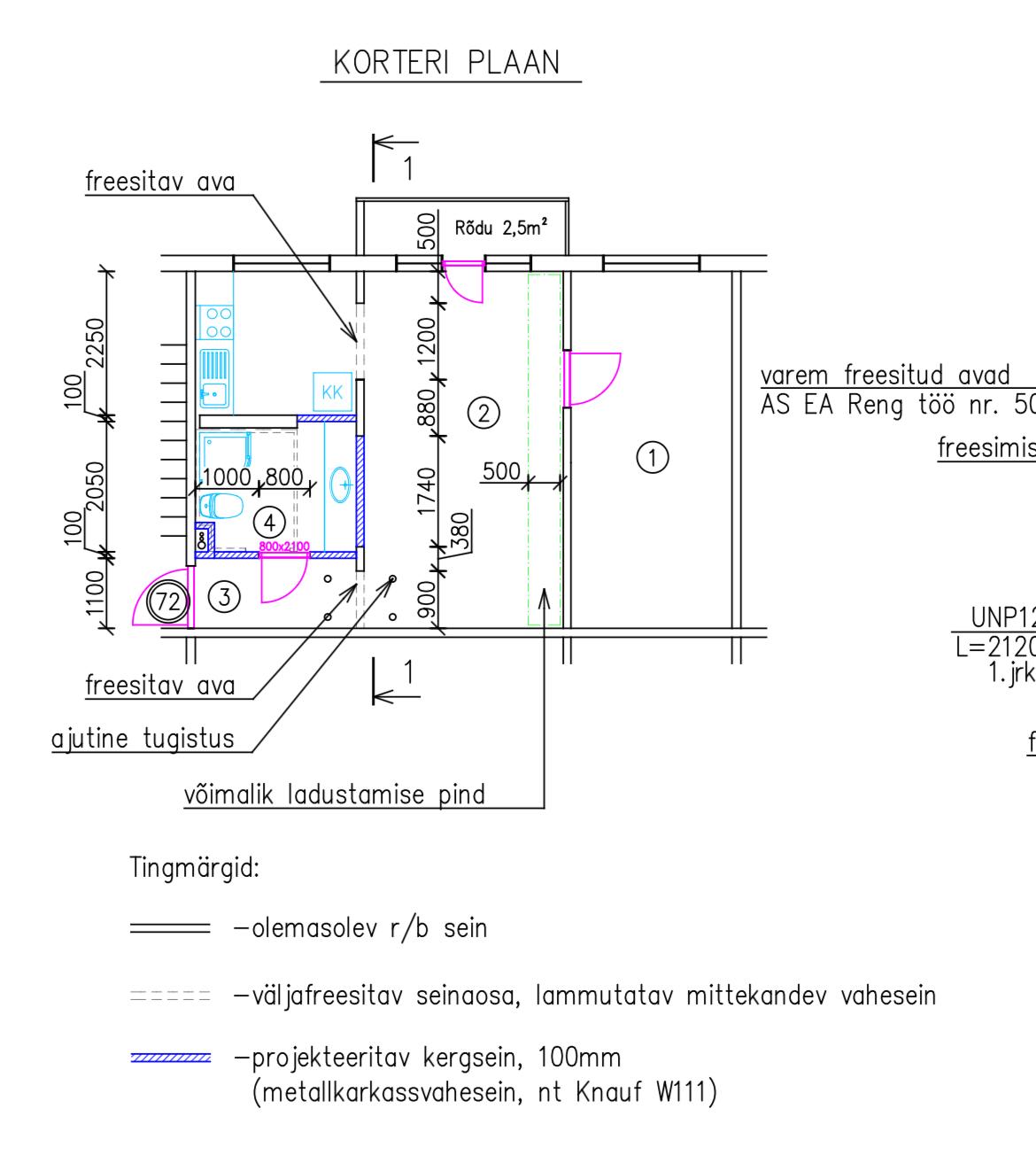
Töö sisu

Vaja on paneelmaja korteris teemantsaega freesida betoonseina avad ja toestamiseks paigaldada vastu naaberseina teraspost.
Enne esiku ja elutoa vahele ava freesimist toestada laed ajutise tugistusega. Teraselemendid puhastada roostest ja kruntida. Avade lõikamisel tuleb kasutada vibratsioonivaba tehnoloogiat (teemantsaagimine). Väljafreesitavad seinaosad freesida mitte suuremate kui ~50x50cm tükkidena. Tükke utiliseerida ei ole vaja.

Pildid, video ja failid

Hanke korraldaja: eraisik ID96082

Pakkumised

Pakkumisi kokku: 6

Ettevõte Summa Käibemaks Lisatud Vestlus
Kasutaja ikoon ID4030
Pakkuja profiil Väike nool paremale
3 000€ KM lisandub KM lisandub 23.01.2026 Vestlus (0)
Kasutaja ikoon ID83059
Pakkuja profiil Väike nool paremale
2 770€ KM lisandub KM lisandub 23.01.2026 Vestlus (0)

Pakkumise kirjeldus:

Tere

Hind sisaldab:

Teras tala toestust naaber seina
Ajutised tugipostid
Avade freesimist(teemantsaag)
Betoon tükkide(50x50) ladustamist näidatud kohta
Utiliseerimine tellija korraldada

Töö kiire ja korralik
Lugupidamisega

Kasutaja ikoon ID83845
Pakkuja profiil Väike nool paremale
2 699€ Ei ole KMKR Ei ole KMKR 23.01.2026 Vestlus (0)

Pakkumise kirjeldus:

Tere

Hind sisaldab
Avade sisse rajamist teemantsaega
Toestamist vastavalt tellija soovil

Utiliseerib tellija

Tööde kestvus 1 päev
Saame alustada 26.01


Lugupidamisega

Kasutaja ikoon ID73564
Pakkuja profiil Väike nool paremale
1 000€ Ei ole KMKR Ei ole KMKR 23.01.2026 Vestlus (0)
Kasutaja ikoon ID44127
Pakkuja profiil Väike nool paremale
3 000€ KM lisandub KM lisandub 24.01.2026 Vestlus (0)
Kasutaja ikoon ID80971
Pakkuja profiil Väike nool paremale
1 400€ Sisaldab KM Sisaldab KM 29.01.2026 Vestlus (0)

Pakkumise kirjeldus:

Tervist
Hind sisaldab avade lõikust toestust ja värvimist.

Küsimused hanke korraldajale

Küsimus: private ID83059   22.01.2026 20:39
Tere

Mitmes korrus ja kas utiliseerida ka vaja?

Teavita reeglite rikkumisest

Korraldaja vastus: 22.01.2026 22:21

Tegu on 3. korrusega. Utiliseerida ei ole vaja.

Teavita reeglite rikkumisest

Lisa küsimus

Lisa küsimus

Minu pakkumine

Reeglid

Pakkumise kirjelduse väli on mõeldud pakkumise detailsemaks lahti kirjutamiseks. Pikema teksti mugavaks sisestamiseks klikkige kasti paremal ülaservas oleval ikoonil.
Pakkumist tehes on keelatud postitada enda kontaktandmeid (nimi, telefon, aadress jne). Me jälgime ja analüüsime pakkumisi, et vältida pettuseid ja reeglite rikkumisi.
Rikkumise puhul kasutajakonto blokeeritakse.

 

Teisi töid samas valdkonnas

Valdkonnas "Lammutustööd" on 10 aktiivset tööd

Saunamaja lammutus

Asukoht: Läänemaa, Rälby
Aega jäänud: 5p 4h
Tehtud pakkumisi: 14

Vanemad teated:

Vaata kõiki

Sellel veebilehel kasutatakse küpsiseid. Kasutamist jätkates nõustute küpsiste kasutamisega.

Sulge
 
Minu pakkumine

Reeglid

Pakkumise kirjelduse väli on mõeldud pakkumise detailsemaks lahti kirjutamiseks. Pikema teksti mugavaks sisestamiseks klikkige kasti paremal ülaservas oleval ikoonil.
Pakkumist tehes on keelatud postitada enda kontaktandmeid (nimi, telefon, aadress jne). Me jälgime ja analüüsime pakkumisi, et vältida pettuseid ja reeglite rikkumisi.
Rikkumise puhul kasutajakonto blokeeritakse.