+ Lisa oma töö      

Otsid ehitajat "Siseviimistlustööd" valdkonnast?

Parima pakkumise ja teostaja leidmiseks lisa oma töö.

Hange on lõppenud!

Võitjaks osutus kasutaja ID 94771

Korraldaja hinnang tehtud tööle

2.0
17.04.2026
Töökiirus: 12345
Kvaliteet: 12345
Hind: 12345

Esialgne prognoos tööde teostamiseks oli 1 nädal. Peale mõnepäevast tööd küsis teist ettemaksu. Heas usus tasusin juurde, kuid peale seda ei ilmunud tegija objektile 2 nädalat. Ülepäeviti talle helistades lubas iga kord kohe tulla ja "homme" üle anda. Kui lepingu algusest oli möödas 4 nädalat, kadus usk, et töö saab üldse millalgi tehtud. Usalduse kaotuse põhjendusega ütlesin lepingu üles ja küsisin tagasi ettemaksust teostamata tööde osa. Oli sellega nõus, kuid praeguseks on ka selle tagasisaamise saaga kestnud juba üle kuu. Kvaliteet: selleks ajaks kui sain palgatud teise firma, olid mitmed vuugivahed juba pragudega. Teine firma võttis lahti ja parandas ära niipalju pragusid kui selleks ajaks oli näha, kuid ei saanud anda garantiid hiljem tekkivate pragude kohta. - Ranno R.

Seinte ja lae pahteldamine

ID 128365

1462 vaatamist

Prindi

  • check Pakkumiste tegemine
    kuni 18.01.2026
  • check Võitja valik kuni
    18.01.2026
  • 3 Töö teostamine
    ja hinnang
Hanke lõpp: P, 18. jaanuar, 2026
Maakond: Harjumaa
Muu asula: Kersalu
Tööde lõpp: Kokkuleppel
Ehitusmaterjalid: Töö tegija poolt
Soovin pakkumisi: Summa kogu projektile

Töö sisu

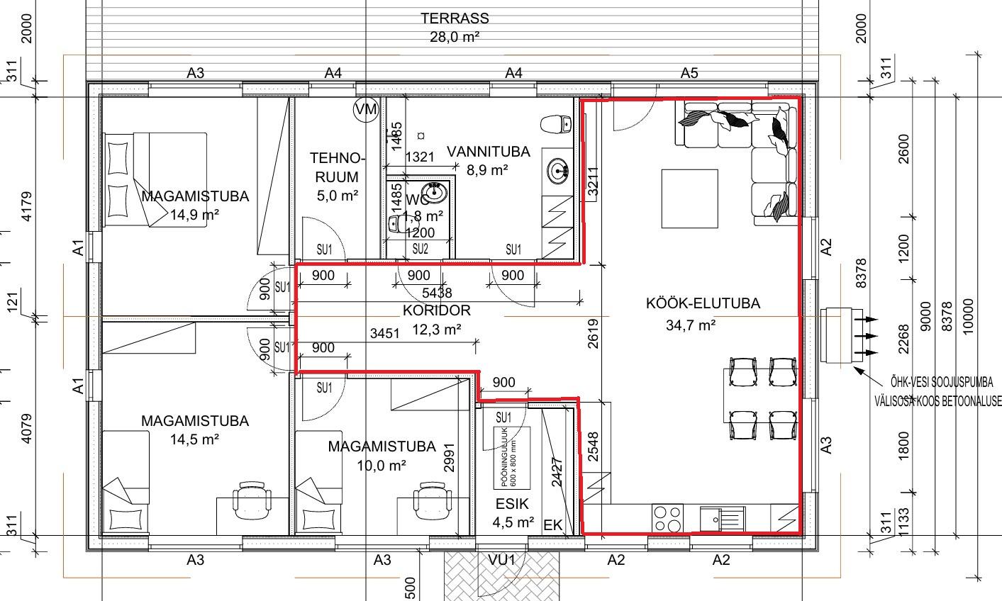
Lae ja seinte pahteldamine eramajas. Ruumi suurus on 47 ruutmeetrit, lae kõrgus on u 2,55 m. Pahteldamist vajav ruum on plaanil märgitud punasega. Seintel ja laes on kipsplaat. Kruvid on pahteldamata ja ühendused teipimata. Pahteldada on vaja "värvimisvalmis" seisu.

Pildid, video ja failid

Hanke korraldaja: eraisik ID95976

Pakkumised

Pakkumisi kokku: 5

Ettevõte Summa Käibemaks Lisatud Vestlus
Kasutaja ikoon ID72269
Pakkuja profiil Väike nool paremale
650€ Ei ole KMKR Ei ole KMKR 17.01.2026 Vestlus (0)

Pakkumise kirjeldus:

Tere,

Esitan pakkumise hankes kirjeldatud töödele.

Parimat,

Olev

Kasutaja ikoon ID93253
Pakkuja profiil Väike nool paremale
1 300€ Sisaldab KM Sisaldab KM 17.01.2026 Vestlus (4)

Pakkumise kirjeldus:

Tere!

Pinda on kokku ca 141m2
Pakkumine sisaldab
1. Vuukide täitmine
2. Vuugiteibi paigaldus
3. Kahekordne pahteldamine
4. Lihvimine värvimisvalmis tasemele

+ lisandub materjali kulu.
Alustada saame koheselt. Valmis saame paari nädalaga.

Küsimuste korral olen kättesaadav.

Pariamte soovidega,

Kasutaja ikoon ID72794
Pakkuja profiil Väike nool paremale
2 670€ KM lisandub KM lisandub 17.01.2026 Vestlus (0)

Pakkumise kirjeldus:

Tere

Pakkumine tööle vastavalt kirjeldatule.

Hind sisaldab kõike vajalikku tööde teostamiseks. Tekkinud prügi utiliseerimine sh.

Tööde sisu:
47m2 köök-elutoa ja esiku eeltööd värvimiseks
- nurkade ja vuugilindi paigaldus
- pahteldamine
- lihvimine
- kruntvärviga värvimine (üks kiht)
- akrüülimised


Arve võimalus, lisandu ... Rohkem

Kasutaja ikoon ID72055
Pakkuja profiil Väike nool paremale
3 180€ KM lisandub KM lisandub 17.01.2026 Vestlus (0)

Pakkumise kirjeldus:

Tere!
Pakkumine vastavalt hanke kirjeldusele. Materjalid hinnas, arvega lisandub km. Seinte ja lae pahteldamine, lihvimine, kruntimine.
Lugupidamisega
A.

Kasutaja ikoon ID94771
Pakkuja profiil Väike nool paremale
1 450€ Ei ole KMKR Ei ole KMKR 17.01.2026 Vestlus (2)

Pakkumise kirjeldus:

Tere

Pakkumkine tehtud

-vuukide ja kruvipeade täitmist
- lauspahteldus 2x
-lihvimine
-kruntvärvimine ning akrüülimine

Hind tehtud koos materjaliga.

Ette tänades
K.

Küsimused hanke korraldajale

Küsimus: private ID72269   16.01.2026 23:28
Tere,

Palun täpsustada millal soovite tööde teostust?

Parimat,

Olev

Teavita reeglite rikkumisest

Korraldaja vastus: 17.01.2026 00:09

Tervist! Alustada saaks kohe. Tehtud võiks saada veebruari lõpuks, kuid kindlat ajaraami pole.
Lugupidamisega,
Ranno

Teavita reeglite rikkumisest

Küsimus: private ID72269   17.01.2026 00:17
Tere,
Tänan täiendava info eest.
Palum veel täpsustada kas soovite ainult pahteldus ning lihvimistööd?

Parimat,

Olev

Teavita reeglite rikkumisest

Korraldaja vastus: 17.01.2026 00:32

Soovin pahteldamist ja lihvimist. Kuna seintes ja laes on paljas kipsplaat, siis pahteldamise jaoks tarvis tõenäoliselt eelnevalt kruntida. Peale viimast lihvimist soovin ka värvimiseelset kruntimist, kuid värvimist ei soovi.
Heade soovidega,
Ranno

Teavita reeglite rikkumisest

Küsimus: private ID72269   17.01.2026 00:45
Tänan täiendava info eest.

Parimat,

Olev

Teavita reeglite rikkumisest

Korraldaja vastus:
Hanke korraldaja ei ole küsimusele veel vastanud

Lisa küsimus

Lisa küsimus

Minu pakkumine

Reeglid

Pakkumise kirjelduse väli on mõeldud pakkumise detailsemaks lahti kirjutamiseks. Pikema teksti mugavaks sisestamiseks klikkige kasti paremal ülaservas oleval ikoonil.
Pakkumist tehes on keelatud postitada enda kontaktandmeid (nimi, telefon, aadress jne). Me jälgime ja analüüsime pakkumisi, et vältida pettuseid ja reeglite rikkumisi.
Rikkumise puhul kasutajakonto blokeeritakse.

 

Teisi töid samas valdkonnas

Valdkonnas "Siseviimistlustööd" on 24 aktiivset tööd

Korteri remont

Asukoht: Harjumaa, Muraste
Aega jäänud: 2p 19h
Tehtud pakkumisi: 15

no-img Pilt puudub

Laminaatparketi paigaldus

Asukoht: Harjumaa, Tallinn
Aega jäänud: 4p 19h
Tehtud pakkumisi: 7

Vanemad teated:

Vaata kõiki

Sellel veebilehel kasutatakse küpsiseid. Kasutamist jätkates nõustute küpsiste kasutamisega.

Sulge
 
Minu pakkumine

Reeglid

Pakkumise kirjelduse väli on mõeldud pakkumise detailsemaks lahti kirjutamiseks. Pikema teksti mugavaks sisestamiseks klikkige kasti paremal ülaservas oleval ikoonil.
Pakkumist tehes on keelatud postitada enda kontaktandmeid (nimi, telefon, aadress jne). Me jälgime ja analüüsime pakkumisi, et vältida pettuseid ja reeglite rikkumisi.
Rikkumise puhul kasutajakonto blokeeritakse.