+ Lisa oma töö      

Otsid ehitajat "Puusepatööd" valdkonnast?

Parima pakkumise ja teostaja leidmiseks lisa oma töö.

Hange on lõppenud!

Võitjaks osutus kasutaja ID 49418

Puidutöö-siseuksed-Lukukorpused

ID 128250

1415 vaatamist

Prindi

  • check Pakkumiste tegemine
    kuni 28.01.2026
  • check Võitja valik kuni
    07.02.2026
  • 3 Töö teostamine
    ja hinnang
Hanke lõpp: K, 28. jaanuar, 2026
Maakond: Harjumaa
Linn: Tallinn
Tööde lõpp: Kokkuleppel
Ehitusmaterjalid: Töö tegija poolt
Soovin pakkumisi: Summa kogu projektile

Töö sisu

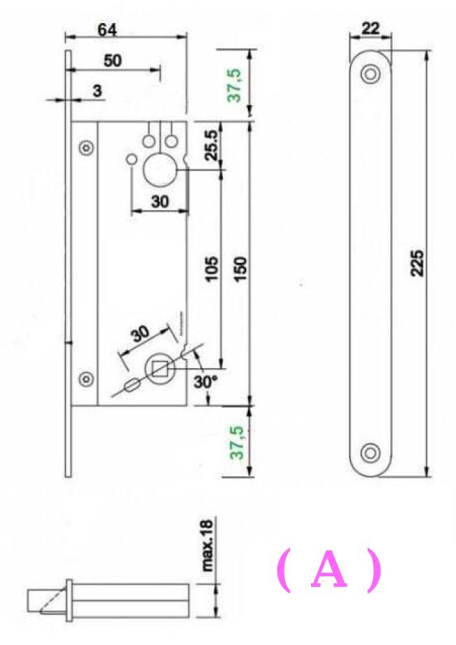
Tähed piltidel ja töö kirjeldus:

A)
4 tk massiivpuitukse süvise frees pildil olevale lukukorpusele,

---------------
Materjal tellija poolt:
---------------
4 massiivpuitust:
lukukorpuse paigaldus
vasturaua paigaldus puitraami
lingikomplekti paigaldus
valgete uste freesitud ala katmine valge värviga (vajadusel).

B)
4 masiivpuitukse helitihendamine:
Raamile 3 serva, raamiga
Ukse alumisse ossa vahtprofiili kinnitus

C)
1 tk terasuksele lingikompl paigaldus
Lukukorpus Assa 565 (täpsustub)

D)
1 pindluku eemaldus puitukselt.

---------------
Materjal Teie poolt:
---------------

E)
1 siseukse kinni ehitamine, helikindlaks:
Ukselink-lukk eemaldada.

Kasutada materjali OSB-3 (650 kg / m3)

Väljakäiva ukse poolt:

22 mm OSB-3 eritugev
20 mm karkass (?) kivivill
(puituks pildil)
100-150 mm karkass (?) kivivill
22 mm OSB-3


F)
Ukse klaaspaneelid tervena eemaldada.
Ukse avapaneelid täita:
12-22 mm OSB-3 eritugev
40 mm kivivill
12-22 mm OSB-3 eritugev

G)
OSB viimistlust võib pakkuda eraldi.

Pildid, video ja failid

Hanke korraldaja: ettevõte ID92799

Pakkumised

Pakkumisi kokku: 3

Ettevõte Summa Käibemaks Lisatud Vestlus
Kasutaja ikoon ID49418
Pakkuja profiil Väike nool paremale
150€ KM lisandub KM lisandub 14.01.2026 Vestlus (0)

Pakkumise kirjeldus:

See hind on ühe tööpäeva eest.

Kasutaja ikoon ID74610
Pakkuja profiil Väike nool paremale
1 600€ Ei ole KMKR Ei ole KMKR 15.01.2026 Vestlus (3)

Pakkumise kirjeldus:

Pakkumine kirjeldatud töödele ning materjalidele. Punktides A, B, C ja D kirjeldatud materjalid tellija poolt olemas tööde alustamise hetkel. Värviparandused vajalikes kohtades valge värviga. Arvestada, et olemasoleva kolletunud õlivärviga jääb mõningane toonivahe.

Kasutaja ikoon ID88424
Pakkuja profiil Väike nool paremale
1 500€ Sisaldab KM Sisaldab KM 28.01.2026 Vestlus (0)

Pakkumise kirjeldus:

Pikk kogemus uste, lukkude ja nende paigaldusega.

Küsimused hanke korraldajale

Küsimus: private ID32909   14.01.2026 11:06
Tere! Kas ukselehed on võimalik tööde teostamiseks kaasa võtta või peab kohapeal järjest tegema?

Teavita reeglite rikkumisest

Korraldaja vastus: 14.01.2026 14:11

Tere, kõik ukselehed, ka terasuks on võimalik kaasa võtta.

Teavita reeglite rikkumisest

Lisa küsimus

Lisa küsimus

Minu pakkumine

Reeglid

Pakkumise kirjelduse väli on mõeldud pakkumise detailsemaks lahti kirjutamiseks. Pikema teksti mugavaks sisestamiseks klikkige kasti paremal ülaservas oleval ikoonil.
Pakkumist tehes on keelatud postitada enda kontaktandmeid (nimi, telefon, aadress jne). Me jälgime ja analüüsime pakkumisi, et vältida pettuseid ja reeglite rikkumisi.
Rikkumise puhul kasutajakonto blokeeritakse.

 

Vanemad teated:

Vaata kõiki

Sellel veebilehel kasutatakse küpsiseid. Kasutamist jätkates nõustute küpsiste kasutamisega.

Sulge
 
Minu pakkumine

Reeglid

Pakkumise kirjelduse väli on mõeldud pakkumise detailsemaks lahti kirjutamiseks. Pikema teksti mugavaks sisestamiseks klikkige kasti paremal ülaservas oleval ikoonil.
Pakkumist tehes on keelatud postitada enda kontaktandmeid (nimi, telefon, aadress jne). Me jälgime ja analüüsime pakkumisi, et vältida pettuseid ja reeglite rikkumisi.
Rikkumise puhul kasutajakonto blokeeritakse.