+ Lisa oma töö      

Otsid ehitajat "Eramu ehitus" valdkonnast?

Parima pakkumise ja teostaja leidmiseks lisa oma töö.

Eramaja ehitamine

ID 127749

1427 vaatamist

Prindi

  • check Pakkumiste tegemine
    kuni 01.01.2026
  • check Võitja valik kuni
    11.01.2026
  • 3 Töö teostamine
    ja hinnang
Hanke lõpp: N, 1. jaanuar, 2026
Maakond: Põlvamaa
Linn: Põlva
Tööde lõpp: Kokkuleppel
Ehitusmaterjalid: Töö tegija poolt
Soovin pakkumisi: Summa kogu projektile

Töö sisu

Tere!
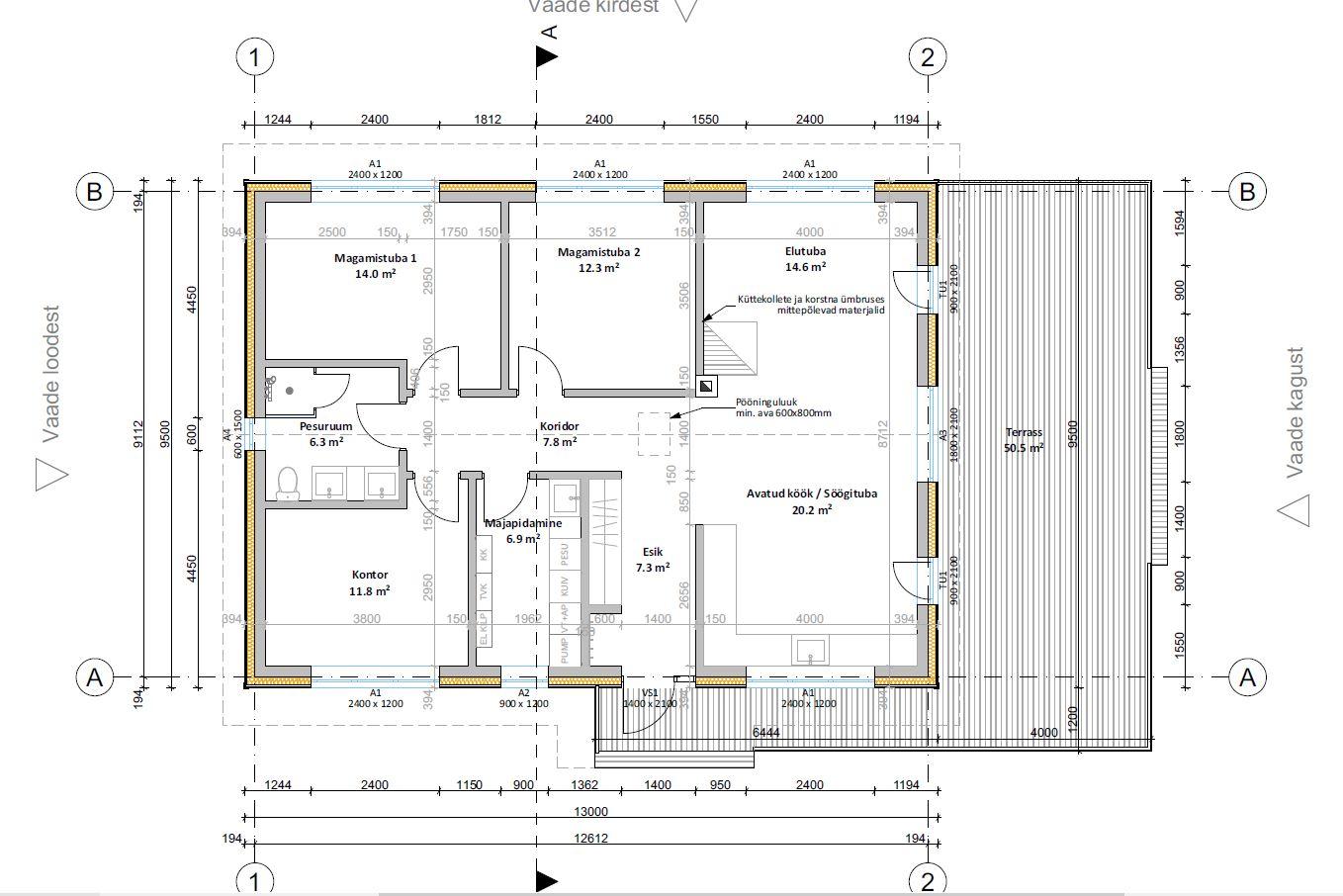
Otsin usaldusväärset ehitajat (ehitusettevõtet), kes ehitab Fibo-plokist ühekordse elamu netosuurusega 101 ruutmeetrit alates 2026 aasta kevadest "võtmed kätte" etapini valmis. Olemas on eelprojekt, mille saadan Sulle e-kirjaga, et saaksid teha reaalse hinnapakkumise ehitusetappide kaupa (pank nõuab).
Ilmselgelt vastan kõikidele Sinu poolt tekkinud küsimustele :)
Mirell

Pildid, video ja failid

Hanke korraldaja: eraisik ID95653

Pakkumised

Pakkumisi kokku: 3

Ettevõte Summa Käibemaks Lisatud Vestlus
Kasutaja ikoon ID95583
Pakkuja profiil Väike nool paremale
197 000€ KM lisandub KM lisandub 31.12.2025 Vestlus (0)
Kasutaja ikoon ID49870
Pakkuja profiil Väike nool paremale
150 000€ KM lisandub KM lisandub 01.01.2026 Vestlus (4)

Pakkumise kirjeldus:

Pakkumine umbkaudne hetkel. Täpsema pakkumise saamiseks sooviks eel projekti ja maastikust pilti või kohal käia. Ennem võitjaks valimist palun võtta ühendust.
Tervitades,
V.

Kasutaja ikoon ID70017
Pakkuja profiil Väike nool paremale
200 000€ KM lisandub KM lisandub 01.01.2026 Vestlus (0)

Pakkumise kirjeldus:

Täpne pakkumine peale projekti läbivaatust

Küsimused hanke korraldajale

Küsimus: private ID87116   30.12.2025 07:33
Palun detailsemat infot

Teavita reeglite rikkumisest

Korraldaja vastus: 30.12.2025 09:50

Tere!
Põlvamaal, Kanepi vallas, Hino külas asub krunt (28501:003:0582), millel on elektrikilp küll olemas ja vahetult enne ehitama asumist tuleb ehitusaegne kilp paigaldada. Vett paraku krundil veel pole. Paigaldan septiku ja maasoojuse, need tööd mõtlesin teistelt ettevõtetelt tellida. Lisakütteallikateks tuleb puuküttel kamin/ahi elutuppa, mille ehituse mõtlesin tuttavalt pottsepalt tellida.
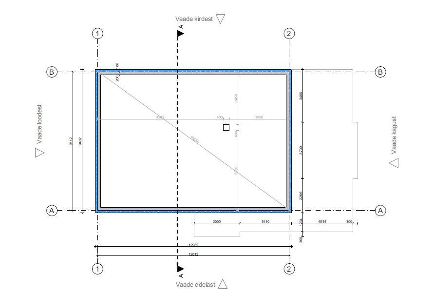
Maja vundament tehakse lintvundament raudbetoonist taldmikule kergplokkidest (200 mm).
Soklile paigaldatakse viimistluseks tsementkiudplaat (10 mm, EPS 150 mm).
Põrandaks valatakse soojustusele raudbetoonist plaat põrandaküttetorustikuga (100 mm, vahtpolüstüreen 2*150 mm). Välisseinad tehakse samuti kergplokkidest (kergplokk 200 mm).
Fassaadile tuleb puidust voodrilaud (22 mm, distantsliist 22 mm, PIR plaat tuuletõkkeks 150 mm).
Katus ehitatakse katusefermidele ja kaetakse plekiga (katuseferm 500 mm, roov 22 mm, kübarprofiil 16 mm, kips 13 mm). Katuslagi roov 32 mm ja distantsliist 32 mm. Pööninglagi ehitatakse katusefermidele ja soojustatakse puistevillaga.
Siseseinad tehakse kõik kergplokkidest (150 mm).
Aknad PVC 3x pakett.
Maja kagupoolsele küljele ehitatakse puidust terrass. Terrassi alustalastik rajatakse mineraalsele aluspinnasele paigutatud kergplokkidele ning kaetakse puidust immutatud terrassilauaga.
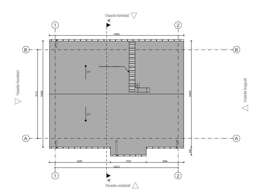
Katusetühimikele, mis on kõrgemad kui 600 mm tuleb juurdepääsuks paigaldada luugid minimaalse avaga 600x800 mm (korstna juurde pääsemiseks, korstna vaatlemiseks ja pööningule pääsemiseks).
Hoonet hakatakse kütma maasoojuspumbaga seega eraldi tuletõkkesektsioone ei tehta. Tuletõkkekonstruktsioonidega tuleks arvestada korstna ja tulekolde läheduses ning korstna läbiviikudes, kus ei tohi olla läheduses põlevaid materjale. Katusele paigaldada katuseredel ja seisuplatvorm korstna teenindamiseks.
Hoonet hakatakse kütma maasoojuspumbaga integreeritud tarbeveeboileriga. Soojust hakatakse jaotama vesipõrandaküttega. Sooja tarbeveetorustik tehakse energiatõhususe seisukohalt selliselt, et ei teki vee ringlust. Tarbeveekollektor paigaldatakse kuni 4 m kaugusele maasoojuspumbast ning kollektorist läheb igasse tarbijasse eraldi toru.
Nõrkvoolupaigaldisi antud projektiga plaanis ei ole. Taastuvenergia lahendusi antud projektiga plaanis ei ole. Gaasipaigaldisi antud projektiga plaanis ei ole. Vett hakatakse saama rajatavast salvkaevust. Kanalisatsiooniks planeeritakse rajada uus puhasti koos imbväljakuga. Sadeveekanalisatsiooni ega vundamendi drenaaži ei ole planeeritud.
Hoonesse planeeritakse uus soojustagastusega sundväljatõmbega ventilatsioonisüsteem. Systemair Save VSR 300.
Hoonele paigaldatakse õhk-õhk soojuspump, millel on ainult jahutamise võimekus.
Ehitis vastab miinimumnõuetele energiaklassiga A ning energiatõhususarv on 133 kWh/ m2 a.
See on info seletuskirjast. Lisasin pilte veel juurde vundamendist, katusest, majalõikest ja akende suurustest.
Minu mõte oli võtmed kätte lahendus, pank nõuab ka köögimööblit hinnaarvutustesse.
Kas on veel midagi, mis on vajalik?

Teavita reeglite rikkumisest

Küsimus: private ID82216   30.12.2025 09:04
Tere
Millal soovite töödega alustada? e-maili siin hange.ee keskkonnas avaldada ei või, seega projekti mailile pole võimalik saata. Kus täpsemalt Põlva maal asub, kas vesi, elekter on olemas? Kas soovite septikut paigaldada või liituda trassiga? Milline vundament? Mingi umbkaudse hinna saaks pakkuda nende andmete järgi aga oleks oluliselt rohkem infot vaja.

Parimat

Teavita reeglite rikkumisest

Korraldaja vastus: 30.12.2025 09:45

Tere!
Soovin alustada kevadel 2026 esimesel võimalusel (nii, kui ilm võimaldab).
Põlvamaal, Kanepi vallas, Hino külas asub krunt, millel on elektrikilp küll olemas ja vahetult enne ehitama asumist tuleb ehitusaegne kilp paigaldada. Vett paraku krundil veel pole. Paigaldan septiku ja maasoojuse, need tööd mõtlesin teistelt ettevõtetelt tellida. Lisakütteallikateks tuleb puuküttel kamin/ahi elutuppa, mille ehituse mõtlesin tuttavalt pottsepalt tellida.
Maja vundament tehakse lintvundament raudbetoonist taldmikule kergplokkidest (200 mm).
Soklile paigaldatakse viimistluseks tsementkiudplaat (10 mm, EPS 150 mm).
Põrandaks valatakse soojustusele raudbetoonist plaat põrandaküttetorustikuga (100 mm, vahtpolüstüreen 2*150 mm). Välisseinad tehakse samuti kergplokkidest (kergplokk 200 mm).
Fassaadile tuleb puidust voodrilaud (22 mm, distantsliist 22 mm, PIR plaat tuuletõkkeks 150 mm).
Katus ehitatakse katusefermidele ja kaetakse plekiga (katuseferm 500 mm, roov 22 mm, kübarprofiil 16 mm, kips 13 mm). Katuslagi roov 32 mm ja distantsliist 32 mm. Pööninglagi ehitatakse katusefermidele ja soojustatakse puistevillaga.
Siseseinad tehakse kõik kergplokkidest (150 mm).
Aknad PVC 3x pakett.
Maja kagupoolsele küljele ehitatakse puidust terrass. Terrassi alustalastik rajatakse mineraalsele aluspinnasele paigutatud kergplokkidele ning kaetakse puidust immutatud terrassilauaga.
Katusetühimikele, mis on kõrgemad kui 600 mm tuleb juurdepääsuks paigaldada luugid minimaalse avaga 600x800 mm (korstna juurde pääsemiseks, korstna vaatlemiseks ja pööningule pääsemiseks).
Hoonet hakatakse kütma maasoojuspumbaga seega eraldi tuletõkkesektsioone ei tehta. Tuletõkkekonstruktsioonidega tuleks arvestada korstna ja tulekolde läheduses ning korstna läbiviikudes, kus ei tohi olla läheduses põlevaid materjale. Katusele paigaldada katuseredel ja seisuplatvorm korstna teenindamiseks.
Hoonet hakatakse kütma maasoojuspumbaga integreeritud tarbeveeboileriga. Soojust hakatakse jaotama vesipõrandaküttega. Sooja tarbeveetorustik tehakse energiatõhususe seisukohalt selliselt, et ei teki vee ringlust. Tarbeveekollektor paigaldatakse kuni 4 m kaugusele maasoojuspumbast ning kollektorist läheb igasse tarbijasse eraldi toru.
Nõrkvoolupaigaldisi antud projektiga plaanis ei ole. Taastuvenergia lahendusi antud projektiga plaanis ei ole. Gaasipaigaldisi antud projektiga plaanis ei ole. Vett hakatakse saama rajatavast salvkaevust. Kanalisatsiooniks planeeritakse rajada uus puhasti koos imbväljakuga. Sadeveekanalisatsiooni ega vundamendi drenaaži ei ole planeeritud.
Hoonesse planeeritakse uus soojustagastusega sundväljatõmbega ventilatsioonisüsteem. Systemair Save VSR 300.
Hoonele paigaldatakse õhk-õhk soojuspump, millel on ainult jahutamise võimekus.
ehitis vastab miinimumnõuetele energiaklassiga A ning energiatõhususarv on 133 kWh/ m2 a.
See on info seletuskirjast. Lisasin pilte veel juurde vundamendist, katusest, majalõikest ja akende suurustest.
Minu mõte oli võtmed kätte lahendus, pank nõuab ka köögimööblit hinnaarvutustesse. Kas on veel midagi, mis on vajalik?

Teavita reeglite rikkumisest

Lisa küsimus

Lisa küsimus

Minu pakkumine

Reeglid

Pakkumise kirjelduse väli on mõeldud pakkumise detailsemaks lahti kirjutamiseks. Pikema teksti mugavaks sisestamiseks klikkige kasti paremal ülaservas oleval ikoonil.
Pakkumist tehes on keelatud postitada enda kontaktandmeid (nimi, telefon, aadress jne). Me jälgime ja analüüsime pakkumisi, et vältida pettuseid ja reeglite rikkumisi.
Rikkumise puhul kasutajakonto blokeeritakse.

 

Vanemad teated:

Vaata kõiki

Sellel veebilehel kasutatakse küpsiseid. Kasutamist jätkates nõustute küpsiste kasutamisega.

Sulge
 
Minu pakkumine

Reeglid

Pakkumise kirjelduse väli on mõeldud pakkumise detailsemaks lahti kirjutamiseks. Pikema teksti mugavaks sisestamiseks klikkige kasti paremal ülaservas oleval ikoonil.
Pakkumist tehes on keelatud postitada enda kontaktandmeid (nimi, telefon, aadress jne). Me jälgime ja analüüsime pakkumisi, et vältida pettuseid ja reeglite rikkumisi.
Rikkumise puhul kasutajakonto blokeeritakse.