+ Lisa oma töö      

Otsid ehitajat "Üldehitus" valdkonnast?

Parima pakkumise ja teostaja leidmiseks lisa oma töö.

Vundamendi ehitus

ID 127695

2398 vaatamist

Prindi

  • check Pakkumiste tegemine
    kuni 25.01.2026
  • check Võitja valik kuni
    04.02.2026
  • 3 Töö teostamine
    ja hinnang
Hanke lõpp: P, 25. jaanuar, 2026
Maakond: Jõgevamaa
Linn: Jõgeva
Tööde lõpp: Kokkuleppel
Ehitusmaterjalid: Töö tegija poolt
Soovin pakkumisi: Summa kogu projektile

Töö sisu

Soovin hinnapakkumist üksikelamu lintvundamendi ehitusele vastavalt lisatud projektjoonistele.
Töö peab sisaldama:
lintvundamendi täpset maha märkimist (joonist) vastavalt asendiplaanile
kaevetöid ja vundamendi rajamist vastavalt projektile
vee ja kanalisatsiooni läbiviikude täpset märkimist ja teostamist vundamendis
läbiviigud peavad olema tehtud enne betoneerimist ja vastavalt projektile
vajadusel läbiviikude tegemine varudega (nt kaitsetoru)
Oluline:
Läbiviikude asukohad, kõrgused ja läbimõõdud peavad vastama projektjoonistele
Töö tegija vastutab, et läbiviigud oleksid õiges kohas ja kasutuskõlblikud edasiseks VK-tööks
Hilisem puurimine või lõhkumine ei ole soovitav lahendus
Objekt:
Üksikelamu (lintvundament)
Seinad rajatakse hiljem kivist
Asukoht:(täpne asukoht asendiplaanil)
Lisatud:
asendiplaan
elamu lintvundamendi plaan
abihoone vundamendi plaan (kui hinnastatakse ka abihoone) (hinnad teha vundamentidele eraldi)
Soovin pakkumist:
kogusummana
materjalid ja töö töö teostaja poolt
tööde teostamise aeg kokkuleppel

Pildid, video ja failid

Hanke korraldaja: eraisik ID51151

Pakkumised

Pakkumisi kokku: 2

Ettevõte Summa Käibemaks Lisatud Vestlus
Kasutaja ikoon ID67766
Pakkuja profiil Väike nool paremale
12 500€ Ei ole KMKR Ei ole KMKR 21.01.2026 Vestlus (0)

Pakkumise kirjeldus:

Hinnapakkumine sisaldab vundamendi maha märkimist, kopatööd pinnase väljakaevamist ja killustiku pinda ja tihendamist , lintvundamendi töö raha ,vormesti paigaldust koos valuga betoon 30/37 ,lintvundamendi seinte ladumist fibo 5 siis hüdroisolatsiooni paigaldus kaks korda ning vundamendi soojustus eps 150mm.Hinnapakkumine ei sisalda ehitusmaterjalide ... Rohkem

Kasutaja ikoon ID83008
Pakkuja profiil Väike nool paremale
25 630€ KM lisandub KM lisandub 21.01.2026 Vestlus (0)

Pakkumise kirjeldus:

Ettevalmistustööd (vundamendi telgede märkimine,
geodeetilised mõõdistustööd). 500.
Taimkatte kihi eemaldamine, vundamendi kaeviku kaevamine,
pinnase ladustamine objektil. 2575.
Killustikaluse rajamine (8-16 mm, 16-32 mm). 2125.
Raudbetoonist vundamenditaldmiku rajamine. 6545.
Plokkide müürimine (Fibo 5 250 mm). 8800.
Soojustuse paigaldamin ... Rohkem

Küsimused hanke korraldajale

Küsimus: private ID44614   26.12.2025 15:30
Tere kas soovite ainult vundamenti,või põrandaplaati ka?

Teavita reeglite rikkumisest

Korraldaja vastus: 26.12.2025 15:40

Tere

Tehke pakkumine mõlemale. Tegelik asukoht Jõgeva. Millegipärast on kirjas seal Pajusi.

Teavita reeglite rikkumisest

Küsimus: private ID65773   27.12.2025 18:03
Tere!
Kas soovite lintvundamenti betoon vundamendi plokkidest ? Kui sügavat ,kas kelder tuleb ka ? Et teada kas 2 rida või 3 rida?
Lugupidamisega!

Teavita reeglite rikkumisest

Korraldaja vastus: 27.12.2025 18:06

Tere

Keldrit ei tule.
Mis oleks parim lahendus?

Teavita reeglite rikkumisest

Küsimus: private ID65773   27.12.2025 18:13
Ilma keldrita 2 rida . Väga levinud ploki laius on 300 mm aga leib ka 400mm plokki. . Aga mis teil projektis on kas 300 mmvõi 400mm?
Kui soovite põrandat juurde ,kas sellele on projek,et teada kütte lahendus ,Kas põranda kütte ,kui jah siis mitu kontuuri jne.

Lugupidamisega!

Teavita reeglite rikkumisest

Korraldaja vastus: 27.12.2025 18:27

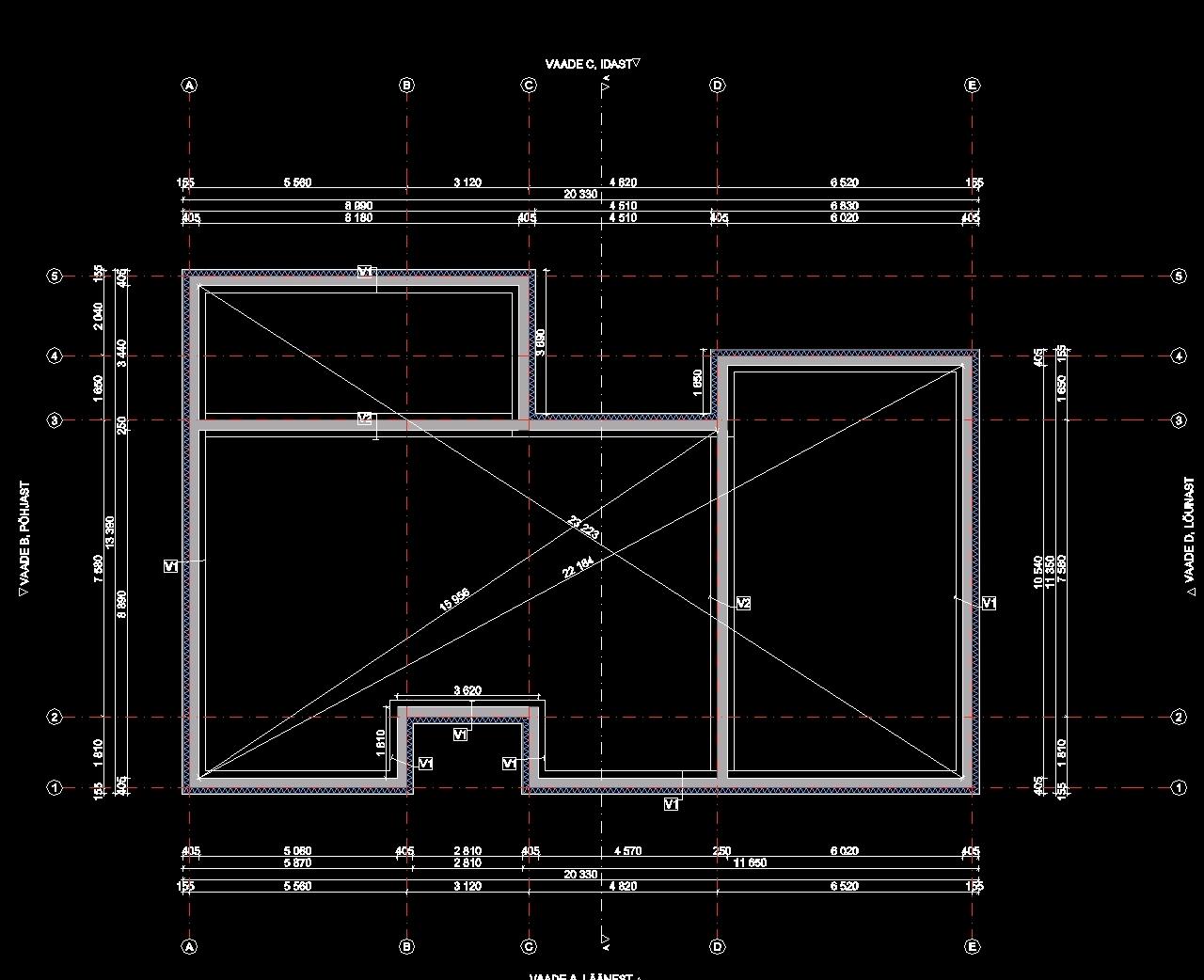
V1 - Projekteeritud vundament
Soklikrohv
EPS120 150 mm
Hüdroisolatsioon
Fibo5 plokk 250 mm
Hüdroisolatsioon
*Taldmik R/b 600 mm x (h)200 mm tihendatud killustikalusel (h)200 mm

V2 - Projekteeritud vundament
Hüdroisolatsioon
Fibo5 plokk 250 mm
Hüdroisolatsioon
*Taldmik R/b 600 mm x (h)200 mm tihendatud killustikalusel (h)200 mm

Selline tekst on joonisel selle hoone kohta.

Teavita reeglite rikkumisest

Küsimus: private ID32909   01.01.2026 20:14
Tere! Lisage palun lõike joonis ka.

Teavita reeglite rikkumisest

Korraldaja vastus: 02.01.2026 08:05

Tere!
Palun vaadata üle ka need on sobivad.

Teavita reeglite rikkumisest

Küsimus: private ID70265   05.01.2026 10:56
Tere
Kas on võimalik saada .dwg formaadis joonised?

Teavita reeglite rikkumisest

Korraldaja vastus:
Hanke korraldaja ei ole küsimusele veel vastanud

Lisa küsimus

Lisa küsimus

Minu pakkumine

Reeglid

Pakkumise kirjelduse väli on mõeldud pakkumise detailsemaks lahti kirjutamiseks. Pikema teksti mugavaks sisestamiseks klikkige kasti paremal ülaservas oleval ikoonil.
Pakkumist tehes on keelatud postitada enda kontaktandmeid (nimi, telefon, aadress jne). Me jälgime ja analüüsime pakkumisi, et vältida pettuseid ja reeglite rikkumisi.
Rikkumise puhul kasutajakonto blokeeritakse.

 

Teisi töid samas valdkonnas

Valdkonnas "Üldehitus" on 42 aktiivset tööd

no-img Pilt puudub

Majal terrassi vahetus

Asukoht: Harjumaa, Tallinn
Aega jäänud: 8h 51 min
Tehtud pakkumisi: 5

Valamu paigaldus

Asukoht: Harjumaa, Tallinn
Aega jäänud: 8h 51 min
Tehtud pakkumisi: 4

Vanemad teated:

Vaata kõiki

Sellel veebilehel kasutatakse küpsiseid. Kasutamist jätkates nõustute küpsiste kasutamisega.

Sulge
 
Minu pakkumine

Reeglid

Pakkumise kirjelduse väli on mõeldud pakkumise detailsemaks lahti kirjutamiseks. Pikema teksti mugavaks sisestamiseks klikkige kasti paremal ülaservas oleval ikoonil.
Pakkumist tehes on keelatud postitada enda kontaktandmeid (nimi, telefon, aadress jne). Me jälgime ja analüüsime pakkumisi, et vältida pettuseid ja reeglite rikkumisi.
Rikkumise puhul kasutajakonto blokeeritakse.