+ Lisa oma töö      

Otsid ehitajat "Pottsepatööd" valdkonnast?

Parima pakkumise ja teostaja leidmiseks lisa oma töö.

Ahju/avatud söegrilli ehitus

ID 127152

1125 vaatamist

Prindi

  • check Pakkumiste tegemine
    kuni 12.12.2025
  • check Võitja valik kuni
    22.12.2025
  • 3 Töö teostamine
    ja hinnang
Hanke lõpp: R, 12. detsember, 2025
Maakond: Harjumaa
Tööde lõpp: Kokkuleppel
Ehitusmaterjalid: Töö tellija poolt
Soovin pakkumisi: Summa kogu projektile

Töö sisu

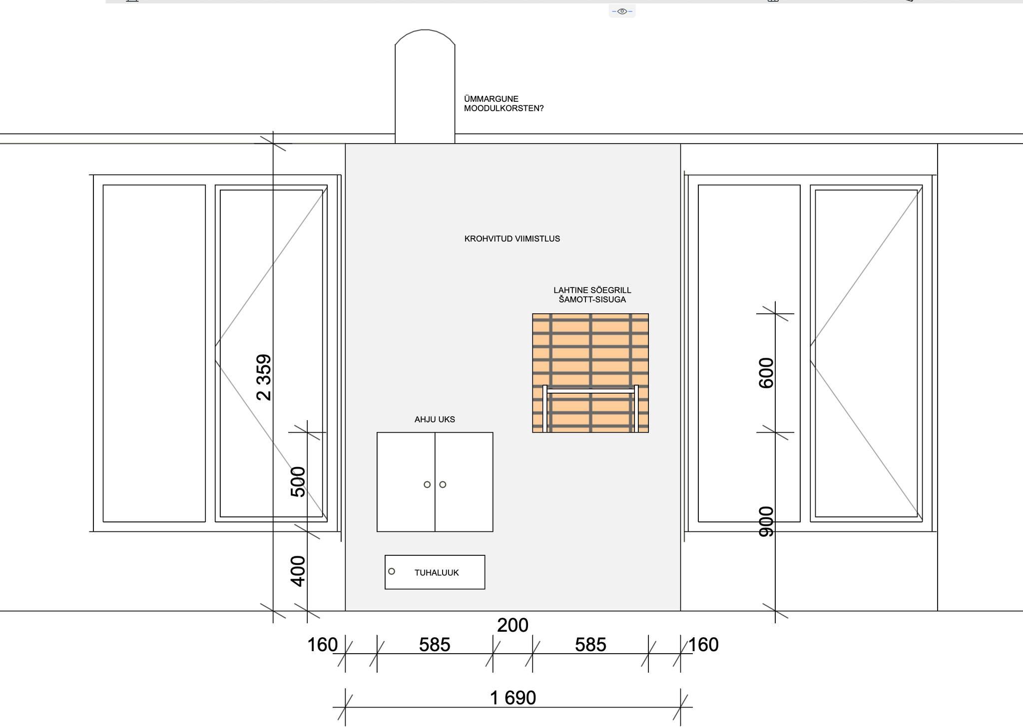
Palume hinnapakkumisi ahju ehitamisele. Soov on ühendada soojustsalvestav ahi lahtise kamina/söegrilliga. Väljast on toodud värske õhk sissepuhketoru näol kamina alla. Ahju sügavus 70 cm.
Kolded seest šamott-tellisega, välisviimistluseks krohv.
Täpsete mõõtude, kollete paigutuse jms osas kindlasti kuulaks meistri soovitusi.
Kas ahju juures oleks võimalik kasutada ümmargust terasest moodulkorstent (nt Schiedeli oma)?
Majja on kavandatud soojustagastusega sundventilatsioon.
Ette tänades ja tervitades

Pildid, video ja failid

Hanke korraldaja: eraisik ID34538

Pakkumised

Pakkumisi kokku: 0

Küsimused hanke korraldajale

Hanke korraldajale ei ole veel küsimusi esitatud.

Lisa küsimus

Lisa küsimus

Minu pakkumine

Reeglid

Pakkumise kirjelduse väli on mõeldud pakkumise detailsemaks lahti kirjutamiseks. Pikema teksti mugavaks sisestamiseks klikkige kasti paremal ülaservas oleval ikoonil.
Pakkumist tehes on keelatud postitada enda kontaktandmeid (nimi, telefon, aadress jne). Me jälgime ja analüüsime pakkumisi, et vältida pettuseid ja reeglite rikkumisi.
Rikkumise puhul kasutajakonto blokeeritakse.

 

Vanemad teated:

Vaata kõiki

Sellel veebilehel kasutatakse küpsiseid. Kasutamist jätkates nõustute küpsiste kasutamisega.

Sulge
 
Minu pakkumine

Reeglid

Pakkumise kirjelduse väli on mõeldud pakkumise detailsemaks lahti kirjutamiseks. Pikema teksti mugavaks sisestamiseks klikkige kasti paremal ülaservas oleval ikoonil.
Pakkumist tehes on keelatud postitada enda kontaktandmeid (nimi, telefon, aadress jne). Me jälgime ja analüüsime pakkumisi, et vältida pettuseid ja reeglite rikkumisi.
Rikkumise puhul kasutajakonto blokeeritakse.