+ Lisa oma töö      

Otsid ehitajat "Ventilatsioonitööd" valdkonnast?

Parima pakkumise ja teostaja leidmiseks lisa oma töö.

Soojustagastusega ventilatsiooni

ID 127057

1094 vaatamist

Prindi

  • check Pakkumiste tegemine
    kuni 05.12.2025
  • check Võitja valik kuni
    15.12.2025
  • 3 Töö teostamine
    ja hinnang
Hanke lõpp: R, 5. detsember, 2025
Maakond: Tartumaa
Tööde lõpp: Kokkuleppel
Ehitusmaterjalid: Töö tegija poolt
Soovin pakkumisi: Summa kogu projektile

Töö sisu

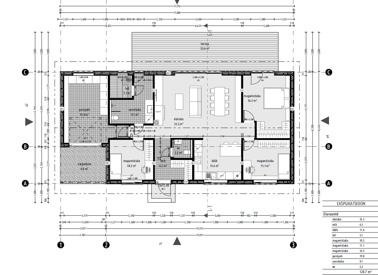
Soovin hinnapakkumist ühekorruselise eramu (A-energiaklass, eluruumid ca 125 m²)
soojustagastusega ventilatsioonisüsteemile koos võimaliku jahutuslahendusega.

Hind ilma jahutuseta kogu lahendusele
Hind koos jahutusega kogu lahendusele
Hinnas peab sisalduma ka kogu dokumentasiooni koostamine

Pildid, video ja failid

Hanke korraldaja: eraisik ID80833

Pakkumised

Pakkumisi kokku: 2

Ettevõte Summa Käibemaks Lisatud Vestlus
Kasutaja ikoon ID95257
Pakkuja profiil Väike nool paremale
6 300€ KM lisandub KM lisandub 03.12.2025 Vestlus (2)

Pakkumise kirjeldus:

Hind koos jahutusega 7400.-
Hind ilma jahutuseta 6300.-

Kasutaja ikoon ID94451
Pakkuja profiil Väike nool paremale
8 925€ Ei ole KMKR Ei ole KMKR 04.12.2025 Vestlus (6)

Pakkumise kirjeldus:

Tere

Pakkumine sisaldab järgnevat.
1. Ventilatsioonisüsteemi töö- ja teostusjoonist
2. Ventilatsioonisüsteemide paigaldust
3. Isolatsiooni paigaldust ventilatsioonitorustikule
4. Ventilatsioonisüsteemi materjalid
5. Ventilatsiooniseade Airobot (soojus-ja niiskustagastusega)
6. Ventilatsioonisüsteemi mõõdistus/seadistamine (akrediteeritud et ... Rohkem

Küsimused hanke korraldajale

Hanke korraldajale ei ole veel küsimusi esitatud.

Lisa küsimus

Lisa küsimus

Minu pakkumine

Reeglid

Pakkumise kirjelduse väli on mõeldud pakkumise detailsemaks lahti kirjutamiseks. Pikema teksti mugavaks sisestamiseks klikkige kasti paremal ülaservas oleval ikoonil.
Pakkumist tehes on keelatud postitada enda kontaktandmeid (nimi, telefon, aadress jne). Me jälgime ja analüüsime pakkumisi, et vältida pettuseid ja reeglite rikkumisi.
Rikkumise puhul kasutajakonto blokeeritakse.

 

Teisi töid samas valdkonnas

Valdkonnas "Ventilatsioonitööd" on 3 aktiivset tööd

Eramaja ventilatsioonitööd

Asukoht: Tartumaa, Soinaste
Aega jäänud: 6p 3h
Tehtud pakkumisi: 1

no-img Pilt puudub

Ventilatsiooni paigaldamine

Asukoht: Tartumaa, Tartu
Aega jäänud: 3p 3h
Tehtud pakkumisi: 0

Vanemad teated:

Vaata kõiki

Sellel veebilehel kasutatakse küpsiseid. Kasutamist jätkates nõustute küpsiste kasutamisega.

Sulge
 
Minu pakkumine

Reeglid

Pakkumise kirjelduse väli on mõeldud pakkumise detailsemaks lahti kirjutamiseks. Pikema teksti mugavaks sisestamiseks klikkige kasti paremal ülaservas oleval ikoonil.
Pakkumist tehes on keelatud postitada enda kontaktandmeid (nimi, telefon, aadress jne). Me jälgime ja analüüsime pakkumisi, et vältida pettuseid ja reeglite rikkumisi.
Rikkumise puhul kasutajakonto blokeeritakse.