+ Lisa oma töö      

Otsid ehitajat "Geodeesia, kartograafia" valdkonnast?

Parima pakkumise ja teostaja leidmiseks lisa oma töö.

Hoone 3D-skaneerimine projekteerimise tarbeks

ID 127017

579 vaatamist

Prindi

  • check Pakkumiste tegemine
    kuni 08.12.2025
  • 2 Võitja valik kuni
    18.12.2025
  • 3 Töö teostamine
    ja hinnang
Hanke lõpp: E, 8. detsember, 2025
Maakond: Harjumaa
Linn: Tallinn
Tööde lõpp: Kokkuleppel
Ehitusmaterjalid: Töö tegija poolt
Soovin pakkumisi: Summa kogu projektile

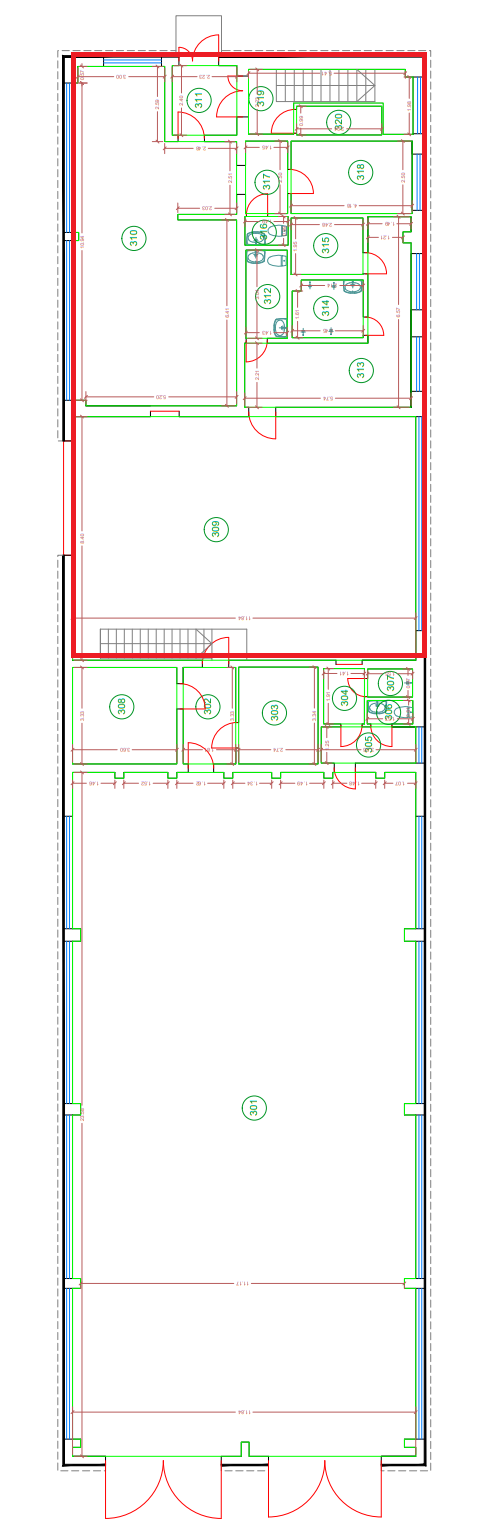
Töö sisu

Tere
Vajame hoone 3D-mõõdistamist renoveerimisprojekti koostamise eesmärgil. Seest ja väljast.

Ehitisealune pind: 590 m2
Suletud netopind: 572,4 m2

Hoone on osaliselt kahekorruseline.


Lõpptulemuseks soovime:
3D BIM-mudel (Revit) tasemel LOD 300–350 (otsustame hinna järgi)
Kandvad konstruktsioonid, välispiirded, avatäited, katusekonstruktsioon, põranda-/laetasapinnad
vanad kommunikatsioonid, mittesekkuvad vaheseinad, siseviimistlus EI kuulu mudelisse (lammutame kõik)
lisaks punktipilv (.e57/.rcp) + lihtsad 2D as-built plaanid ja lõiked

Pildid, video ja failid

Hanke korraldaja: eraisik ID88952

Pakkumised

Pakkumisi kokku: 4    

Ettevõte Summa Käibemaks Ettemaks Lisatud Vestlus
Private ID17674 4.7 1 745,0 € Lisandub hinnale Lisandub hinnale Ei soovi 05.12.2025 Vestlus (0)

Ettevõtte lühiinfo (vaata täisprofiili ID17674 ) :

Firma nimi: ************* **** **
E-mail: ***************
Telefon: *******
Kontaktisik: ******* *****
Asukoht: ** ******** ** *** ***** ******** *****
Käive: 600734.00
(periood 01.07.2025 - 30.09.2025)
Töötajaid: 54
(seisuga 30.09.2025)
Asutatud: 1998
MTR: Ehitusuuringud, Ehitamine, Ehitise audit, Omanikujärelevalve, Projekteerimine
Maksuvõlg: puudub (seisuga 13.12.2025)

Keskmine hinnang:

4.7
Töökiirus: 12345
Kvaliteet: 12345
Hind: 12345

Hinnanguid: 18
Tehtud tööde pildid: 17

Pakkumise kirjeldus:

Hoone mõõdistamine laserskanneriga nii seest (kõik siseruumid) kui väljast. Hoonet detailselt kujutava 3D-punktipilve genereerimine (.e57, .rcp).
Punktipilvest hoone 3D-mudeli koostamine Revit tarkvaras vastavalt valikule kas LOD 300 või LOD 350. 3D-mudeli alusel 2D-jooniste koostamine (korruste plaanid, fassaadivaated, lõiked).

Hind sisaldab ka Hange.ee teenustasu. LOD 350 puhul lisandub 200 EUR + km
Private ID93802 5.0 10 000,0 € Hinna sees Hinna sees 50% 07.12.2025 Vestlus (0)

Ettevõtte lühiinfo (vaata täisprofiili ID93802 ) :

Firma nimi: ***** ***** **
E-mail: ********************
Telefon: ********
Kontaktisik: ***** ***
Asukoht: ***** ** *** ***** ******** *****
Käive: Andmed puuduvad
Töötajaid: Andmed puuduvad
Asutatud: 2025
MTR: Andmed puuduvad
Maksuvõlg: puudub (seisuga 13.12.2025)

Keskmine hinnang:

5.0
Töökiirus: 12345
Kvaliteet: 12345
Hind: 12345

Hinnanguid: 1
Tehtud tööde pildid: 0

Pakkumise kirjeldus:

Tere,

Lähtudes seni saadaval olevast infost, on all pakkumine BIM-mudeli loomiseks Revitis koos nõutud 2D-joonistega (plaan ja lõiked). Töömaht hõlmab kandevkonstruktsioone, välisseinu, avatäiteid, katusekonstruktsiooni, põrandaplaate ja laetasapindu. Siseviimistlus ja mittekandvad vaheseinad on välja jäetud.

Kuna hetkel on olemas piiratud dokumentatsioon — eelkõige puuduvad olemasolevad põhiplaanid ja täpsemad ruumilahendused — siis on hinnastuses arvestatud ka lisanduvat ebakindlust.

Pakkumised:

LOD 300 BIM-mudel + 2D joonised: 13640 €
LOD 350 BIM-mudel + 2D joonised: 18780 €
Punktipilve koostamine ja töötlemine: 10700 €
Lisandub KM.

(Oluline erinevus LOD300 ja LOD350 konstruktiivse mudeli vahel on järgmine:
LOD300 mudelis puuduvad konstruktiivelementide omavahelised ühendused (nt armatuur, terasdetailid jms), LOD350 mudelis need sisalduvad.)

Tasumine
Ettemaks 50%, peale esimeste mudelite valmist 30%, peale vajaminevate muudatuste tegemist 15%, peale andmete üleandmist 5%
Private ID23415 4.7 1 500,0 € Lisandub hinnale Lisandub hinnale Ei soovi 08.12.2025 Vestlus (0)

Ettevõtte lühiinfo (vaata täisprofiili ID23415 ) :

Firma nimi: *** **
E-mail: ************
Telefon: *******
Kontaktisik: ***** ****
Asukoht: **** ***** ***** ****** *****
Käive: 64128.00
(periood 01.07.2025 - 30.09.2025)
Töötajaid: 8
(seisuga 30.09.2025)
Asutatud: 1997
MTR: Ehitusuuringud
Maksuvõlg: puudub (seisuga 13.12.2025)

Keskmine hinnang:

4.7
Töökiirus: 12345
Kvaliteet: 12345
Hind: 12345

Hinnanguid: 1
Tehtud tööde pildid: 0

Pakkumise kirjeldus:

Hoone mõõdistus laserskaneerimisega. Mudeldame Revit keskkonnas. Hind pakutud vastavalt LOD 300 tasemele.
Private ID24496 5.0 1 475,0 € Lisandub hinnale Lisandub hinnale Ei soovi 08.12.2025 Vestlus (1)

Ettevõtte lühiinfo (vaata täisprofiili ID24496 ) :

Firma nimi: ****** * **** ********* **
E-mail: ***************************
Telefon: ********
Kontaktisik: **** ******
Asukoht: **** ** ***** ******** *****
Käive: 129503.00
(periood 01.07.2025 - 30.09.2025)
Töötajaid: 6
(seisuga 30.09.2025)
Asutatud: 2009
MTR: Ehitusuuringud
Maksuvõlg: puudub (seisuga 13.12.2025)

Keskmine hinnang:

5.0
Töökiirus: 12345
Kvaliteet: 12345
Hind: 12345

Hinnanguid: 1
Tehtud tööde pildid: 0

Pakkumise kirjeldus:

Hoone mõõdistamise laserskaneerimis meetodil. Hoone mõõdistatakse nii seest kui väljast.
Peale mõõdistus töid koostatakse punktipilv ja genereeritakse virtuaaltuur. Punktipilved antakse tellijale üle RCP/RCS formaadis ja ka E57 formaadis.

Punktipilve alusel koostatakse vastavalt tellija soovitud detailsusele (LOD300) 3D mudel programmis Autodesk Revit. Tellijale antakse üle nii orginaal fail .RVT kui ka IFC fail. Lisaks tellijale antakse üle 2D joonised (Plaanid ja lõiked).

Küsimused hanke korraldajale

Küsimus: private ID91995   02.12.2025 08:33
Tervist
Kas hoone skaneerimist on vaja ainult hoone väljast või seest ka?

Teavita reeglite rikkumisest

Korraldaja vastus: 02.12.2025 21:12

Tere,
nii seest kui väljast. Netopinda on 572,4 m2 ning hoone on osaliselt kahekorruseline.
Tänan

Teavita reeglite rikkumisest

Küsimus: private ID17674   02.12.2025 12:06
Tere,
Uurin, lisaks eelmisele küsimusele - mis on vajalik töö lõpptulemus? Kas 3D-punktipilv, 2D-joonised (plaanid - vaated - lõiked) või 3D-mudel? Kui on seest mõõta vaja, palun lisage iseloomustus (mõni vana joonis, mis sees paikneb, paar iseloomustavat fotot). 3D-mudeli korral on vaja teada, kui detailselt see koostada tuleb ehk kas ja mis on lisaks hoone põhikonstruktsioonidele veel vaja näidata. Kas ka seadmed, torustikud, santehnika, elektri-, kütte- ja vent süsteemid jne. Vaja oleks teada ka oodatavat andmeformaati. See kõik on vaja, et teha hea ja adekvaatne pakkumine.

Teavita reeglite rikkumisest

Korraldaja vastus: 02.12.2025 23:28

Tere,
tänan täpsustavate küsimuste eest. Täiendasin hanket. Lõpptulemus sõltub hinnast – kui see osutub liiga kalliks, siis oleme nõus ka lihtsama versiooniga.
Tänan!

Teavita reeglite rikkumisest

Lisa küsimus

Lisa küsimus

Minu pakkumine

%

Reeglid

Pakkumise kirjelduse väli on mõeldud pakkumise detailsemaks lahti kirjutamiseks. Pikema teksti mugavaks sisestamiseks klikkige kasti paremal ülaservas oleval ikoonil.
Pakkumist tehes on keelatud postitada enda kontaktandmeid (nimi, telefon, aadress jne). Me jälgime ja analüüsime pakkumisi, et vältida pettuseid ja reeglite rikkumisi.
Rikkumise puhul kasutajakonto blokeeritakse.

 

Teisi töid samas valdkonnas

Valdkonnas "Geodeesia, kartograafia" on 2 aktiivset tööd

no-img Pilt puudub

Aia ehitusel maa mõõdistus

Asukoht: Harjumaa, Keila-Joa
Aega jäänud: 2p
Tehtud pakkumisi: 1

no-img Pilt puudub

Geoalus - mõõdistamine ning koostamine

Asukoht: Ida-Virumaa, Lüganuse
Aega jäänud: 28p
Tehtud pakkumisi: 0

Vanemad teated:

Vaata kõiki

Sellel veebilehel kasutatakse küpsiseid. Kasutamist jätkates nõustute küpsiste kasutamisega.

Sulge
 
Minu pakkumine
%

Reeglid

Pakkumise kirjelduse väli on mõeldud pakkumise detailsemaks lahti kirjutamiseks. Pikema teksti mugavaks sisestamiseks klikkige kasti paremal ülaservas oleval ikoonil.
Pakkumist tehes on keelatud postitada enda kontaktandmeid (nimi, telefon, aadress jne). Me jälgime ja analüüsime pakkumisi, et vältida pettuseid ja reeglite rikkumisi.
Rikkumise puhul kasutajakonto blokeeritakse.