+ Lisa oma töö      

Otsid ehitajat "Üldehitus" valdkonnast?

Parima pakkumise ja teostaja leidmiseks lisa oma töö.

3 toalise korteri kapitaalremont

ID 126972

2308 vaatamist

Prindi

  • check Pakkumiste tegemine
    kuni 06.02.2026
  • check Võitja valik kuni
    16.02.2026
  • 3 Töö teostamine
    ja hinnang
Hanke lõpp: R, 6. veebruar, 2026
Maakond: Harjumaa
Linn: Tallinn
Tööde lõpp: Kokkuleppel
Ehitusmaterjalid: Töö tellija poolt
Soovin pakkumisi: Summa kogu projektile

Töö sisu

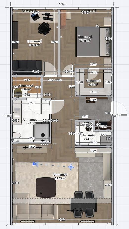
Kapitaalremont Tallinna kesklinna korterile 4ndal korrusel. Pind koos lodžaga ca 78m2. Lammutus juba tehtud. Aknad tellitud. Vaja radiaatorid ümber tõsta. Lift on olemas (ca60x110 cm), transpordikäru (kuni 300kg) olemas, mis mahub täpselt lifti.

Minu poolt:
– kõik suuremad ehitusmaterjalid (k.a. radiaatorid)
– materjalide üles tassimine 4. korrusele
– ehitusjäätmete ja sodiga tegelemine
- akende ja uste paigaldus

Sinu / alltöövõtjate poolt:
– kogu ehitustöö teostus
– torutööd koos materjali (v.a. radiaatorid) ja tööga
– elektritööd koos materjaliga

Pildid, video ja failid

Hanke korraldaja: eraisik ID95297

Pakkumised

Pakkumisi kokku: 14

Ettevõte Summa Käibemaks Lisatud Vestlus
Kasutaja ikoon ID90216
Pakkuja profiil Väike nool paremale
27 000€ Sisaldab KM Sisaldab KM 07.01.2026 Vestlus (0)
Kasutaja ikoon ID87168
Pakkuja profiil Väike nool paremale
25 000€ Ei ole KMKR Ei ole KMKR 07.01.2026 Vestlus (0)

Pakkumise kirjeldus:

1. Ehitustööd (täielik viimistlus)
1.1. Seinte ettevalmistus ja viimistlus (~350–420 m²)
Hind: 8 040 €
1.2. Põranda ettevalmistus + tasandusvalu
Hind: 1 740 €
1.3. Põrandakatte paigaldus (laminaat/parkett ~65 m²)
Hind: 1 620 €
1.4. Lodža viimistlus (~10 m²)
Hind: 660 €
1.5. Kipslahendused ja konstruktsioonid
Hind: 2 440 €
2. T ... Rohkem

Kasutaja ikoon ID85299
Pakkuja profiil Väike nool paremale
19 800€ Ei ole KMKR Ei ole KMKR 08.01.2026 Vestlus (0)
Kasutaja ikoon ID93738
Pakkuja profiil Väike nool paremale
33 540€ KM lisandub KM lisandub 08.01.2026 Vestlus (0)
Kasutaja ikoon ID73146
Pakkuja profiil Väike nool paremale
26 500€ KM lisandub KM lisandub 08.01.2026 Vestlus (0)

Pakkumise kirjeldus:

Tere!

Pakkumine vastavalt hanekel. Täpsem pakkumine kui objekt vaadatud üle ja täpne plaan paigas.

Saan saata ka pilte hiljuti taolisest lõpetatud objektist.

Kasutaja ikoon ID95354
Pakkuja profiil Väike nool paremale
22 300€ KM lisandub KM lisandub 08.01.2026 Vestlus (0)

Pakkumise kirjeldus:

Tööde käigus teostatakse kõik vajalikud üldehitus- ja viimistlustööd pärast tehtud lammutust. Tehakse põrandate ettevalmistus ja tasandus, seinte ja lagede ehitus ning viimistlus, põrandakatete paigaldus ning lodža siseviimistlus.

Teostame torutööd koos vajaliku materjaliga (v.a radiaatorid), sh radiaatorite ümbertõstmine, vee- ja kanalisat ... Rohkem

Kasutaja ikoon ID93253
Pakkuja profiil Väike nool paremale
23 400€ Sisaldab KM Sisaldab KM 11.01.2026 Vestlus (0)

Pakkumise kirjeldus:

Tere!

Hind sisaldab kapitaalremonti st. ehitustöö teostust, torutöid ja elektritöid.

Hinna sobivuse korral, tarvis objekti üle vaatama tulla ning siis saab ka üle täpsustada kõik vajalikud tööd.

Garantii tehtud töödele 3 aastat.

Parimate soovidega,

Kasutaja ikoon ID72970
Pakkuja profiil Väike nool paremale
24 960€ Ei ole KMKR Ei ole KMKR 13.01.2026 Vestlus (0)

Pakkumise kirjeldus:

Hinnapakkumine – Kapitaalremont, Tallinna kesklinn, 4. korrus

Tere!

Pakume Teile kapitaalremondi lahendust 4. korruse korterile kesklinnas, pindalaga ca 78 m² koos lodžaga. Lammutustööd on juba tehtud, aknad tellitud ning radiaatorite ümberpaigaldus vajaminev. Lift ja transpordikäru on olemas, mis teeb materjalide transportimise lihtsaks.


... Rohkem

Kasutaja ikoon ID77328
Pakkuja profiil Väike nool paremale
23 400€ Sisaldab KM Sisaldab KM 21.01.2026 Vestlus (0)
Kasutaja ikoon ID77006
Pakkuja profiil Väike nool paremale
1 890€ Sisaldab KM Sisaldab KM 30.01.2026 Vestlus (0)

Pakkumise kirjeldus:

Здравствуйте Цена указана за весь объём необходимых работ под ключ.

Kasutaja ikoon ID79981
Pakkuja profiil Väike nool paremale
20 000€ KM lisandub KM lisandub 02.02.2026 Vestlus (0)

Pakkumise kirjeldus:

Добрый день. Работы будут выполнены по вашему проекту в течении 8-10 недель

Kasutaja ikoon ID70952
Pakkuja profiil Väike nool paremale
18 500€ KM lisandub KM lisandub 06.02.2026 Vestlus (0)

Pakkumise kirjeldus:

Tere,
Saame selle töö kiirelt ja kvaliteetselt ära teha.
Hetkel hind on indikatiivne kuna oleks vaja natuke täpsemat infot ning objekti ülevaatust.Väike muutus võib olla + - kui kõik ülevaadatud ja Teie soovid ära kuulatud.
Kõigile töödele anname garantii 2 aastat ja materjalid saame ka ise tuua väga hea hinnaga.

Lugupidamisega

Kasutaja ikoon ID88424
Pakkuja profiil Väike nool paremale
18 000€ Sisaldab KM Sisaldab KM 06.02.2026 Vestlus (0)

Pakkumise kirjeldus:

Pakkumine sisaldab tööde teostamist, elektritööde materjale, üldehitusmaterjale

Kasutaja ikoon ID96357
Pakkuja profiil Väike nool paremale
30 000€ Ikoon kell KM lisandub KM lisandub 06.02.2026 Vestlus (0)

Küsimused hanke korraldajale

Küsimus: private ID64032   07.01.2026 17:02
Tere,

Siin jääb õhku väga palju küsimusi.
Kas projektid on olemas (vesi, elekter, vent.)?
Uued seinad, mõõtmed, materjali soovid?

Parimate soovidega,
Kristjan

Teavita reeglite rikkumisest

Korraldaja vastus:
Hanke korraldaja ei ole küsimusele veel vastanud

Küsimus: private ID93490   07.01.2026 17:27
Kas elektri põhiprojekt või töö projekt on olemas?
Kas võib teha pakkumise ainult elektritöödele?
Juhin igaksjuhuks hankijat tähelepanule et elektritöid tohib teostada ainult elektritööde ettevõtte kes MTR või Tarvik registris registreeritud.

Teavita reeglite rikkumisest

Korraldaja vastus:
Hanke korraldaja ei ole küsimusele veel vastanud

Küsimus: private ID56387   07.01.2026 23:04
Tere, kuidas põrand plaanis lahendada ? Valada sirgeks või prussidega rihtida? Parketi paigaldus ujuvalt ?

Lugupidamisega,
Marek

Teavita reeglite rikkumisest

Korraldaja vastus:
Hanke korraldaja ei ole küsimusele veel vastanud

Küsimus: private ID95583   08.01.2026 14:48
Tere! Kas saan õigesti aru, et elektrimaterjalide hulka ei kuulu lambid, valgustid ega pistikupesad? Nende toodete hinnad võivad ju väga palju erineda.

Teavita reeglite rikkumisest

Korraldaja vastus:
Hanke korraldaja ei ole küsimusele veel vastanud

Lisa küsimus

Lisa küsimus

Minu pakkumine

Reeglid

Pakkumise kirjelduse väli on mõeldud pakkumise detailsemaks lahti kirjutamiseks. Pikema teksti mugavaks sisestamiseks klikkige kasti paremal ülaservas oleval ikoonil.
Pakkumist tehes on keelatud postitada enda kontaktandmeid (nimi, telefon, aadress jne). Me jälgime ja analüüsime pakkumisi, et vältida pettuseid ja reeglite rikkumisi.
Rikkumise puhul kasutajakonto blokeeritakse.

 

Teisi töid samas valdkonnas

Valdkonnas "Üldehitus" on 26 aktiivset tööd

Kuuride lammutus ja uute ehitamine

Asukoht: Viljandimaa, Viljandi
Aega jäänud: 1p 11h
Tehtud pakkumisi: 20

Remondi eelne lammutustöö

Asukoht: Harjumaa, Tallinn
Aega jäänud: 4p 11h
Tehtud pakkumisi: 14

Vanemad teated:

Vaata kõiki

Sellel veebilehel kasutatakse küpsiseid. Kasutamist jätkates nõustute küpsiste kasutamisega.

Sulge
 
Minu pakkumine

Reeglid

Pakkumise kirjelduse väli on mõeldud pakkumise detailsemaks lahti kirjutamiseks. Pikema teksti mugavaks sisestamiseks klikkige kasti paremal ülaservas oleval ikoonil.
Pakkumist tehes on keelatud postitada enda kontaktandmeid (nimi, telefon, aadress jne). Me jälgime ja analüüsime pakkumisi, et vältida pettuseid ja reeglite rikkumisi.
Rikkumise puhul kasutajakonto blokeeritakse.