+ Lisa oma töö      

Otsid ehitajat "Müüritööd" valdkonnast?

Parima pakkumise ja teostaja leidmiseks lisa oma töö.

Bauroc 500 välisseinte ladumine

ID 126125

1024 vaatamist

Prindi

  • check Pakkumiste tegemine
    kuni 10.11.2025
  • check Võitja valik kuni
    17.11.2025
  • 3 Töö teostamine
    ja hinnang
Hanke lõpp: E, 10. november, 2025
Maakond: Harjumaa
Muu asula: Kloogaranna
Tööde lõpp: Kokkuleppel
Ehitusmaterjalid: Töö tellija poolt
Soovin pakkumisi: Summa kogu projektile

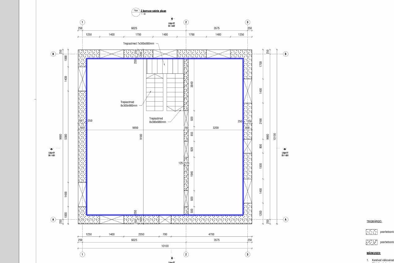
Töö sisu

Tere,

Oleks vaja laduda Bauroc 500 välisseinad
Kokku 77m2
Materjal ja tellingud on olemas!

Pildid, video ja failid

Hanke korraldaja: ettevõte ID59528

Pakkumised

Pakkumisi kokku: 4

Ettevõte Summa Käibemaks Lisatud Vestlus
Kasutaja ikoon ID83819
Pakkuja profiil Väike nool paremale
3 000€ Ei ole KMKR Ei ole KMKR 07.11.2025 Vestlus (0)
Kasutaja ikoon ID93701
Pakkuja profiil Väike nool paremale
16 200€ KM lisandub KM lisandub 07.11.2025 Vestlus (3)
Kasutaja ikoon ID46583
Pakkuja profiil Väike nool paremale
3 850€ Ei ole KMKR Ei ole KMKR 08.11.2025 Vestlus (0)
Kasutaja ikoon ID89838
Pakkuja profiil Väike nool paremale
3 420€ KM lisandub KM lisandub 10.11.2025 Vestlus (0)

Pakkumise kirjeldus:

Tere
Meie poolne esialgne Pakkumine vastavalt hanke sisus välja toodud informatsioonile.
Materjal tellija poolt
Ennem võitja välja kuulutamist pannakse paika tööde teostamise aeg ning lepitakse kokku detailides. Lisaküsimuste korral kirjutage, vastame meeleldi.
Edukat hanget

Küsimused hanke korraldajale

Hanke korraldajale ei ole veel küsimusi esitatud.

Lisa küsimus

Lisa küsimus

Minu pakkumine

Reeglid

Pakkumise kirjelduse väli on mõeldud pakkumise detailsemaks lahti kirjutamiseks. Pikema teksti mugavaks sisestamiseks klikkige kasti paremal ülaservas oleval ikoonil.
Pakkumist tehes on keelatud postitada enda kontaktandmeid (nimi, telefon, aadress jne). Me jälgime ja analüüsime pakkumisi, et vältida pettuseid ja reeglite rikkumisi.
Rikkumise puhul kasutajakonto blokeeritakse.

 

Teisi töid samas valdkonnas

Valdkonnas "Müüritööd" on 2 aktiivset tööd

Telliskivi seina taastamine, ehitus

Asukoht: Harjumaa, Kiisa
Aega jäänud: 2p 6h
Tehtud pakkumisi: 1

no-img Pilt puudub

Kivimaster

Asukoht: Harjumaa, Tallinn
Aega jäänud: 1p 6h
Tehtud pakkumisi: 0

Vanemad teated:

Vaata kõiki

Sellel veebilehel kasutatakse küpsiseid. Kasutamist jätkates nõustute küpsiste kasutamisega.

Sulge
 
Minu pakkumine

Reeglid

Pakkumise kirjelduse väli on mõeldud pakkumise detailsemaks lahti kirjutamiseks. Pikema teksti mugavaks sisestamiseks klikkige kasti paremal ülaservas oleval ikoonil.
Pakkumist tehes on keelatud postitada enda kontaktandmeid (nimi, telefon, aadress jne). Me jälgime ja analüüsime pakkumisi, et vältida pettuseid ja reeglite rikkumisi.
Rikkumise puhul kasutajakonto blokeeritakse.