+ Lisa oma töö      

Otsid ehitajat "Vundamenditööd" valdkonnast?

Parima pakkumise ja teostaja leidmiseks lisa oma töö.

Eramu vundamenditööd

ID 125821

1253 vaatamist

Prindi

  • check Pakkumiste tegemine
    kuni 05.11.2025
  • check Võitja valik kuni
    12.11.2025
  • 3 Töö teostamine
    ja hinnang
Hanke lõpp: K, 5. november, 2025
Maakond: Lääne-Virumaa
Muu asula: Vana-Vinni
Tööde lõpp: Kokkuleppel
Ehitusmaterjalid: Töö tegija poolt
Soovin pakkumisi: Summa kogu projektile

Töö sisu

Soovin hinnapakkumist vundamendi taldmiku ja postide vundamendi rajamiseks.

Andmed:
rajamissügavus: -1.20-1.60 m

postid-monoliitbetoon C25/30 400x400 mm

taldmik- monoliitbetoon C30, 500x500x150 mm
töötav armatuur O10 AIII, jaotusarmatuur O 8 AIII.

NB! Hinnapakkumine peab sisaldama vundamendi asukoha mahamärkimist ja kaevetöid.
Töö võiks olla teostatud hiljemalt novembri lõpuks.

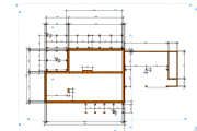
Pildid, video ja failid

Hanke korraldaja: eraisik ID94737

Pakkumised

Pakkumisi kokku: 1

Ettevõte Summa Käibemaks Lisatud Vestlus
Kasutaja ikoon ID89838
Pakkuja profiil Väike nool paremale
69 360€ KM lisandub KM lisandub 05.11.2025 Vestlus (0)

Pakkumise kirjeldus:

Tere
Meie poolne esialgne Pakkumine vastavalt hanke sisus välja toodud informatsioonile. Palju punkte mis tuleb ennem läbi arutada, siis saab reaaldema pakkumise koostada.
Materjal tegija poolt
Ennem võitja välja kuulutamist pannakse paika tööde teostamise aeg ning lepitakse kokku detailides. Lisaküsimuste korral kirjutage, vastame meeleldi.
Tasum ... Rohkem

Küsimused hanke korraldajale

Küsimus: private ID53401   03.11.2025 18:30
Tere.
Kas saaksite palun lisada hoone lõike joonise?
Parimat!

Teavita reeglite rikkumisest

Korraldaja vastus: 03.11.2025 18:48

Tere!

Lõiked lisatud.

Lugupidamisega

Teavita reeglite rikkumisest

Lisa küsimus

Lisa küsimus

Minu pakkumine

Reeglid

Pakkumise kirjelduse väli on mõeldud pakkumise detailsemaks lahti kirjutamiseks. Pikema teksti mugavaks sisestamiseks klikkige kasti paremal ülaservas oleval ikoonil.
Pakkumist tehes on keelatud postitada enda kontaktandmeid (nimi, telefon, aadress jne). Me jälgime ja analüüsime pakkumisi, et vältida pettuseid ja reeglite rikkumisi.
Rikkumise puhul kasutajakonto blokeeritakse.

 

Vanemad teated:

Vaata kõiki

Sellel veebilehel kasutatakse küpsiseid. Kasutamist jätkates nõustute küpsiste kasutamisega.

Sulge
 
Minu pakkumine

Reeglid

Pakkumise kirjelduse väli on mõeldud pakkumise detailsemaks lahti kirjutamiseks. Pikema teksti mugavaks sisestamiseks klikkige kasti paremal ülaservas oleval ikoonil.
Pakkumist tehes on keelatud postitada enda kontaktandmeid (nimi, telefon, aadress jne). Me jälgime ja analüüsime pakkumisi, et vältida pettuseid ja reeglite rikkumisi.
Rikkumise puhul kasutajakonto blokeeritakse.