+ Lisa oma töö      

Otsid ehitajat "Üldehitus" valdkonnast?

Parima pakkumise ja teostaja leidmiseks lisa oma töö.

Hange on lõppenud!

Võitjaks osutus kasutaja ID 92100

Korraldaja hinnang tehtud tööle

 
4.3
12.12.2025
Töökiirus: 12345
Kvaliteet: 12345
Hind: 12345

Lõpptulemus korralik. Kokkulepetest peeti kinni. - Mart T.

Garaazi ümberehitus kaheks eluruumiks

ID 124921

1073 vaatamist

Prindi

  • check Pakkumiste tegemine
    kuni 16.10.2025
  • check Võitja valik kuni
    23.10.2025
  • 3 Töö teostamine
    ja hinnang
Hanke lõpp: N, 16. oktoober, 2025
Maakond: Harjumaa
Linn: Tallinn
Tööde lõpp: Kokkuleppel
Ehitusmaterjalid: Töö tegija poolt
Soovin pakkumisi: Summa kogu projektile

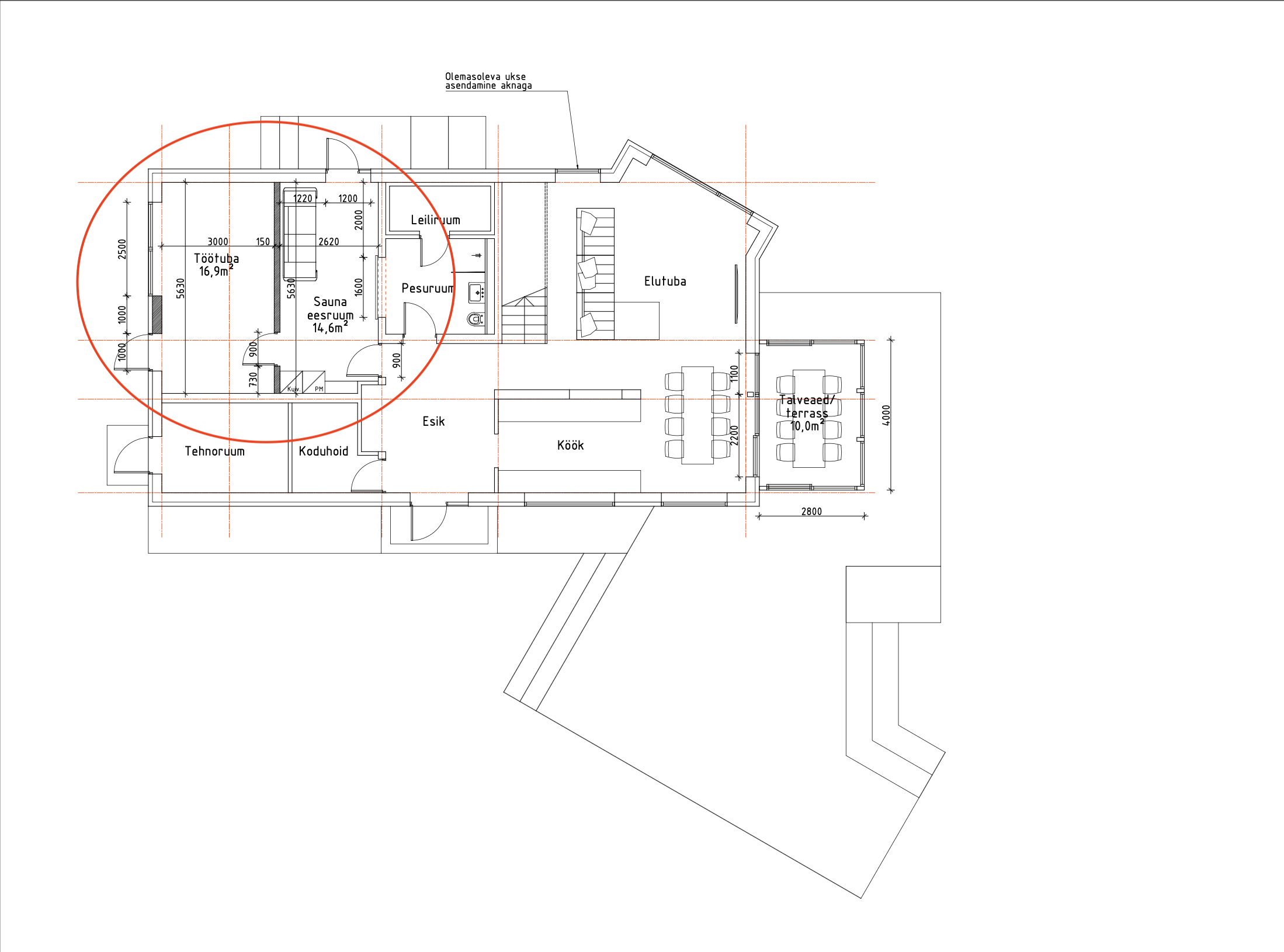
Töö sisu

Garaaziukse ava kinniehitada fibo (200mm) blokiga ja penoga soojustus peale. Väljast tuleb uus osa ka krohvida ning värvida, et oleks ülejäänud majaga sama väljanägemine.
Paigaldada tuleb ka uks (olemas) ja aken (olemas).

Sees tuleb teha kips vahesein ning paigaldada siseuks (olemas). Seinad (olemasolevad) osaliselt krohvida ning värvida ja uus vahesein pahteldada ja värvida.
Paigaldada tuleb ka kipslagi kogu vana garaazi ulatuses. Põrand ja lagi betoon. Põranda all on vesipõrandaküte.
Vaja vedada ka elektrijuhtmed pistikute ja valgustuse tarbeks.

Pildid, video ja failid

Hanke korraldaja: eraisik ID37948

Pakkumised

Pakkumisi kokku: 5

Ettevõte Summa Käibemaks Lisatud Vestlus
Kasutaja ikoon ID93353
Pakkuja profiil Väike nool paremale
5 700€ KM lisandub KM lisandub 09.10.2025 Vestlus (0)

Pakkumise kirjeldus:

Tere, hind sisaldab tööd ja materjali. Fibo plokid, soojustus, kips, karkass, vill, samuti kaableid. Ei sisalda dekoratiivseid materjale nagu pistikupesad. Nende paigaldus on hinnas. Valmistamise aeg nov-dets 25. Parimat, Andres

Kasutaja ikoon ID65365
Pakkuja profiil Väike nool paremale
7 905€ Sisaldab KM Sisaldab KM 12.10.2025 Vestlus (0)

Pakkumise kirjeldus:

Pakkumine kirjeldatud tööle.

Kasutaja ikoon ID92100
Pakkuja profiil Väike nool paremale
3 610€ Sisaldab KM Sisaldab KM 13.10.2025 Vestlus (4)

Pakkumise kirjeldus:

Töö sisu:
1. Garaažiukse ava kinni ehitamine

Tööde sisu:

Aluspinna ettevalmistus

Fibo 200 mm plokist seina ladumine, 8.4 m²

Soojustamine penoplastiga (EPS 100, 100 mm)

Võrgu ja krohviga viimistlus

Pealmine värvikiht (majaga sama toon)


Materjalid: fibo plokid, liimsegu, armeerimisvõrk, soojustus, krohvisegu, värv

Hind koos ... Rohkem

Kasutaja ikoon ID64032
Pakkuja profiil Väike nool paremale
6 200€ KM lisandub KM lisandub 16.10.2025 Vestlus (0)

Pakkumise kirjeldus:

Tere,

Hind vastavalt hanke kirjeldusele.
Küsimustele vastan meeleldi.

Parimate soovidega,
Kristjan

Kasutaja ikoon ID94133
Pakkuja profiil Väike nool paremale
6 700€ KM lisandub KM lisandub 16.10.2025 Vestlus (0)

Pakkumise kirjeldus:

Tere.
Kõrgtasemel töö.
Vastavate tööde kogemus üle 20 aasta.Kõrgelt hinnatud usaldusväärsus.Praeguse pakkumine on ligikaudne,kohapeal hinnates saab anda vastava hinnapakkumise.
Materjalid kuuluvad hinnapakkumisse.
Kõigile töödele garantii vähemalt 2 aastat.
Parimat soovides.

Küsimused hanke korraldajale

Küsimus: private ID93490   13.10.2025 14:40
Kas vastavad muudatused kooskõlastatakse ka kohaliku KOV-ga? Kas vaja ka elektri muudatuste projekti?

Teavita reeglite rikkumisest

Korraldaja vastus: 13.10.2025 14:53

Jah, mul arhitekt viib vastavad muudatused EHRi sisse. Elektrimuudatuste projekti hetkel vaja ei ole.

Teavita reeglite rikkumisest

Küsimus: private ID80358   13.10.2025 15:00
Tere,
Kas põrand jääb sama?

Teavita reeglite rikkumisest

Korraldaja vastus: 13.10.2025 15:48

jah, põrand jääb hetkel see, mis on (30x30 plaadid)

Teavita reeglite rikkumisest

Küsimus: private ID93490   13.10.2025 15:48
Eks see oleneb piirkonnast. Osad tahavad koos muudatuste sisseviimisega ka elektri muudatuste osa projekti ka saada ning muudatuste osale ka auditi protokoll. Täpsusta see üle mis vaja esitada on. Igaks juhuks mainin selle ka ära, et vaataksid üle et pakkujatel oleks MTR-s elektritööd, kui ei ole siis nad ei tohi elektritöid teostada ja ei saa väljastada nõuete kohast vastavusdeklaratsiooni.

Teavita reeglite rikkumisest

Korraldaja vastus: 14.10.2025 09:06

Arusaadav.

Teavita reeglite rikkumisest

Lisa küsimus

Lisa küsimus

Minu pakkumine

Reeglid

Pakkumise kirjelduse väli on mõeldud pakkumise detailsemaks lahti kirjutamiseks. Pikema teksti mugavaks sisestamiseks klikkige kasti paremal ülaservas oleval ikoonil.
Pakkumist tehes on keelatud postitada enda kontaktandmeid (nimi, telefon, aadress jne). Me jälgime ja analüüsime pakkumisi, et vältida pettuseid ja reeglite rikkumisi.
Rikkumise puhul kasutajakonto blokeeritakse.

 

Teisi töid samas valdkonnas

Valdkonnas "Üldehitus" on 41 aktiivset tööd

Korterist tellisseina eemaldamine

Asukoht: Harjumaa, Tallinn
Aega jäänud: 1p 22h
Tehtud pakkumisi: 6

Dushikabiini paigaldus

Asukoht: Harjumaa, Jüri
Aega jäänud: 1p 22h
Tehtud pakkumisi: 4

Vanemad teated:

Vaata kõiki

Sellel veebilehel kasutatakse küpsiseid. Kasutamist jätkates nõustute küpsiste kasutamisega.

Sulge
 
Minu pakkumine

Reeglid

Pakkumise kirjelduse väli on mõeldud pakkumise detailsemaks lahti kirjutamiseks. Pikema teksti mugavaks sisestamiseks klikkige kasti paremal ülaservas oleval ikoonil.
Pakkumist tehes on keelatud postitada enda kontaktandmeid (nimi, telefon, aadress jne). Me jälgime ja analüüsime pakkumisi, et vältida pettuseid ja reeglite rikkumisi.
Rikkumise puhul kasutajakonto blokeeritakse.