+ Lisa oma töö      

Otsid ehitajat "Põrandatööd" valdkonnast?

Parima pakkumise ja teostaja leidmiseks lisa oma töö.

Põranda ehitus

ID 124783

981 vaatamist

Prindi

  • check Pakkumiste tegemine
    kuni 13.10.2025
  • check Võitja valik kuni
    20.10.2025
  • 3 Töö teostamine
    ja hinnang
Hanke lõpp: E, 13. oktoober, 2025
Maakond: Võrumaa
Linn: Võru
Tööde lõpp: Kokkuleppel
Ehitusmaterjalid: Töö tegija poolt
Soovin pakkumisi: Summa kogu projektile

Töö sisu

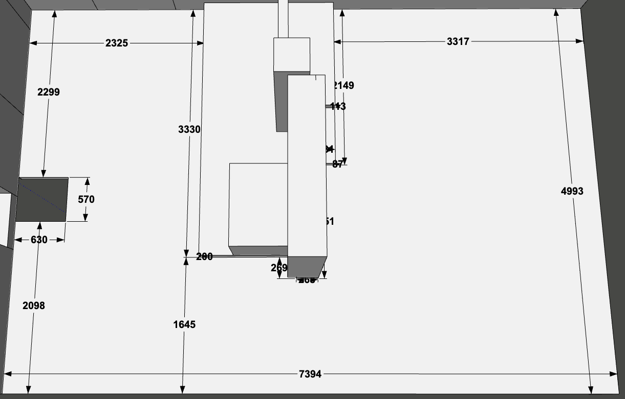
Tööks on 30a vanusele betoonpõrandale ehitada laiast (18-20cm) kuuse- või männilauast põrand. Laudpõrand peab asetsema kipsplaadi alumise ääre tasandil, st 20cm betoonpõrandast kõrgemal - betooni ja põranda vaheline osa tuleb villaga soojustada. Põrandalauad peavad asetsema paralleelselt toa lühema küljega (5m külg).
Joonisel "Vaade-1" on vasakul poolel näha 63x57cm auku betoonpõrandas, millele ligipääs tuleb säilitada avatava luugi abil.
Põrandat ehitades tuleb silmas pidada, et betoonpõrandas asetsevast august ülalpool (vaadates joonist "Vaade-1") on betoonpõrand kerge kaldega seinast augu poole, mida on näha piltidel 8154, 8155 ja 8156. Ülejäänud toa põrand on samatasandiline.

Pildid, video ja failid

Hanke korraldaja: eraisik ID94273

Pakkumised

Pakkumisi kokku: 3

Ettevõte Summa Käibemaks Lisatud Vestlus
Kasutaja ikoon ID93708
Pakkuja profiil Väike nool paremale
5 600€ KM lisandub KM lisandub 13.10.2025 Vestlus (0)

Pakkumise kirjeldus:

Pakkumises laakide , loodimine ja rihtimine.
Soojustuse 100mm+50mm paigaldus. (Lisaks vundamendi ühenduskohas külmasilla isoleerimine)
Topelt laagid alumine osa 95mm ja pealmine 70mm.
Pealmised laagid sammuga 400mm.
Alumised laagid sammuga 600mm.
195mm põrandalaua paigaldus.
Tööde kestvus ca. 4 päeva kaks meest.
Materjal koos transpordiga: 340 ... Rohkem

Kasutaja ikoon ID15371
Pakkuja profiil Väike nool paremale
5 500€ KM lisandub KM lisandub 13.10.2025 Vestlus (0)

Pakkumise kirjeldus:

Tere.
Hinnapkkumine on koostatud vastavalt hankes kirjeldatule ning sisaldab pòranda ehitust koos materjalidega.
Lisakùsimused on oodatud vestluses ning enne otsuse tegemist ka kindlasti kontakteeruda, tàpsustamaks asjaolusid ja aegasid.


Parimat.
Indrek

Kasutaja ikoon ID38464
Pakkuja profiil Väike nool paremale
5 500€ KM lisandub KM lisandub 13.10.2025 Vestlus (0)

Küsimused hanke korraldajale

Küsimus: private ID53861   07.10.2025 09:11
Tere.
Kas ruum tühjendatakse mööblist ja asjadest tööde ajaks?

Lugupidamisega

Teavita reeglite rikkumisest

Korraldaja vastus: 07.10.2025 09:45

Just nii!

Teavita reeglite rikkumisest

Lisa küsimus

Lisa küsimus

Minu pakkumine

Reeglid

Pakkumise kirjelduse väli on mõeldud pakkumise detailsemaks lahti kirjutamiseks. Pikema teksti mugavaks sisestamiseks klikkige kasti paremal ülaservas oleval ikoonil.
Pakkumist tehes on keelatud postitada enda kontaktandmeid (nimi, telefon, aadress jne). Me jälgime ja analüüsime pakkumisi, et vältida pettuseid ja reeglite rikkumisi.
Rikkumise puhul kasutajakonto blokeeritakse.

 

Teisi töid samas valdkonnas

Valdkonnas "Põrandatööd" on 2 aktiivset tööd

Talumaja põrandate valamine/ehitus koos küttetorustiku paigaldusega

Asukoht: Raplamaa, Purila
Aega jäänud: 16p 16h
Tehtud pakkumisi: 2

Põrandakütte paigaldus ja põrandavalu (kips või betoon)

Asukoht: Saaremaa, Muhu vald
Aega jäänud: 16h 3 min
Tehtud pakkumisi: 1

Vanemad teated:

Vaata kõiki

Sellel veebilehel kasutatakse küpsiseid. Kasutamist jätkates nõustute küpsiste kasutamisega.

Sulge
 
Minu pakkumine

Reeglid

Pakkumise kirjelduse väli on mõeldud pakkumise detailsemaks lahti kirjutamiseks. Pikema teksti mugavaks sisestamiseks klikkige kasti paremal ülaservas oleval ikoonil.
Pakkumist tehes on keelatud postitada enda kontaktandmeid (nimi, telefon, aadress jne). Me jälgime ja analüüsime pakkumisi, et vältida pettuseid ja reeglite rikkumisi.
Rikkumise puhul kasutajakonto blokeeritakse.