+ Lisa oma töö      

Otsid ehitajat "Üldehitus" valdkonnast?

Parima pakkumise ja teostaja leidmiseks lisa oma töö.

Korterite ehitus ja viimistlustöö

ID 124583

1292 vaatamist

Prindi

  • check Pakkumiste tegemine
    kuni 16.10.2025
  • check Võitja valik kuni
    23.10.2025
  • 3 Töö teostamine
    ja hinnang
Hanke lõpp: N, 16. oktoober, 2025
Maakond: Tartumaa
Tööde lõpp: R, 05. juuni, 2026
Ehitusmaterjalid: Töö tegija poolt
Soovin pakkumisi: Summa kogu projektile

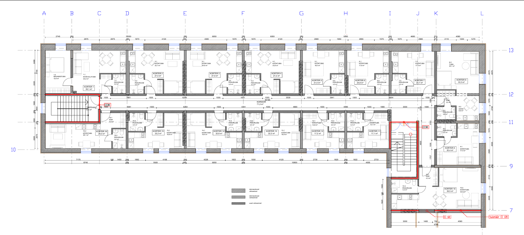
Töö sisu

Vaja ehitada koridori seinad kahekordsest kipsist, et tagada tuleohutus ja helinõuded.
Hankida ja paigaldada korteri välisuksed, mis vastaks EI30 ja helinormidele, WC uks siseuks valge (niiskuskindlam)
Korteri siseste vannitubade ehitus ca 1800x1800 (torutööd, hüdru, plaatimine, duššinurka renntrap ja kalle valada. torustikud kulgeks kipsseinte sees.
Elektritööd -kööki ca 6 pistikut, elutuppa ca 6 pistikut, vannituppa 2 pistikut.
Korterisse tuleb laminaat parkett, ripplagi

Korrusel 16 korterit, töödega saaks alustada novembris.

Pildid, video ja failid

Hanke korraldaja: ettevõte ID33769

Pakkumised

Pakkumisi kokku: 2

Ettevõte Summa Käibemaks Lisatud Vestlus
Kasutaja ikoon ID89705
Pakkuja profiil Väike nool paremale
344 880€ KM lisandub KM lisandub 05.10.2025 Vestlus (0)

Pakkumise kirjeldus:

Pakume terviklahendust 16 korteri ehituseks ja siseviimistluseks vastavalt esitatud töö kirjeldusele ja plaanidele. Tööd teostatakse koos kõigi vajalike materjalide, tööjõu, transpordi ning jäätmete äraveoga.

Tööde sisu:

Kipsseinad ja koridori tulekindlad seinad (EI30):

Metallkarkass (CW/UW 50)

Topelt tulekindel kipsplaat mõlemal po ... Rohkem

Kasutaja ikoon ID93738
Pakkuja profiil Väike nool paremale
528 450€ Sisaldab KM Sisaldab KM 11.10.2025 Vestlus (0)

Küsimused hanke korraldajale

Küsimus: private ID93353   02.10.2025 23:32
Tere, palun täpsustage veidi asukohta.

Teavita reeglite rikkumisest

Korraldaja vastus: 03.10.2025 06:41

Kesklinn, tartu

Teavita reeglite rikkumisest

Küsimus: private ID93490   13.10.2025 20:35
Tere,
Kas elektriprojekt on olemas?
Kui vaja saan teha pakkumise elektriprojektile.

Teavita reeglite rikkumisest

Korraldaja vastus: 13.10.2025 20:58

Tere
Elektri projekti veel pole, on tegemisel.

Teavita reeglite rikkumisest

Küsimus: private ID32909   14.10.2025 10:10
Tere! Saan aru, et hanke sisuks on nö. "võtmed kätte" lahendus. Hanke keskkond tunnihinnaga pakkumist teha ei lase, aga sisulise tükihinna pakkumiseks on infot liiga vähe. Näiteks palun lisada lõikejoonised, materjalide spetsifikatsioonid, lõikejoonised, hoone kirjeldus (konstruktsioon, korrus, fotod olemasolevast olukorrast jne.) ja eriosade joonised.

Teavita reeglite rikkumisest

Korraldaja vastus: 16.10.2025 09:12

Kahjuks ei ole rohkemat infot hetkel pakkuda.

Teavita reeglite rikkumisest

Lisa küsimus

Lisa küsimus

Minu pakkumine

Reeglid

Pakkumise kirjelduse väli on mõeldud pakkumise detailsemaks lahti kirjutamiseks. Pikema teksti mugavaks sisestamiseks klikkige kasti paremal ülaservas oleval ikoonil.
Pakkumist tehes on keelatud postitada enda kontaktandmeid (nimi, telefon, aadress jne). Me jälgime ja analüüsime pakkumisi, et vältida pettuseid ja reeglite rikkumisi.
Rikkumise puhul kasutajakonto blokeeritakse.

 

Teisi töid samas valdkonnas

Valdkonnas "Üldehitus" on 27 aktiivset tööd

Terassi õlitamine, 13,7 ruutu

Asukoht: Harjumaa, Saue
Aega jäänud: 5p 19h
Tehtud pakkumisi: 4

Eramaja ehitus

Asukoht: Harjumaa, Suurupi
Aega jäänud: 4p 19h
Tehtud pakkumisi: 4

Vanemad teated:

Vaata kõiki

Sellel veebilehel kasutatakse küpsiseid. Kasutamist jätkates nõustute küpsiste kasutamisega.

Sulge
 
Minu pakkumine

Reeglid

Pakkumise kirjelduse väli on mõeldud pakkumise detailsemaks lahti kirjutamiseks. Pikema teksti mugavaks sisestamiseks klikkige kasti paremal ülaservas oleval ikoonil.
Pakkumist tehes on keelatud postitada enda kontaktandmeid (nimi, telefon, aadress jne). Me jälgime ja analüüsime pakkumisi, et vältida pettuseid ja reeglite rikkumisi.
Rikkumise puhul kasutajakonto blokeeritakse.