+ Lisa oma töö      

Otsid ehitajat "Siseviimistlustööd" valdkonnast?

Parima pakkumise ja teostaja leidmiseks lisa oma töö.

IKEA köögi paigaldus

ID 124356

1004 vaatamist

Prindi

  • check Pakkumiste tegemine
    kuni 01.10.2025
  • check Võitja valik kuni
    08.10.2025
  • 3 Töö teostamine
    ja hinnang
Hanke lõpp: K, 1. oktoober, 2025
Maakond: Harjumaa
Linn: Tallinn
Tööde lõpp: Kokkuleppel
Ehitusmaterjalid: Töö tellija poolt
Soovin pakkumisi: Summa kogu projektile

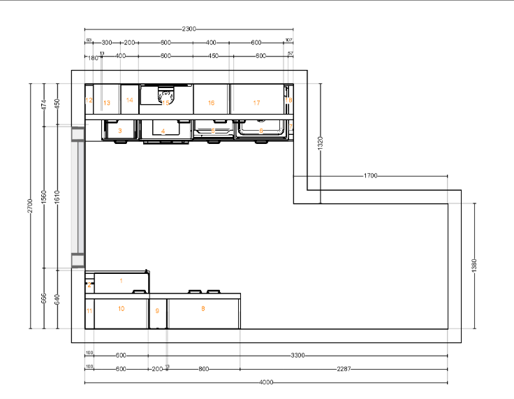
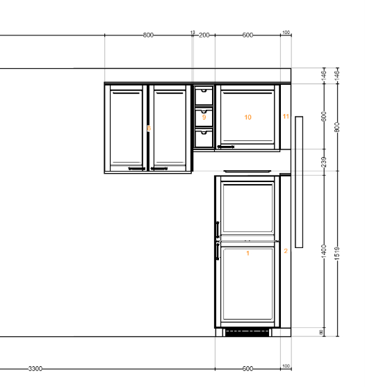
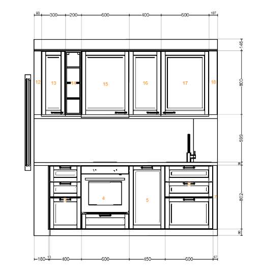
Töö sisu

Soovin hinda IKEA köögi paigaldusele. Fotod lisatud.

* Kappide paigaldus
* Valamu ja kraani paigaldus
* Nõudepesumasin
* Külmkapp
* Õhupuhasti
* Ahi
* Induktsioonpliit
* Led valgustiriba

Pildid, video ja failid

Hanke korraldaja: eraisik ID94089

Pakkumised

Pakkumisi kokku: 10

Ettevõte Summa Käibemaks Lisatud Vestlus
Kasutaja ikoon ID72269
Pakkuja profiil Väike nool paremale
885€ Ei ole KMKR Ei ole KMKR 28.09.2025 Vestlus (4)

Pakkumise kirjeldus:

Tere,

Esitan pakkumise hankes kirjeldatud töödele.

Parimat,

Olev

Kasutaja ikoon ID73837
Pakkuja profiil Väike nool paremale
1 000€ KM lisandub KM lisandub 29.09.2025 Vestlus (0)
Kasutaja ikoon ID73822
Pakkuja profiil Väike nool paremale
1 000€ Sisaldab KM Sisaldab KM 29.09.2025 Vestlus (0)
Kasutaja ikoon ID86143
Pakkuja profiil Väike nool paremale
550€ KM lisandub KM lisandub 29.09.2025 Vestlus (0)
Kasutaja ikoon ID88424
Pakkuja profiil Väike nool paremale
600€ Sisaldab KM Sisaldab KM 29.09.2025 Vestlus (0)
Kasutaja ikoon ID93536
Pakkuja profiil Väike nool paremale
250€ Ikoon kell Ei ole KMKR Ei ole KMKR 29.09.2025 Vestlus (9)

Pakkumise kirjeldus:

Tere,

Pakkumine soovitud töödele.
Tööde ketvus kuni 2 päeva.
Tööde teostamine teile sobival ajal.

Head!

Hannes

Kasutaja ikoon ID53707
Pakkuja profiil Väike nool paremale
485€ Ei ole KMKR Ei ole KMKR 30.09.2025 Vestlus (0)

Pakkumise kirjeldus:

Pakkumine Ikea köögimööbli kokkupanek ja paigaldus, Nõudepesumasin
* Külmkapp
* Õhupuhasti
* Ahi
* Induktsioonpliit
* Led valgustiriba ühendamine pistikuga vooluvõrku. Lisatööd kokkuleppel

Kasutaja ikoon ID84914
Pakkuja profiil Väike nool paremale
850€ Ei ole KMKR Ei ole KMKR 01.10.2025 Vestlus (0)

Pakkumise kirjeldus:

Tere!
Pakkumine sisaldab kõiki vajalikke töid ja abimaterjale, et köök saaks korralikult kokku ja paika.

Kui siiski tekivad lisatööd, nt pistikupesa paigaldamine, siis lisandub 30 eur/tund.

Kasutaja ikoon ID77266
Pakkuja profiil Väike nool paremale
690€ Sisaldab KM Sisaldab KM 01.10.2025 Vestlus (8)
Kasutaja ikoon ID94029
Pakkuja profiil Väike nool paremale
400€ Ei ole KMKR Ei ole KMKR 01.10.2025 Vestlus (0)

Pakkumise kirjeldus:

Tere.
Pakkumise hinna sees:
*Mööbli kokkupanek
*Mööbli paigaldus
*Tehnika paigaldus+seadmete ühendamine vooluvõrku
*Vee ja kanalisatsiooni ühendus
*Silikoonitamine

Tööde teostamine võtaks aega 1,5 päeva

Küsimused hanke korraldajale

Küsimus: private ID72269   28.09.2025 21:19
Tere,

Palun täpsustada millal soovite tööde teostust?

Parimat,

Olev

Teavita reeglite rikkumisest

Korraldaja vastus: 28.09.2025 21:23

Tere

Tänud küsimuse eest!

Paigaldus jäàks oktoobri algusesse, tõenäoliselt alates 6 oktoobrt, kui kõik mööbel laos olemas on. Hetkel veel planeerin, plaan ara osta järgneva nädala jooksul (siis peaks korteris ka remont lõppema).

Krista

Teavita reeglite rikkumisest

Küsimus: private ID72269   28.09.2025 21:26
Tere,

Tänan täiendava info eest.
Saaksin pakkuda paigaldust alates 13.10, kui selline periood sobib teen omapoolse pakkumise.

Parimat,

Olev

Teavita reeglite rikkumisest

Korraldaja vastus: 28.09.2025 21:27

Tere

Ka see aeg sobiks jah.

Krista

Teavita reeglite rikkumisest

Lisa küsimus

Lisa küsimus

Minu pakkumine

Reeglid

Pakkumise kirjelduse väli on mõeldud pakkumise detailsemaks lahti kirjutamiseks. Pikema teksti mugavaks sisestamiseks klikkige kasti paremal ülaservas oleval ikoonil.
Pakkumist tehes on keelatud postitada enda kontaktandmeid (nimi, telefon, aadress jne). Me jälgime ja analüüsime pakkumisi, et vältida pettuseid ja reeglite rikkumisi.
Rikkumise puhul kasutajakonto blokeeritakse.

 

Teisi töid samas valdkonnas

Valdkonnas "Siseviimistlustööd" on 24 aktiivset tööd

Korteri remont

Asukoht: Harjumaa, Muraste
Aega jäänud: 2p 15h
Tehtud pakkumisi: 15

no-img Pilt puudub

Laminaatparketi paigaldus

Asukoht: Harjumaa, Tallinn
Aega jäänud: 4p 15h
Tehtud pakkumisi: 7

Vanemad teated:

Vaata kõiki

Sellel veebilehel kasutatakse küpsiseid. Kasutamist jätkates nõustute küpsiste kasutamisega.

Sulge
 
Minu pakkumine

Reeglid

Pakkumise kirjelduse väli on mõeldud pakkumise detailsemaks lahti kirjutamiseks. Pikema teksti mugavaks sisestamiseks klikkige kasti paremal ülaservas oleval ikoonil.
Pakkumist tehes on keelatud postitada enda kontaktandmeid (nimi, telefon, aadress jne). Me jälgime ja analüüsime pakkumisi, et vältida pettuseid ja reeglite rikkumisi.
Rikkumise puhul kasutajakonto blokeeritakse.