+ Lisa oma töö      

Otsid ehitajat "Vundamenditööd" valdkonnast?

Parima pakkumise ja teostaja leidmiseks lisa oma töö.

Plaatvundament

ID 123855

1048 vaatamist

Prindi

  • check Pakkumiste tegemine
    kuni 21.09.2025
  • check Võitja valik kuni
    28.09.2025
  • 3 Töö teostamine
    ja hinnang
Hanke lõpp: P, 21. september, 2025
Maakond: Tartumaa
Muu asula: Luunja
Tööde lõpp: Kokkuleppel
Ehitusmaterjalid: Töö tegija poolt
Soovin pakkumisi: Summa kogu projektile

Töö sisu

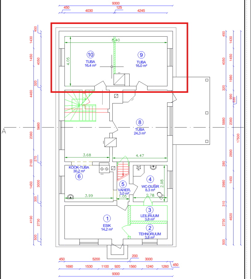
Tegemist vana maja renoveerimisega ja vaja valada plaatvundament vana osaga kokku. Väljakaeve tehtud. Planeeritav plaatvundament sokkel L - 400 koos kommunikatsioonidega (kanal, vesi, põrandaküte). I korruse plaanil punasega märgitud osa on olemasolev ja teine osa vaja uus valada.

Tööd peaksid algama hiljemalt 23.09.2025.

Pildid, video ja failid

Hanke korraldaja: eraisik ID88465

Pakkumised

Pakkumisi kokku: 1

Ettevõte Summa Käibemaks Lisatud Vestlus
Kasutaja ikoon ID52629
Pakkuja profiil Väike nool paremale
15 500€ KM lisandub KM lisandub 21.09.2025 Vestlus (24)

Pakkumise kirjeldus:

Tere

Hinnapakkumine sisaldab töö+materjal:
1) Aluspinna tagasitäide liiv/killustik
2)Kanalisatsiooni ja veetoude paigaldus
3)L-ploki ja soojustuse paigaldus Eps 100 3 kihti
3) Kile paigaldus
5) Armatuuri 8 mm paigaldus koos kanduritega
6) Põrandakütte torude ja kollektori paigaldus
7) Betoonpõranda valamine
8) Betoonpõranda lihvimine

Pa ... Rohkem

Küsimused hanke korraldajale

Hanke korraldajale ei ole veel küsimusi esitatud.

Lisa küsimus

Lisa küsimus

Minu pakkumine

Reeglid

Pakkumise kirjelduse väli on mõeldud pakkumise detailsemaks lahti kirjutamiseks. Pikema teksti mugavaks sisestamiseks klikkige kasti paremal ülaservas oleval ikoonil.
Pakkumist tehes on keelatud postitada enda kontaktandmeid (nimi, telefon, aadress jne). Me jälgime ja analüüsime pakkumisi, et vältida pettuseid ja reeglite rikkumisi.
Rikkumise puhul kasutajakonto blokeeritakse.

 

Vanemad teated:

Vaata kõiki

Sellel veebilehel kasutatakse küpsiseid. Kasutamist jätkates nõustute küpsiste kasutamisega.

Sulge
 
Minu pakkumine

Reeglid

Pakkumise kirjelduse väli on mõeldud pakkumise detailsemaks lahti kirjutamiseks. Pikema teksti mugavaks sisestamiseks klikkige kasti paremal ülaservas oleval ikoonil.
Pakkumist tehes on keelatud postitada enda kontaktandmeid (nimi, telefon, aadress jne). Me jälgime ja analüüsime pakkumisi, et vältida pettuseid ja reeglite rikkumisi.
Rikkumise puhul kasutajakonto blokeeritakse.