+ Lisa oma töö      

Otsid ehitajat "Üldehitus" valdkonnast?

Parima pakkumise ja teostaja leidmiseks lisa oma töö.

Korteri renoveerimine 45m2

ID 123623

1147 vaatamist

Prindi

  • check Pakkumiste tegemine
    kuni 22.09.2025
  • check Võitja valik kuni
    13.10.2025
  • 3 Töö teostamine
    ja hinnang
Hanke lõpp: E, 22. september, 2025
Maakond: Harjumaa
Linn: Tallinn
Tööde lõpp: Kokkuleppel
Ehitusmaterjalid: Töö tegija poolt
Soovin pakkumisi: Summa kogu projektile

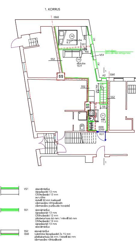
Töö sisu

Põhja-Tallinnas korteri (43.5m2) renoveerimine vastavalt ehitusprojektile (ehitusluba olemas).
Korter asub 1 korrusel.

1) Vahelae/Põrand (11.5m2) ehitamine puitkarkassil + 28m2 vesipõrandaküte koos kipsivaluga
2) -1 korruse põranda ja seinte (30cm) hüdroisolatsioonvõõp ja teip
3) Kipsitööd Seinad+laed 1 korrusel ja -1 korrusel
4) Siseviimistlus
5) Kipskarkassil vaheseinte ehitus (1 ja -1 korrusel) + 5m2 fiboblokkidest vahesein (-1 korrusel)
6) -1 korrusel 3m2 vannitoa katmine mikrotsemendiga seinad + põrandad
7) -1 korrusel panipaik ja tuba mikrotsement põrandale (12m2)
8) Siseviimistlus
9) kanal + vesi + dušinurga 2m2 loodimine ja valamine
10) Kaabeldus ja elekter

Pildid, video ja failid

Hanke korraldaja: eraisik ID43148

Pakkumised

Pakkumisi kokku: 4

Ettevõte Summa Käibemaks Lisatud Vestlus
Kasutaja ikoon ID3527
Pakkuja profiil Väike nool paremale
40 000€ KM lisandub KM lisandub 15.09.2025 Vestlus (10)
Kasutaja ikoon ID93793
Pakkuja profiil Väike nool paremale
15 900€ KM lisandub KM lisandub 16.09.2025 Vestlus (11)

Pakkumise kirjeldus:

Tere!
Hind sisaldab kõik ehitustööd (materjalide hind ei ole sees).
Materjalide hind saame teile öelda objekti külastamise pärast.
Kõikidele töödele anname 2-aastane garantii.

Kasutaja ikoon ID8356
Pakkuja profiil Väike nool paremale
24 900€ KM lisandub KM lisandub 19.09.2025 Vestlus (0)

Pakkumise kirjeldus:

Ei sisalda parketi, trepi, välisukse, sanitaartehnika, valgustite, pistikupesade-lülitite ja mööbli hinda. Tasumine vastavalt maksegraafikule.

Kasutaja ikoon ID28223
Pakkuja profiil Väike nool paremale
18 270€ Sisaldab KM Sisaldab KM 20.09.2025 Vestlus (0)

Pakkumise kirjeldus:

Hinnas kõik alus-ja abimaterjalid.
Toru-ja elektrimaterjalid.
Värvid ja mikrotsement.
Tellija hangib parketi,san-tehniuka

Lugupidamisega

Küsimused hanke korraldajale

Hanke korraldajale ei ole veel küsimusi esitatud.

Lisa küsimus

Lisa küsimus

Minu pakkumine

Reeglid

Pakkumise kirjelduse väli on mõeldud pakkumise detailsemaks lahti kirjutamiseks. Pikema teksti mugavaks sisestamiseks klikkige kasti paremal ülaservas oleval ikoonil.
Pakkumist tehes on keelatud postitada enda kontaktandmeid (nimi, telefon, aadress jne). Me jälgime ja analüüsime pakkumisi, et vältida pettuseid ja reeglite rikkumisi.
Rikkumise puhul kasutajakonto blokeeritakse.

 

Teisi töid samas valdkonnas

Valdkonnas "Üldehitus" on 32 aktiivset tööd

Kuuri lammutus

Asukoht: Pärnumaa
Aega jäänud: 3p
Tehtud pakkumisi: 6

Põrandakütte torustiku ja kollektori paigaldus.

Asukoht: Harjumaa, Kurkse
Aega jäänud: 16p
Tehtud pakkumisi: 4

Vanemad teated:

Vaata kõiki

Sellel veebilehel kasutatakse küpsiseid. Kasutamist jätkates nõustute küpsiste kasutamisega.

Sulge
 
Minu pakkumine

Reeglid

Pakkumise kirjelduse väli on mõeldud pakkumise detailsemaks lahti kirjutamiseks. Pikema teksti mugavaks sisestamiseks klikkige kasti paremal ülaservas oleval ikoonil.
Pakkumist tehes on keelatud postitada enda kontaktandmeid (nimi, telefon, aadress jne). Me jälgime ja analüüsime pakkumisi, et vältida pettuseid ja reeglite rikkumisi.
Rikkumise puhul kasutajakonto blokeeritakse.