+ Lisa oma töö      

Otsid ehitajat "Vundamenditööd" valdkonnast?

Parima pakkumise ja teostaja leidmiseks lisa oma töö.

Plaatvundamendi ehitus

ID 123003

743 vaatamist

Prindi

  • check Pakkumiste tegemine
    kuni 08.09.2025
  • check Võitja valik kuni
    15.09.2025
  • 3 Töö teostamine
    ja hinnang
Hanke lõpp: E, 8. september, 2025
Maakond: Tartumaa
Muu asula: Veibri
Tööde lõpp: Kokkuleppel
Ehitusmaterjalid: Töö tegija poolt
Soovin pakkumisi: Tüki- või ühikuhinda

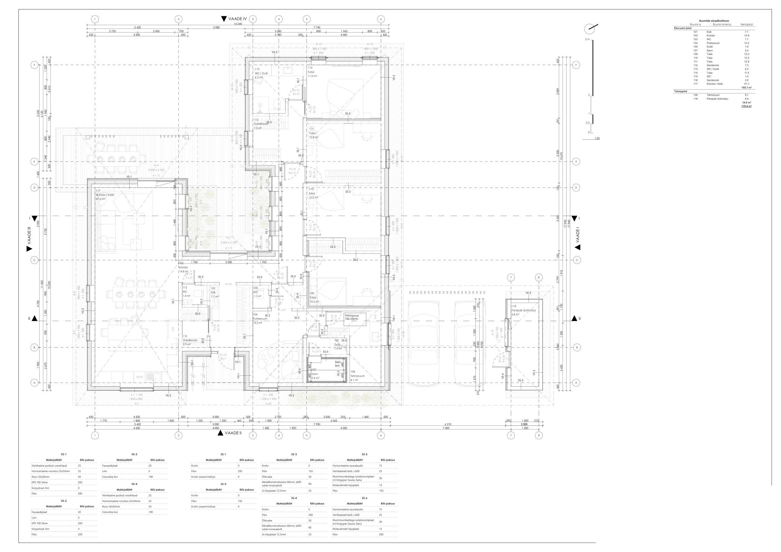
Töö sisu

Pakume madalvundamendi ehitust ühepereelamule, koos kogu vajaliku tehnovõrkude ja ettevalmistustöödega vastavalt projektile.

Tööde maht sisaldab:

250 mm paksuse tihendatud liivapadja valmistamist koos tihendustasemega k=0,95,

niiskustõkke PE-kile paigaldamist paksusega 0,2 mm,

300 mm paksuse kolmekihilise XPS isolatsiooniplaadi paigaldamist, λ=0,037 W/mK,

3 klassi geotekstiili paigaldamist,

monoliitse raudbetoonplaadi valamist, paksusega 100 mm, C25/30 betoon ning d8 armeerimine sammuga 150 mm,

vesipõrandakütte torustiku (PEX-a Ø16x2 mm) paigaldamist betoonplaadi sisse,

maakütte kontuuri ehitamist horisontaalse maakollektoriga torude paigaldus sügavusele ca 1 m ja minimaalse vahekaugusega 1 m,

vee- ja kanalisatsioonisüsteemide ühendamist hoonele: tsentraalne veevärk PE100RC 32 mm torustikuga toodud veemõõdusõlmeni sügavusel 1,8 m, PVC kanalisatsioonitorustik kuni 110 mm läbimõõduga,

elektri- ja nõrkvoolutöid vastavalt projektile,

drenaaži rajamist hoone ümber ja selle ühendamist olemasolevasse kanalisatsiooni- või drenaažisüsteemi,

ehituskrundi ettevalmistustööd, pinnase väljakaevamist ja täitematerjali paigaldust, pinnase tihendamist vastavalt projekteeritud nõuetele,

radonitõkke paigaldamist (DELTA-Radonsperre),

nõuete ja standardite järgimist, kvaliteetseid tööde tähtaegu ja vastutust ehituse käigus.

Pakume koostööd professionaalsetele ehitusettevõtjatele, kes tagavad tööde täpse ja kvaliteetse teostamise.

Palume esitada detailse eelarve vundamendi ehitusetappide ning seotud ettevalmistus- ja tehnosüsteemide tööde kohta objekti jaoks.

Tööde algus september 2025.

Pildid, video ja failid

Hanke korraldaja: eraisik ID93535

Pakkumised

Pakkumisi kokku: 0

Küsimused hanke korraldajale

Küsimus: private ID93499   06.09.2025 08:19
Tere. Kas ainult maaküttele saab pakkumist koostada? Oleme selle ala ettevõte. Hiljem saab meilt soovi korral soojuspumba ja paigalduse samuti.

Teavita reeglite rikkumisest

Korraldaja vastus: 06.09.2025 10:36

Tere
Tänan pakkumise eest, kuid praegu soovime pakkumist ainult fundamendile.

Teavita reeglite rikkumisest

Küsimus: private ID33769   06.09.2025 09:21
Tere.

Et teha detailset pakkumist, on vaja kogu projektiga tutvuda k.a eriosad. Samuti oleks kasu mahutabelist.

Eeldan, et kõik eriosad ja projektid on kooskõlastatud?

Praeguse info põhjal saab teha indikatiivse pakkumise.

Teavita reeglite rikkumisest

Korraldaja vastus: 06.09.2025 10:38

Tere
Praegu on olemas ainult eelprojekt. Palun tehke pakkumise selle põhjal.

Teavita reeglite rikkumisest

Lisa küsimus

Lisa küsimus

Minu pakkumine

Reeglid

Pakkumise kirjelduse väli on mõeldud pakkumise detailsemaks lahti kirjutamiseks. Pikema teksti mugavaks sisestamiseks klikkige kasti paremal ülaservas oleval ikoonil.
Pakkumist tehes on keelatud postitada enda kontaktandmeid (nimi, telefon, aadress jne). Me jälgime ja analüüsime pakkumisi, et vältida pettuseid ja reeglite rikkumisi.
Rikkumise puhul kasutajakonto blokeeritakse.

 

Vanemad teated:

Vaata kõiki

Sellel veebilehel kasutatakse küpsiseid. Kasutamist jätkates nõustute küpsiste kasutamisega.

Sulge
 
Minu pakkumine

Reeglid

Pakkumise kirjelduse väli on mõeldud pakkumise detailsemaks lahti kirjutamiseks. Pikema teksti mugavaks sisestamiseks klikkige kasti paremal ülaservas oleval ikoonil.
Pakkumist tehes on keelatud postitada enda kontaktandmeid (nimi, telefon, aadress jne). Me jälgime ja analüüsime pakkumisi, et vältida pettuseid ja reeglite rikkumisi.
Rikkumise puhul kasutajakonto blokeeritakse.