+ Lisa oma töö      

Otsid ehitajat "Siseviimistlustööd" valdkonnast?

Parima pakkumise ja teostaja leidmiseks lisa oma töö.

Korteri sanitaarremont

ID 122993

761 vaatamist

Prindi

  • check Pakkumiste tegemine
    kuni 08.09.2025
  • check Võitja valik kuni
    15.09.2025
  • 3 Töö teostamine
    ja hinnang
Hanke lõpp: E, 8. september, 2025
Maakond: Harjumaa
Muu asula: Jüri
Tööde lõpp: Kokkuleppel
Ehitusmaterjalid: Töö tellija poolt
Soovin pakkumisi: Summa kogu projektile

Töö sisu

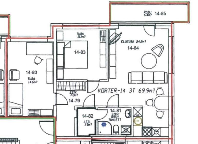
Soovime teostada 2006 a valminud kortermajas sanitaarremonti. Vannituba on eelmisel aastal renoveeritud ning samuti on eelmisel aastal värvitud koridori-elutoa-köögi lagi, neid pole vaja teha.

Põrandapinda remonditaval osal 57,7m2.
Lagede värvimise pinda sellest 25,7 m2
Ehk siis, vahetada sooviks korteri parketi. Eelistan LVT-liimitavat, 1-lipiline. Vajaliku parketi ostan ise. Olen avatud ka tegijapoolsetele soovitustele materjali osas.
Seinad üle värvida, kõik toad samas heledas toonis. Värvid ostan ise.
Uksed vahetada (3 tk)
Aknalauad vahetada (4tk)
Uued põrandaliistud paigaldada.
Kahe magamistoa laed värvida.
Manusena on kaasa lisatud korteri põrandaplaan.

Selleks, et saaksin edasi minna, on mul vaja pangale esitamiseks hindamispakkumist. Enne tööde algust plaanin vana köögimööbli maha müüa, sest peale tööde lõppu tellin uue.

Pildid, video ja failid

Hanke korraldaja: eraisik ID88679

Pakkumised

Pakkumisi kokku: 3

Ettevõte Summa Käibemaks Lisatud Vestlus
Kasutaja ikoon ID3527
Pakkuja profiil Väike nool paremale
3 900€ KM lisandub KM lisandub 06.09.2025 Vestlus (0)
Kasutaja ikoon ID92442
Pakkuja profiil Väike nool paremale
3 650€ Ei ole KMKR Ei ole KMKR 08.09.2025 Vestlus (0)

Pakkumise kirjeldus:

Kasutame kvaliteetseid Vivacolor tooteid, sest just need tooted on endid aastate jooksul tõestanud.

Kasutaja ikoon ID70952
Pakkuja profiil Väike nool paremale
3 600€ KM lisandub KM lisandub 08.09.2025 Vestlus (0)

Pakkumise kirjeldus:

Tere,
Saame selle töö kiirelt ja kvaliteetselt ära teha.
Hetkel hind on indikatiivne kuna oleks vaja natuke täpsemat infot ning objektiga ülevaatust.Väike muutus võib olla + - kui kõik ülevaadatud ja Teie soovid ära kuulatud.
Kõigile töödele anname garantii 2 aastat ja materjalid saame ka ise tuua väga hea hinnaga.

Lugupidamisega

Küsimused hanke korraldajale

Hanke korraldajale ei ole veel küsimusi esitatud.

Lisa küsimus

Lisa küsimus

Minu pakkumine

Reeglid

Pakkumise kirjelduse väli on mõeldud pakkumise detailsemaks lahti kirjutamiseks. Pikema teksti mugavaks sisestamiseks klikkige kasti paremal ülaservas oleval ikoonil.
Pakkumist tehes on keelatud postitada enda kontaktandmeid (nimi, telefon, aadress jne). Me jälgime ja analüüsime pakkumisi, et vältida pettuseid ja reeglite rikkumisi.
Rikkumise puhul kasutajakonto blokeeritakse.

 

Teisi töid samas valdkonnas

Valdkonnas "Siseviimistlustööd" on 24 aktiivset tööd

Korteri remont

Asukoht: Harjumaa, Muraste
Aega jäänud: 2p 14h
Tehtud pakkumisi: 15

no-img Pilt puudub

Laminaatparketi paigaldus

Asukoht: Harjumaa, Tallinn
Aega jäänud: 4p 14h
Tehtud pakkumisi: 8

Vanemad teated:

Vaata kõiki

Sellel veebilehel kasutatakse küpsiseid. Kasutamist jätkates nõustute küpsiste kasutamisega.

Sulge
 
Minu pakkumine

Reeglid

Pakkumise kirjelduse väli on mõeldud pakkumise detailsemaks lahti kirjutamiseks. Pikema teksti mugavaks sisestamiseks klikkige kasti paremal ülaservas oleval ikoonil.
Pakkumist tehes on keelatud postitada enda kontaktandmeid (nimi, telefon, aadress jne). Me jälgime ja analüüsime pakkumisi, et vältida pettuseid ja reeglite rikkumisi.
Rikkumise puhul kasutajakonto blokeeritakse.