+ Lisa oma töö      

Otsid ehitajat "Ventilatsioonitööd" valdkonnast?

Parima pakkumise ja teostaja leidmiseks lisa oma töö.

Hange on lõppenud!

Võitjaks osutus kasutaja ID 76235

Eramu ventilatsiooniprojekti koostamine

ID 122895

763 vaatamist

Prindi

  • check Pakkumiste tegemine
    kuni 06.09.2025
  • check Võitja valik kuni
    13.09.2025
  • 3 Töö teostamine
    ja hinnang
Hanke lõpp: L, 6. september, 2025
Maakond: Pärnumaa
Tööde lõpp: Kokkuleppel
Ehitusmaterjalid: Töö tellija poolt
Soovin pakkumisi: Summa kogu projektile

Töö sisu

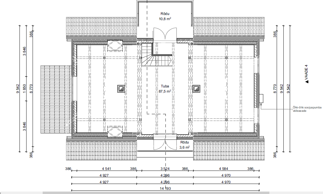
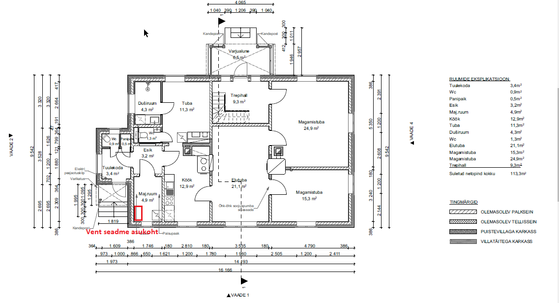
Palun pakkumist eramu ventilatsiooniprojekti koostamiseks. Soovin kasutada olemasolevat seadet mille kirjeldus on lisatud failide hulgas.

Pildid, video ja failid

Hanke korraldaja: eraisik ID93486

Pakkumised

Pakkumisi kokku: 3

Ettevõte Summa Käibemaks Lisatud Vestlus
Kasutaja ikoon ID87046
Pakkuja profiil Väike nool paremale
450€ KM lisandub KM lisandub 04.09.2025 Vestlus (0)

Pakkumise kirjeldus:

Ventilatsiooniprojekt sisalsab plaani jooniseid, seletuskirja, spetsifikatsiooni ja insener tase 7 kinnitust.

Kasutaja ikoon ID76235
Pakkuja profiil Väike nool paremale
425€ KM lisandub KM lisandub 06.09.2025 Vestlus (0)

Pakkumise kirjeldus:

Ventilatsiooni joonised, torustiku ja komponentide dimensioneerimine, materjalide spetsifikatsioon, seletuskiri.

Kasutaja ikoon ID66770
Pakkuja profiil Väike nool paremale
490€ Sisaldab KM Sisaldab KM 06.09.2025 Vestlus (0)

Pakkumise kirjeldus:

2
Ventilatsiooni projekteerimine
ID 109483

Erahange Projekteerimine
check
check
3Töö teostamine
ja hinnang
Hanke lõpp: T, 11. veebruar, 2025
Maakond: Harjumaa
Tööde lõpp: Kokkuleppel
Ehitusmaterjalid: Töö tellija poolt
Soovin pakkumisi: Summa kogu projektile
Teavita reeglite rikkumisest

Töö sisu
Soovin kahekorruselisele eramule ( ... Rohkem

Küsimused hanke korraldajale

Hanke korraldajale ei ole veel küsimusi esitatud.

Lisa küsimus

Lisa küsimus

Minu pakkumine

Reeglid

Pakkumise kirjelduse väli on mõeldud pakkumise detailsemaks lahti kirjutamiseks. Pikema teksti mugavaks sisestamiseks klikkige kasti paremal ülaservas oleval ikoonil.
Pakkumist tehes on keelatud postitada enda kontaktandmeid (nimi, telefon, aadress jne). Me jälgime ja analüüsime pakkumisi, et vältida pettuseid ja reeglite rikkumisi.
Rikkumise puhul kasutajakonto blokeeritakse.

 

Teisi töid samas valdkonnas

Valdkonnas "Ventilatsioonitööd" on 3 aktiivset tööd

Eramaja ventilatsioonitööd

Asukoht: Tartumaa, Soinaste
Aega jäänud: 4p 12h
Tehtud pakkumisi: 1

no-img Pilt puudub

Ventilatsiooni paigaldamine

Asukoht: Tartumaa, Tartu
Aega jäänud: 1p 12h
Tehtud pakkumisi: 0

Vanemad teated:

Vaata kõiki

Sellel veebilehel kasutatakse küpsiseid. Kasutamist jätkates nõustute küpsiste kasutamisega.

Sulge
 
Minu pakkumine

Reeglid

Pakkumise kirjelduse väli on mõeldud pakkumise detailsemaks lahti kirjutamiseks. Pikema teksti mugavaks sisestamiseks klikkige kasti paremal ülaservas oleval ikoonil.
Pakkumist tehes on keelatud postitada enda kontaktandmeid (nimi, telefon, aadress jne). Me jälgime ja analüüsime pakkumisi, et vältida pettuseid ja reeglite rikkumisi.
Rikkumise puhul kasutajakonto blokeeritakse.