+ Lisa oma töö      

Otsid ehitajat "Siseviimistlustööd" valdkonnast?

Parima pakkumise ja teostaja leidmiseks lisa oma töö.

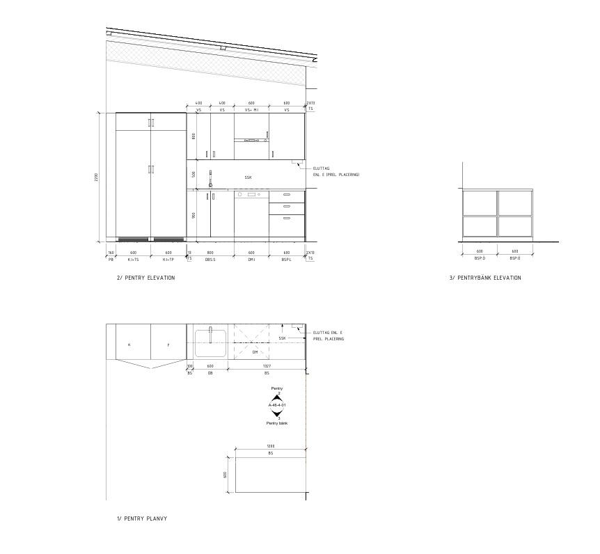
Köögimööbli tootmine

ID 122376

678 vaatamist

Prindi

  • check Pakkumiste tegemine
    kuni 29.08.2025
  • check Võitja valik kuni
    05.09.2025
  • 3 Töö teostamine
    ja hinnang
Hanke lõpp: R, 29. august, 2025
Maakond: Jõgevamaa
Linn: Põltsamaa
Tööde lõpp: Kokkuleppel
Ehitusmaterjalid: Töö tellija poolt
Soovin pakkumisi: Summa kogu projektile

Pildid, video ja failid

Hanke korraldaja: eraisik ID93251

Pakkumised

Pakkumisi kokku: 0

Küsimused hanke korraldajale

Küsimus: private ID93253   26.08.2025 18:15
Tere, ainult jooniste põhjal ei ole võimalik hinnapakkumist teha. Siin on mitu küsimust. Mis materjali eelistus teil on,värv, tasapinna materjal, sahtlite lisad nagu nt. soft close jne . Võibolla on jagada näidiseks mõnda kööki.

Parimat,

Teavita reeglite rikkumisest

Korraldaja vastus:
Hanke korraldaja ei ole küsimusele veel vastanud

Küsimus: private ID71759   27.08.2025 07:09
Eelmine küsimus on täitsa õigustatud. Ootame sama infot. Tervitades

Teavita reeglite rikkumisest

Korraldaja vastus:
Hanke korraldaja ei ole küsimusele veel vastanud

Lisa küsimus

Lisa küsimus

Minu pakkumine

Reeglid

Pakkumise kirjelduse väli on mõeldud pakkumise detailsemaks lahti kirjutamiseks. Pikema teksti mugavaks sisestamiseks klikkige kasti paremal ülaservas oleval ikoonil.
Pakkumist tehes on keelatud postitada enda kontaktandmeid (nimi, telefon, aadress jne). Me jälgime ja analüüsime pakkumisi, et vältida pettuseid ja reeglite rikkumisi.
Rikkumise puhul kasutajakonto blokeeritakse.

 

Teisi töid samas valdkonnas

Valdkonnas "Siseviimistlustööd" on 24 aktiivset tööd

Korteri remont

Asukoht: Harjumaa, Muraste
Aega jäänud: 2p 14h
Tehtud pakkumisi: 15

no-img Pilt puudub

Laminaatparketi paigaldus

Asukoht: Harjumaa, Tallinn
Aega jäänud: 4p 14h
Tehtud pakkumisi: 8

Vanemad teated:

Vaata kõiki

Sellel veebilehel kasutatakse küpsiseid. Kasutamist jätkates nõustute küpsiste kasutamisega.

Sulge
 
Minu pakkumine

Reeglid

Pakkumise kirjelduse väli on mõeldud pakkumise detailsemaks lahti kirjutamiseks. Pikema teksti mugavaks sisestamiseks klikkige kasti paremal ülaservas oleval ikoonil.
Pakkumist tehes on keelatud postitada enda kontaktandmeid (nimi, telefon, aadress jne). Me jälgime ja analüüsime pakkumisi, et vältida pettuseid ja reeglite rikkumisi.
Rikkumise puhul kasutajakonto blokeeritakse.