+ Lisa oma töö      

Otsid ehitajat "Ehitusekspertiis" valdkonnast?

Parima pakkumise ja teostaja leidmiseks lisa oma töö.

Hange on lõppenud!

Võitjaks osutus kasutaja ID 86907

Maja kolmanda korruse kandevõime ja uue küttesüsteemi eksperthinnang/ekspertiis

ID 122182

858 vaatamist

Prindi

  • check Pakkumiste tegemine
    kuni 30.08.2025
  • check Võitja valik kuni
    06.09.2025
  • 3 Töö teostamine
    ja hinnang
Hanke lõpp: L, 30. august, 2025
Maakond: Harjumaa
Linn: Tallinn
Tööde lõpp: Kokkuleppel
Ehitusmaterjalid: Töö tegija poolt
Soovin pakkumisi: Summa kogu projektile

Töö sisu

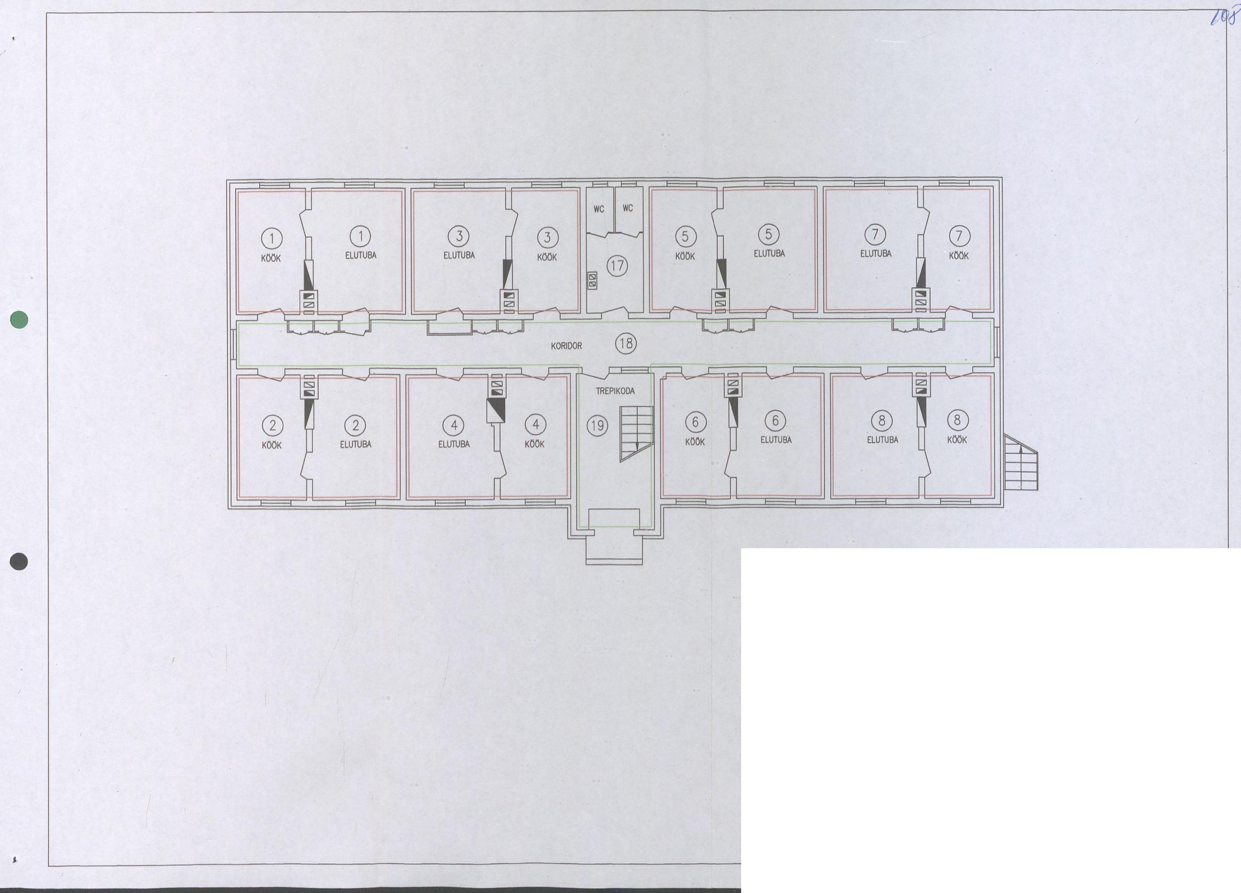
KÜ kaalub maja pööningukorruse välja arendamist, et selle arvelt maja korda teha.

Esimese teemana oleks selle jaoks eelnevalt vaja eksperthinnangut maja kandevõime kohta (ehk kas kannatab kolmandat korrust) ning vajadusel soovitusi, kuidas kandevõimet vajamineval määral tõsta.

Seejuures oleks vaja veel teada katuse tõstmise ja rajatavate elupindadele kehtivad ehitustehnilised piirangud (s.o tekkiva kasutatava ruumi pind). Samuti oleks vaja teada igasuguste muude tööde-piirangute kohta, millega peaks arvestama.

Teise teemana huvitab ekspertarvamus majale uue küttesüsteemi rajamise osas. Täpsemalt on mõte maja esimese korruse ühise wc asemele rajada kas gaasikatlamaja või õhk-vesi-soojuspumba põhine küttesüsteem, vastavalt kumb on siis võimalik ja kuluefektiivsem.

Kolmanda teemana huvitab, kas maja vundamenti oleks võimalik tõsta (hetkel osaliselt madalvundament) ning kuidas seda peaks tegema.

Tegemist on puitmajaga (puitsõrestik). Maja on muinsuskaitse vööndis, kuigi ise ei ole muinsuskaitse all. Esialgsed muinsuskaitse juhised on saadud, need lubavad kolmanda korruse rajamist. Tänava poole on lubatud rajada väiksemad vintskapid ja hoovi poole suuremad (sama suuri kui ainuke olemasolev). Täpsemaid juhised saan hanke võitjaga jagada.

Mõned teemakohased joonised manuses.

Pildid, video ja failid

Hanke korraldaja: ettevõte ID84293

Pakkumised

Pakkumisi kokku: 3

Ettevõte Summa Käibemaks Lisatud Vestlus
Kasutaja ikoon ID35960
Pakkuja profiil Väike nool paremale
2 900€ Sisaldab KM Sisaldab KM 24.08.2025 Vestlus (0)

Pakkumise kirjeldus:

Tere

Hind on mida tellija tahab, teeme kõike.
2900.- hind on -teeme hinnangu:

Panen siia meie üldise nimekirja. Igal objektil on oma eripära, mis täpsustub kohapealse vaatluse käigus.

Nimekiri ei ole lõplik ning seda saab alati täiendada uute punktidega.
Iga punkti lõppu lisatakse hinnang vastava punkti kohta. Hinnang: lammutada, rekonst ... Rohkem

Kasutaja ikoon ID87262
Pakkuja profiil Väike nool paremale
2 600€ KM lisandub KM lisandub 25.08.2025 Vestlus (1)

Pakkumise kirjeldus:

Tere!


Hea meelega koostame Teile pakkumise, mis on järgmine:

I EELPROJEKT
- Digitaliseerime olemasoleva olukorra ja koostame eelprojekti vastavalt kehtivatele standarditele ja vajalikus mahus

- Meil on kogemus nii väiksemate kui ka suuremahuliste projektidega, millega saab tutvuda meie kodulehel. Omame ka MTRi registreeringut ja meie meeskonnas ... Rohkem

Kasutaja ikoon ID86907
Pakkuja profiil Väike nool paremale
500€ Sisaldab KM Sisaldab KM 25.08.2025 Vestlus (22)

Pakkumise kirjeldus:

Teenust pakub diplomeeritud ehitusinsener tase 7

Küsimused hanke korraldajale

Hanke korraldajale ei ole veel küsimusi esitatud.

Lisa küsimus

Lisa küsimus

Minu pakkumine

Reeglid

Pakkumise kirjelduse väli on mõeldud pakkumise detailsemaks lahti kirjutamiseks. Pikema teksti mugavaks sisestamiseks klikkige kasti paremal ülaservas oleval ikoonil.
Pakkumist tehes on keelatud postitada enda kontaktandmeid (nimi, telefon, aadress jne). Me jälgime ja analüüsime pakkumisi, et vältida pettuseid ja reeglite rikkumisi.
Rikkumise puhul kasutajakonto blokeeritakse.

 

Vanemad teated:

Vaata kõiki

Sellel veebilehel kasutatakse küpsiseid. Kasutamist jätkates nõustute küpsiste kasutamisega.

Sulge
 
Minu pakkumine

Reeglid

Pakkumise kirjelduse väli on mõeldud pakkumise detailsemaks lahti kirjutamiseks. Pikema teksti mugavaks sisestamiseks klikkige kasti paremal ülaservas oleval ikoonil.
Pakkumist tehes on keelatud postitada enda kontaktandmeid (nimi, telefon, aadress jne). Me jälgime ja analüüsime pakkumisi, et vältida pettuseid ja reeglite rikkumisi.
Rikkumise puhul kasutajakonto blokeeritakse.