+ Lisa oma töö      

Otsid ehitajat "Vundamenditööd" valdkonnast?

Parima pakkumise ja teostaja leidmiseks lisa oma töö.

Kahe lintvundamendi lõigu ehitus

ID 121773

1039 vaatamist

Prindi

  • check Pakkumiste tegemine
    kuni 31.08.2025
  • check Võitja valik kuni
    07.09.2025
  • 3 Töö teostamine
    ja hinnang
Hanke lõpp: P, 31. august, 2025
Maakond: Viljandimaa
Muu asula: Väluste
Tööde lõpp: Kokkuleppel
Ehitusmaterjalid: Töö tellija poolt
Soovin pakkumisi: Summa kogu projektile

Töö sisu

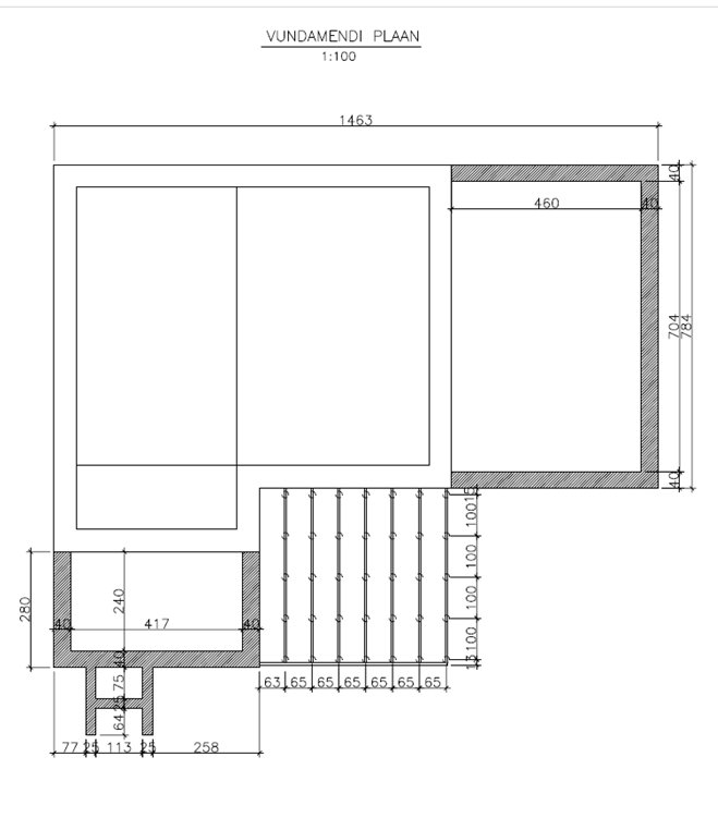
Vana talumaja ümberehitus: vaja rajada maja pikenduse + uue tuulekoja lintvundamendid (joonisel tähistatud tumeda joonega), mis vastavad tänapäevasele ehitusstandardile (aluse, niiskuskindlustus jmt olulised kvaliteedieeldused).

Vundament lihtne - plokkidest + hiljem kaetakse maakivi viiludega.

Näita ära nii töö kui materjali hind eraldi. Põhiline on töö.

Hindamiskriteeriumid on varasem vastav töökogemus + hind.

Pildid, video ja failid

Hanke korraldaja: eraisik ID38054

Pakkumised

Pakkumisi kokku: 2

Ettevõte Summa Käibemaks Lisatud Vestlus
Kasutaja ikoon ID17608
Pakkuja profiil Väike nool paremale
5 400€ Ei ole KMKR Ei ole KMKR 31.08.2025 Vestlus (1)

Pakkumise kirjeldus:

Tere. Pakkumine on tehtud töötasule. Materjalide osas tuleks kohapeal läbi arutada.
Parimat !

Kasutaja ikoon ID89838
Pakkuja profiil Väike nool paremale
4 620€ KM lisandub KM lisandub 31.08.2025 Vestlus (1)

Pakkumise kirjeldus:

Tere
Meie poolne esialgne Pakkumine vastavalt hanke sisus välja toodud informatsioonile.
Materjal töö tellija poolt.
Ennem võitja välja kuulutamist pannakse paika tööde teostamise aeg ning lepitakse kokku detailides. Lisaküsimuste korral kirjutage, vastame meeleldi.
Edukat hanget

Küsimused hanke korraldajale

Hanke korraldajale ei ole veel küsimusi esitatud.

Lisa küsimus

Lisa küsimus

Minu pakkumine

Reeglid

Pakkumise kirjelduse väli on mõeldud pakkumise detailsemaks lahti kirjutamiseks. Pikema teksti mugavaks sisestamiseks klikkige kasti paremal ülaservas oleval ikoonil.
Pakkumist tehes on keelatud postitada enda kontaktandmeid (nimi, telefon, aadress jne). Me jälgime ja analüüsime pakkumisi, et vältida pettuseid ja reeglite rikkumisi.
Rikkumise puhul kasutajakonto blokeeritakse.

 

Vanemad teated:

Vaata kõiki

Sellel veebilehel kasutatakse küpsiseid. Kasutamist jätkates nõustute küpsiste kasutamisega.

Sulge
 
Minu pakkumine

Reeglid

Pakkumise kirjelduse väli on mõeldud pakkumise detailsemaks lahti kirjutamiseks. Pikema teksti mugavaks sisestamiseks klikkige kasti paremal ülaservas oleval ikoonil.
Pakkumist tehes on keelatud postitada enda kontaktandmeid (nimi, telefon, aadress jne). Me jälgime ja analüüsime pakkumisi, et vältida pettuseid ja reeglite rikkumisi.
Rikkumise puhul kasutajakonto blokeeritakse.