+ Lisa oma töö      

Otsid ehitajat "Siseviimistlustööd" valdkonnast?

Parima pakkumise ja teostaja leidmiseks lisa oma töö.

WC, duširuumi ja saunaruumi ehitus

ID 121309

831 vaatamist

Prindi

  • check Pakkumiste tegemine
    kuni 16.08.2025
  • check Võitja valik kuni
    23.08.2025
  • 3 Töö teostamine
    ja hinnang
Hanke lõpp: L, 16. august, 2025
Maakond: Raplamaa
Muu asula: Purga
Tööde lõpp: Kokkuleppel
Ehitusmaterjalid: Töö tellija poolt
Soovin pakkumisi: Summa kogu projektile

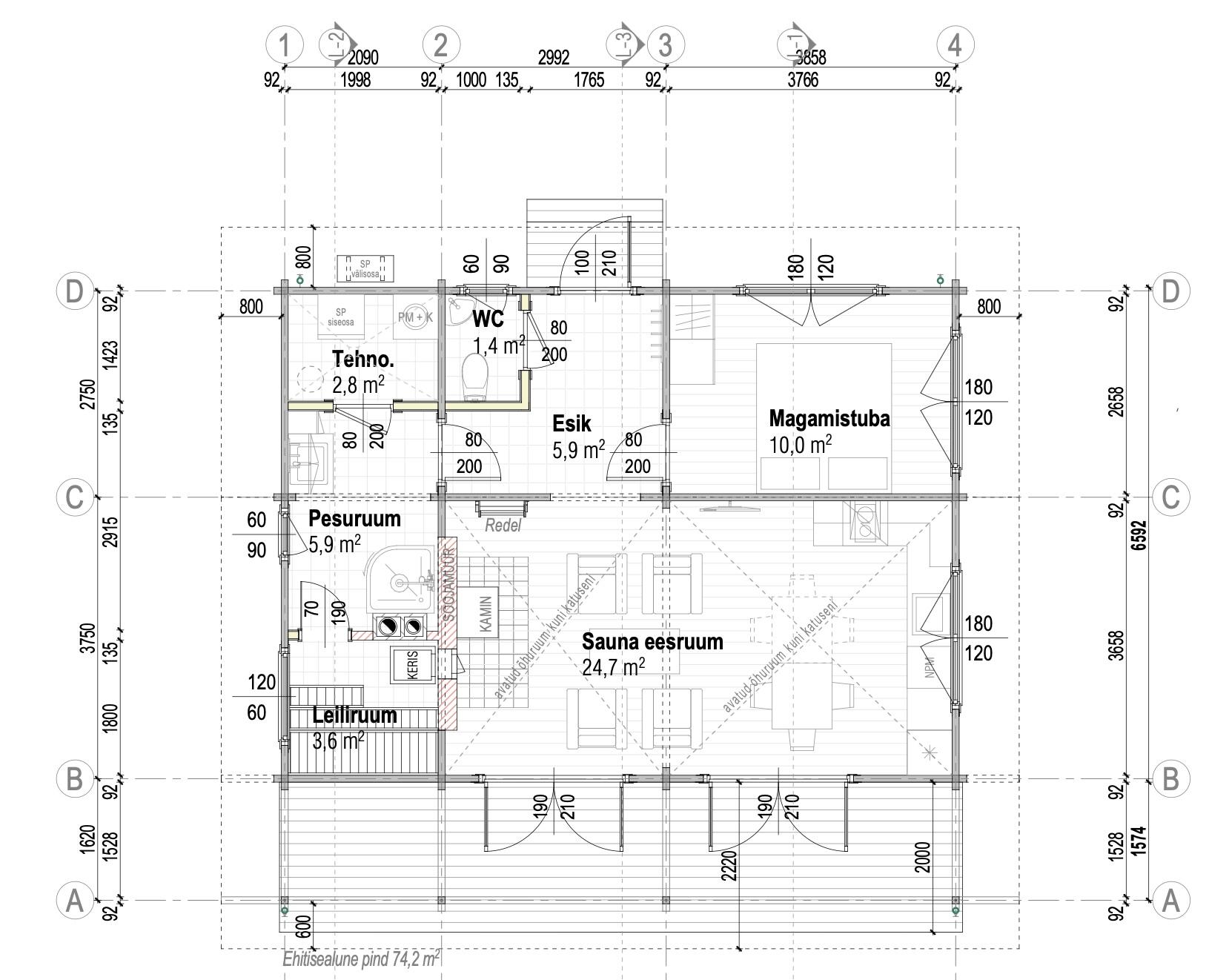
Töö sisu

Aastaringselt kasutatav väike maja, valmistatud liimpuitpalgist. Vaja teha siseviimistlus tualettruumi, duširuumi ja sauna.
Tualettruum:
- Paigaldada ja ehitada koht seinasisese WC jaoks.
- Plaatida WC-tagune sein.
- Paigaldada valamukapp ja valamu.

Duširuum:
- Teha hüdroisolatsioon jne ja plaatida seinad.
- Paigaldada klaassein.
- Paigaldada valamukapp ja valamu.
- Ehita ventilatsioon niiskuse väljatõmbeks (läbiviik: 92 mm liimpalk, 150 mm soojustus ja 20 mm voodrilaud).
- Duširuumi ja elutoa vahelisel fibo-seinal on vajumisvuuk — vaja leida ja teostada lahendus.

Saun:
- Ehitada lava ning paigaldada lava ja voodrilaud, ehitada eelnevad kihid, sh niiskustõke, peegelduskiht jne kogu konstrutsioon.
- Paigaldada LED-valgustid lava taha.
- Rajada väljatõmbe ventilatsioon.

Töötegijal peab olema eelnev kogemus, tehtud tööde referentsid.

Pildid, video ja failid

Hanke korraldaja: eraisik ID84159

Pakkumised

Pakkumisi kokku: 1

Ettevõte Summa Käibemaks Lisatud Vestlus
Kasutaja ikoon ID47288
Pakkuja profiil Väike nool paremale
5 355€ Sisaldab KM Sisaldab KM 10.08.2025 Vestlus (12)

Küsimused hanke korraldajale

Hanke korraldajale ei ole veel küsimusi esitatud.

Lisa küsimus

Lisa küsimus

Minu pakkumine

Reeglid

Pakkumise kirjelduse väli on mõeldud pakkumise detailsemaks lahti kirjutamiseks. Pikema teksti mugavaks sisestamiseks klikkige kasti paremal ülaservas oleval ikoonil.
Pakkumist tehes on keelatud postitada enda kontaktandmeid (nimi, telefon, aadress jne). Me jälgime ja analüüsime pakkumisi, et vältida pettuseid ja reeglite rikkumisi.
Rikkumise puhul kasutajakonto blokeeritakse.

 

Teisi töid samas valdkonnas

Valdkonnas "Siseviimistlustööd" on 24 aktiivset tööd

Korteri remont

Asukoht: Harjumaa, Muraste
Aega jäänud: 2p 4h
Tehtud pakkumisi: 16

Seinte värvimine

Asukoht: Harjumaa, Tallinn
Aega jäänud: 4h 52 min
Tehtud pakkumisi: 7

Vanemad teated:

Vaata kõiki

Sellel veebilehel kasutatakse küpsiseid. Kasutamist jätkates nõustute küpsiste kasutamisega.

Sulge
 
Minu pakkumine

Reeglid

Pakkumise kirjelduse väli on mõeldud pakkumise detailsemaks lahti kirjutamiseks. Pikema teksti mugavaks sisestamiseks klikkige kasti paremal ülaservas oleval ikoonil.
Pakkumist tehes on keelatud postitada enda kontaktandmeid (nimi, telefon, aadress jne). Me jälgime ja analüüsime pakkumisi, et vältida pettuseid ja reeglite rikkumisi.
Rikkumise puhul kasutajakonto blokeeritakse.