+ Lisa oma töö      

Otsid ehitajat "Sisevalgustus" valdkonnast?

Parima pakkumise ja teostaja leidmiseks lisa oma töö.

Hange on lõppenud!

Võitjaks osutus kasutaja ID 92789

Korraldaja hinnang tehtud tööle

 
5.0
24.10.2025
Töökiirus: 12345
Kvaliteet: 12345
Hind: 12345

Minu meelest oli super koostöö. Võttis küll aega, aga nüüd on selge arusaam, mis valgustid ja kuhu tulevad. - Kirill K.

Sisevalgustuse disain/projekteerimine

ID 121099

1074 vaatamist

Prindi

  • check Pakkumiste tegemine
    kuni 20.08.2025
  • check Võitja valik kuni
    27.08.2025
  • 3 Töö teostamine
    ja hinnang
Hanke lõpp: K, 20. august, 2025
Maakond: Harjumaa
Muu asula: Jüri
Tööde lõpp: Kokkuleppel
Ehitusmaterjalid: Töö tellija poolt
Soovin pakkumisi: Summa kogu projektile

Töö sisu

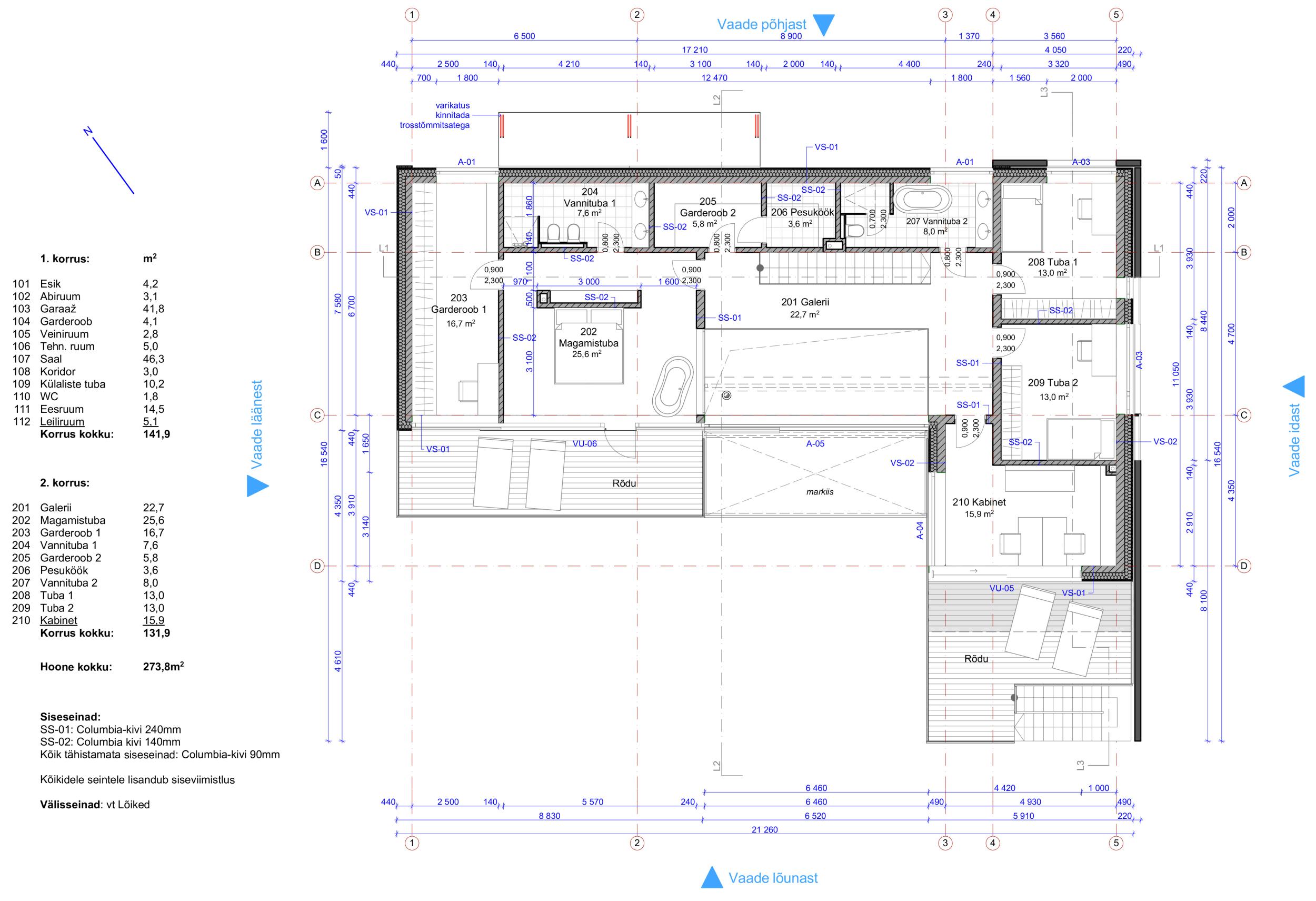
Otsime professionaalset sisevalgustuse disainerit või valguslahenduste spetsialisti, kes aitaks koostada läbimõeldud valgustuslahenduse ehitatavale kahekorruselisele eramajale (270 m², 3 vannituba, asukoht: Jüri, Harjumaa).
• Elektriprojekt on olemas, kaabeldus on tehtud vastavalt tsoonidele ja juhtimisplaanile;
• Küttesüsteem ja tsoonid on määratud;
• Põhiplaanid ja ruumijaotus on paigas.

Mida vajame:
• Professionaalne sisevalgustuse skeem või kontseptsioon, mis sobitub ruumide otstarbe ja interjööriga (eriti aatriumi jaoks);
• Selge arusaam, millistesse punktidesse milline valguslahendus sobib (üldvalgus, suunatud, meeleoluvalgus jne);
• Soovitused konkreetsete valgustite osas (tootjad, mudelid, e-poed jms);
• Soovi korral ka joonised või visuaalid, et visualiseerida valguslahendust;
• Soovitused valgustemperatuuride, CRI ja dimmerdamise osas.

Ootame praktilisi, kuid esteetilisi lahendusi, mis arvestavad kodu kasutusloogikat, mugavust ja visuaalset tervikut.

Pildid, video ja failid

Hanke korraldaja: eraisik ID76931

Pakkumised

Pakkumisi kokku: 3

Ettevõte Summa Käibemaks Lisatud Vestlus
Kasutaja ikoon ID92789
Pakkuja profiil Väike nool paremale
1 250€ Ei ole KMKR Ei ole KMKR 13.08.2025 Vestlus (7)

Pakkumise kirjeldus:

Pakkumine
Töös lähtutakse hankes toodud joonistest ja tellijapoolsest tööde kirjeldusest.
Töö sisaldab:
1. Valgustite valikut vastavalt hankes toodud elektripaigaldise skeemile ja vastavalt üldisele sisearhitektuursele kontseptsioonile. Valgustite kirjeldus ja disain antakse tabelis positsioonide kaupa. Valgustite kirjeldus sisaldab valgusti tehni ... Rohkem

Kasutaja ikoon ID54009
Pakkuja profiil Väike nool paremale
1 000€ KM lisandub KM lisandub 19.08.2025 Vestlus (4)
Kasutaja ikoon ID22962
Pakkuja profiil Väike nool paremale
1 400€ KM lisandub KM lisandub 20.08.2025 Vestlus (0)

Pakkumise kirjeldus:

Pakkumine sisaldab kõikide valgustite konkreetset valikut. Kindlasti on valiku tegemisel määratud kõik valgustite tehnilised andmed. Elektriprojektile saab lisada valgustite täpsed asukohad ja kõrgused ja nagu teise pakkuja küsimusele antud vastusest nähtud, siis saab ka asukohti vajadusel muuta. Ei ole küll valgustuse projekteerimise spetsialis ... Rohkem

Küsimused hanke korraldajale

Küsimus: private ID92789   09.08.2025 17:22
Kas võimaldatakse elektripaigaldise projekti ja disaini muutmist?

Teavita reeglite rikkumisest

Korraldaja vastus: 09.08.2025 19:02

Tere! Jah, vajadusel saab kõike muuta. Juhtmed on küll juba paigaldatud, aga kui disain on hea siis midagi muuta/lisada saab vabalt. Seinu heameelega ümber aga ei tõstaks :)

Teavita reeglite rikkumisest

Lisa küsimus

Lisa küsimus

Minu pakkumine

Reeglid

Pakkumise kirjelduse väli on mõeldud pakkumise detailsemaks lahti kirjutamiseks. Pikema teksti mugavaks sisestamiseks klikkige kasti paremal ülaservas oleval ikoonil.
Pakkumist tehes on keelatud postitada enda kontaktandmeid (nimi, telefon, aadress jne). Me jälgime ja analüüsime pakkumisi, et vältida pettuseid ja reeglite rikkumisi.
Rikkumise puhul kasutajakonto blokeeritakse.

 

Vanemad teated:

Vaata kõiki

Sellel veebilehel kasutatakse küpsiseid. Kasutamist jätkates nõustute küpsiste kasutamisega.

Sulge
 
Minu pakkumine

Reeglid

Pakkumise kirjelduse väli on mõeldud pakkumise detailsemaks lahti kirjutamiseks. Pikema teksti mugavaks sisestamiseks klikkige kasti paremal ülaservas oleval ikoonil.
Pakkumist tehes on keelatud postitada enda kontaktandmeid (nimi, telefon, aadress jne). Me jälgime ja analüüsime pakkumisi, et vältida pettuseid ja reeglite rikkumisi.
Rikkumise puhul kasutajakonto blokeeritakse.