+ Lisa oma töö      

Otsid ehitajat "Katusetööd" valdkonnast?

Parima pakkumise ja teostaja leidmiseks lisa oma töö.

Katuse + fassaadi vahetus

ID 121015

1316 vaatamist

Prindi

  • check Pakkumiste tegemine
    kuni 26.08.2025
  • check Võitja valik kuni
    02.09.2025
  • 3 Töö teostamine
    ja hinnang
Hanke lõpp: T, 26. august, 2025
Maakond: Tartumaa
Tööde lõpp: Kokkuleppel
Ehitusmaterjalid: Töö tellija poolt
Soovin pakkumisi: Summa kogu projektile

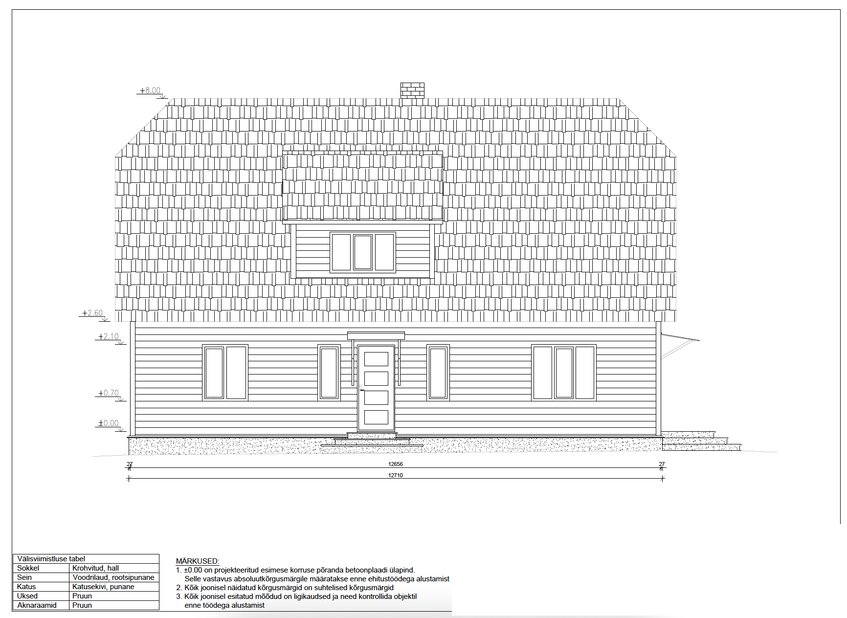
Töö sisu

Katusevahetus + uue fassaadi paigaldus koos soojustusega. Materjal olemas kõik.

Katus:
1.⁠ ⁠Vana kivikatuse eemaldamine
2.⁠ ⁠⁠sarikate paksemaks/kõrgemaks ehitamine 10cm ja rihtimine
3.⁠ ⁠⁠OSB plaat, tõrvapapp, distantsliist ja 45x45 roovitus, tuulekasti konstruktsioonide välja ehitamine,
4.⁠ ⁠⁠Kivi Monier Granat 13v

Katuse laius 13,5m satika pikkus 7m, kelba külje pikkus 2,5m kelba laius 3,5m, katuse kalle 46 kraadi.

Fassaad:
1. Vana fassaadi eemaldus.
2. 145 prussist uus karkass, 145 vill, tuuletõkke kangas, distantsliist, laudis peale.

Maja mõõtmed: pikem külg 13m, lühem külg 10m, räästa kõrgus soklist 2,7m, harjakõrgus 7m, majal on kaks vintskappi.

Pildid, video ja failid

Hanke korraldaja: eraisik ID82302

Pakkumised

Pakkumisi kokku: 4

Ettevõte Summa Käibemaks Lisatud Vestlus
Kasutaja ikoon ID83842
Pakkuja profiil Väike nool paremale
18 400€ KM lisandub KM lisandub 06.08.2025 Vestlus (0)

Pakkumise kirjeldus:

Töö kiire ja korralik, tegeleme selliste töödega, mehed pädevad. Pakkumises hanke tasu, tellingud, vajadusel ka korvtõstuk, transport ja tööraha. Vajadusel ka utiliseerimine (korrektselt, mitte kuhugi metsa alla). Arvega tasumise võimalus, seljuhul lisandub km. Ettemaks kindlustamaks panustatud aega, tehtud kulutusi, transporti, et ei oleks pärast ... Rohkem

Kasutaja ikoon ID80792
Pakkuja profiil Väike nool paremale
16 000€ Ikoon kell Ei ole KMKR Ei ole KMKR 15.08.2025 Vestlus (0)

Pakkumise kirjeldus:

Tere.Uus hinnapakkumine: Fassaaditöö 6500eurot ja Katusetöö 9500eurot. Hind ei sisalda materjale ega kinnitusvahendeid. Ettemaksu
ei küsi, tasumine etapi kaupa eelnevalt tehtud töö eest. Soodushind 16000eurot kehtib kuni 27.08 allkirjastamisel. Kõike head soovides.

Kasutaja ikoon ID74412
Pakkuja profiil Väike nool paremale
17 200€ Ei ole KMKR Ei ole KMKR 17.08.2025 Vestlus (0)

Pakkumise kirjeldus:

Hinnapakkumine vastavalt töö sisule:
Katusevahetus ja uus fassaadi paigaldus. Mehed kogenud ja kiired ning täpsed. Teeme vastava lepingu ka.

Kasutaja ikoon ID72729
Pakkuja profiil Väike nool paremale
12 500€ KM lisandub KM lisandub 26.08.2025 Vestlus (0)

Küsimused hanke korraldajale

Küsimus: private ID80792   11.08.2025 14:49
Tere. Küsimus number 3 punkti kohta. Kirjas OSB ja Tõrvapapp? Peaks olema sarikad/aluskate/distantsliist/roov ja kivi. Või on mingi erisoov antud punktiga. Ülejäänud tööd selgelt arusaadavad. Kõike head soovides.

Teavita reeglite rikkumisest

Korraldaja vastus: 11.08.2025 17:02

Jah, see on sellepärast nii, et katusealune soojustatakse PUR vahuga.

Teavita reeglite rikkumisest

Küsimus: private ID55689   21.08.2025 06:51
Tere.
Küsiksin teie asukoha piirkonda sest Tartumaa on küllaltki lalivalguv ja võiks teada piirkonda selleks,et arusaada objekti kaugust oma lokatsioonist.

Teavita reeglite rikkumisest

Korraldaja vastus: 21.08.2025 16:13

Valguta küla, Elva vald

Teavita reeglite rikkumisest

Lisa küsimus

Lisa küsimus

Minu pakkumine

Reeglid

Pakkumise kirjelduse väli on mõeldud pakkumise detailsemaks lahti kirjutamiseks. Pikema teksti mugavaks sisestamiseks klikkige kasti paremal ülaservas oleval ikoonil.
Pakkumist tehes on keelatud postitada enda kontaktandmeid (nimi, telefon, aadress jne). Me jälgime ja analüüsime pakkumisi, et vältida pettuseid ja reeglite rikkumisi.
Rikkumise puhul kasutajakonto blokeeritakse.

 

Teisi töid samas valdkonnas

Valdkonnas "Katusetööd" on 9 aktiivset tööd

no-img Pilt puudub

Käidava katuse PVC 54m2

Asukoht: Harjumaa, Muraste
Aega jäänud: 4p 20h
Tehtud pakkumisi: 3

Garaaži katuse vahetamine

Asukoht: Harjumaa, Viimsi
Aega jäänud: 13p 20h
Tehtud pakkumisi: 2

Vanemad teated:

Vaata kõiki

Sellel veebilehel kasutatakse küpsiseid. Kasutamist jätkates nõustute küpsiste kasutamisega.

Sulge
 
Minu pakkumine

Reeglid

Pakkumise kirjelduse väli on mõeldud pakkumise detailsemaks lahti kirjutamiseks. Pikema teksti mugavaks sisestamiseks klikkige kasti paremal ülaservas oleval ikoonil.
Pakkumist tehes on keelatud postitada enda kontaktandmeid (nimi, telefon, aadress jne). Me jälgime ja analüüsime pakkumisi, et vältida pettuseid ja reeglite rikkumisi.
Rikkumise puhul kasutajakonto blokeeritakse.