+ Lisa oma töö      

Otsid ehitajat "Üldehitus" valdkonnast?

Parima pakkumise ja teostaja leidmiseks lisa oma töö.

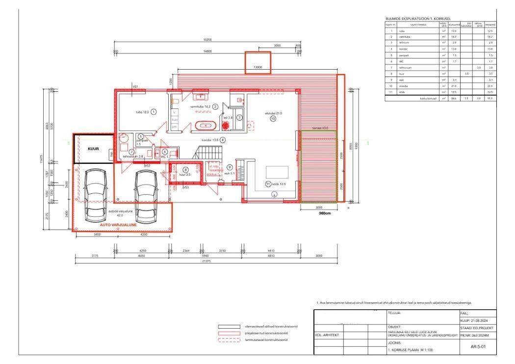
Auto varjualuse ehitus

ID 120953

753 vaatamist

Prindi

  • check Pakkumiste tegemine
    kuni 07.08.2025
  • check Võitja valik kuni
    14.08.2025
  • 3 Töö teostamine
    ja hinnang
Hanke lõpp: N, 7. august, 2025
Maakond: Harjumaa
Muu asula: Luige
Tööde lõpp: Kokkuleppel
Ehitusmaterjalid: Töö tellija poolt
Soovin pakkumisi: Summa kogu projektile

Töö sisu

VARIKATUS
Maas on olemas tugisambad. Tellitud on postid koos tallaga, mis tuleb keemiliste ankrutega tugisammaste külge kinnitada.
Postidele ehitada karkass, karkass kinnitada maja seina külge, karkass katta OSBiga, tagades vähemalt 2% kalde. Lagi katta alt voodrilaudadega.

KUUR
Kuuri seinad tulevad 45x28 prussist, mis paigaldatakse vertikaalselt ribiseinana. Kuurile tuleb paigaldada samast prussist uks nagu ribisein. Veel paigaldada hinged, link, lukk ja vasturaud.

Töö sisaldab:
•⁠ ⁠⁠töö lõpus objekti koristus ja materjali ülejäägi utiliseerimine

Töö ei sisalda:
•⁠ ⁠katuse SBS katte paigaldamist
•⁠ ⁠⁠katuse äärepleki paigaldamist
•⁠ ⁠⁠katuse äravoolu kaevu paigaldamist
•⁠ ⁠⁠tänavakivide paigaldust ümber postide
•⁠ ⁠⁠materjali maksumust, materjali eest tasub tellija eraldi
•⁠ ⁠⁠värvimist

Mõõdud (mitte lõplikud):
•⁠ ⁠postide kõrgus 262cm
•⁠ ⁠⁠katuse kõrgus 40cm
•⁠ ⁠⁠parapeti laius 50mm
•⁠ ⁠⁠katuse äravoolu kalle minimaalsel 2%

Materjal:
• kogu materjal objektil, v.a. kinnitusvahendid

Alustada:
- Nii kiiresti kui võimalik

Pildid, video ja failid

Hanke korraldaja: ettevõte ID55907

Pakkumised

Pakkumisi kokku: 1

Ettevõte Summa Käibemaks Lisatud Vestlus
Kasutaja ikoon ID50594
Pakkuja profiil Väike nool paremale
6 880€ KM lisandub KM lisandub 07.08.2025 Vestlus (0)

Pakkumise kirjeldus:

Tere,

Pakkumine vastavalt hanke kirjeldusele.
Ennem võitjaks valimist palun alustada vestlust. Ei soovi hanke tasu maksta tühja.

Lgp. Taivo

Küsimused hanke korraldajale

Hanke korraldajale ei ole veel küsimusi esitatud.

Lisa küsimus

Lisa küsimus

Minu pakkumine

Reeglid

Pakkumise kirjelduse väli on mõeldud pakkumise detailsemaks lahti kirjutamiseks. Pikema teksti mugavaks sisestamiseks klikkige kasti paremal ülaservas oleval ikoonil.
Pakkumist tehes on keelatud postitada enda kontaktandmeid (nimi, telefon, aadress jne). Me jälgime ja analüüsime pakkumisi, et vältida pettuseid ja reeglite rikkumisi.
Rikkumise puhul kasutajakonto blokeeritakse.

 

Teisi töid samas valdkonnas

Valdkonnas "Üldehitus" on 35 aktiivset tööd

Põrandakütte torustiku ja kollektori paigaldus.

Asukoht: Harjumaa, Kurkse
Aega jäänud: 10p 21h
Tehtud pakkumisi: 4

no-img Pilt puudub

Kipsivalu

Asukoht: Harjumaa, Tallinn
Aega jäänud: 21h 45 min
Tehtud pakkumisi: 3

Vanemad teated:

Vaata kõiki

Sellel veebilehel kasutatakse küpsiseid. Kasutamist jätkates nõustute küpsiste kasutamisega.

Sulge
 
Minu pakkumine

Reeglid

Pakkumise kirjelduse väli on mõeldud pakkumise detailsemaks lahti kirjutamiseks. Pikema teksti mugavaks sisestamiseks klikkige kasti paremal ülaservas oleval ikoonil.
Pakkumist tehes on keelatud postitada enda kontaktandmeid (nimi, telefon, aadress jne). Me jälgime ja analüüsime pakkumisi, et vältida pettuseid ja reeglite rikkumisi.
Rikkumise puhul kasutajakonto blokeeritakse.