+ Lisa oma töö      

Otsid ehitajat "Teemantpuurimine ja -saagimine" valdkonnast?

Parima pakkumise ja teostaja leidmiseks lisa oma töö.

Raudbetoon seina sisse ava freesimine

ID 120928

777 vaatamist

Prindi

  • check Pakkumiste tegemine
    kuni 11.08.2025
  • check Võitja valik kuni
    18.08.2025
  • 3 Töö teostamine
    ja hinnang
Hanke lõpp: E, 11. august, 2025
Maakond: Tartumaa
Linn: Tartu
Tööde lõpp: Kokkuleppel
Ehitusmaterjalid: Töö tellija poolt
Soovin pakkumisi: Summa kogu projektile

Töö sisu

Soovin hinnapakkumist järgmistele töödele:

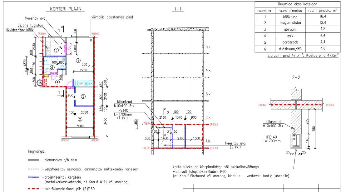
– Raudbetoon (120 mm) seina sisse ava freesimine teemantlõikusega. Freesitava ava mõõtmed 1400 mm x 2300 mm.
– Lae ajutine toestamine kuue tugipostiga.
– IPE 140 tala paigaldamine sillusesse M10x100 kiilankrutega.
– Prügi utiliseerimine.
– Ehituspäeviku ja teostatud tööde akti koostamine mille põhjal saab hiljem EHR-i esitada ehitusteatise.

Lisatud projekti jooniste pdf fail. Soovi korral edastan kogu renoveerimisprojekti, kus täpne info olemas.

Töö teostajal peab olema kehtiv Majandustegevuseregistri registreering (tegevusluba - ehitamine, üldehitustööd jne) või muu võimalus dokumentatsiooni korda ajamiseks.

Objekt asub paneelmaja esimesel korrusel Tartus, Ülejõel

Pildid, video ja failid

Hanke korraldaja: eraisik ID64284

Pakkumised

Pakkumisi kokku: 1

Ettevõte Summa Käibemaks Lisatud Vestlus
Kasutaja ikoon ID57475
Pakkuja profiil Väike nool paremale
1 900€ KM lisandub KM lisandub 11.08.2025 Vestlus (0)

Pakkumise kirjeldus:

Tere,


Meie pakkumine vastavalt hanke kirjeldusele.
Arve alusel töö eest tasudes lisandub hinnale km.
Lisaküsimustele vastan meeleldi!

Lp. Timo

Küsimused hanke korraldajale

Hanke korraldajale ei ole veel küsimusi esitatud.

Lisa küsimus

Lisa küsimus

Minu pakkumine

Reeglid

Pakkumise kirjelduse väli on mõeldud pakkumise detailsemaks lahti kirjutamiseks. Pikema teksti mugavaks sisestamiseks klikkige kasti paremal ülaservas oleval ikoonil.
Pakkumist tehes on keelatud postitada enda kontaktandmeid (nimi, telefon, aadress jne). Me jälgime ja analüüsime pakkumisi, et vältida pettuseid ja reeglite rikkumisi.
Rikkumise puhul kasutajakonto blokeeritakse.

 

Vanemad teated:

Vaata kõiki

Sellel veebilehel kasutatakse küpsiseid. Kasutamist jätkates nõustute küpsiste kasutamisega.

Sulge
 
Minu pakkumine

Reeglid

Pakkumise kirjelduse väli on mõeldud pakkumise detailsemaks lahti kirjutamiseks. Pikema teksti mugavaks sisestamiseks klikkige kasti paremal ülaservas oleval ikoonil.
Pakkumist tehes on keelatud postitada enda kontaktandmeid (nimi, telefon, aadress jne). Me jälgime ja analüüsime pakkumisi, et vältida pettuseid ja reeglite rikkumisi.
Rikkumise puhul kasutajakonto blokeeritakse.